点上方蓝字可关注 微信号:装修33天
▲ 使用面积135平,入户处拆除门厅与厨房之间的墙体,用一组置顶双面柜代替
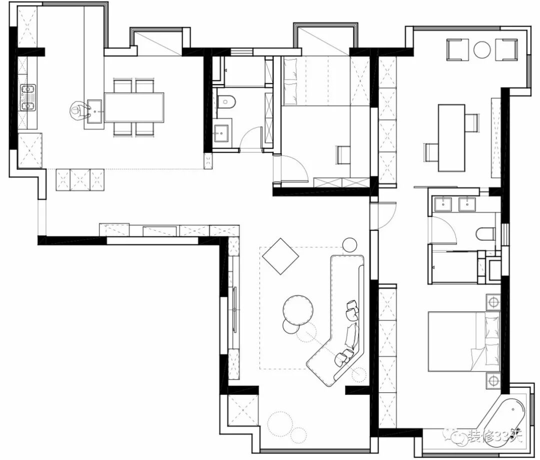
▲ 平面结构图
▲ 平面布置图
▲ 入口玄关至客厅段,破墙立柜,立柜对面则以线条勾勒的虚柜隐藏暗门,延伸转折至客厅的实体壁柜作铺垫
▲ 客厅区域相对独立,灰色墙面及同质地面,保持整个空间的连续性
▲ 灰和白简洁而有力的围合出空间,转角沙发和黑色单椅在静谧的背景中担当主角,钓鱼灯和卵石凳辅以点缀
▲ 将南阳台纳入客厅,扩大使用面积,增加公领域空间采光
▲ 阳台望向客厅视角
▲ 公领域整体以灰白为核心色彩元素,创造有机整体
▲ 主背景墙面的柜体由入口门厅处开始,延伸至餐厅最终转折到达客厅,强化空间一体性,承担公共区域的日常储物功能
▲ 在客餐厅转换中,利用黑色置物格子来弱化因承重墙体产生的过多锐角
▲ 开敞式餐厨是通过门厅后的释放,大面灰色背光墙面延伸至厨房,让两者融为一体
▲ 与厨房一体的长吧台定位实用,开放区域是一个通过日常饮食将家庭成员聚集在一起的交流场所
▲ 客卫整体通铺深灰色哑光瓷砖,搭配白色洁具,玻璃隔断实现一定程度的干湿分离,同时保持空间通透性
▲ 主卧区和独立书房位于主卫两端,延续开放设计理念,衣柜柜门用亚麻质感的白色布帘代替
▲ 木饰面将住宅的公共区域与私人区域明显区分
▲ 将主卧卫生间的浴缸外移至卧室窗台,增添生活情趣
▲ 书房柜体利用镜面扩展空间视觉,黑色百叶切分室外绿色,与光影共同构成了书房安静休闲的气质
▲ 主卫延续客卫的深灰色基调,双台盆设计提升空间使用率
设计 | 云行空间建筑设计(南京)
电话/微信:15805152076
公众号:unixdesign
后台回复「云行」可以看更多作品
媒体转载请注明装修33天并保留设计师联系方式
欢迎业主、设计师、装修公司免费投稿照片
装修33天商务合作微信:king194316
松爷店铺掌柜微信:yejia1702
云行空间建筑设计其他作品推荐,点击下图查看108平舒适三口之家 现代混搭榻榻米空间
实用装修指南
装修33天 🏡 实用装修指南
喜欢我们的文章就随手转发到您朋友圈吧