点上方蓝字可关注 微信号:装修33天
▲ 使用面积136平,半包12.3万(轻功辅料+水电),玄关地面六边砖+木地板拼接,玄关柜中部留空嵌入光源,底部悬空便于收纳常用鞋
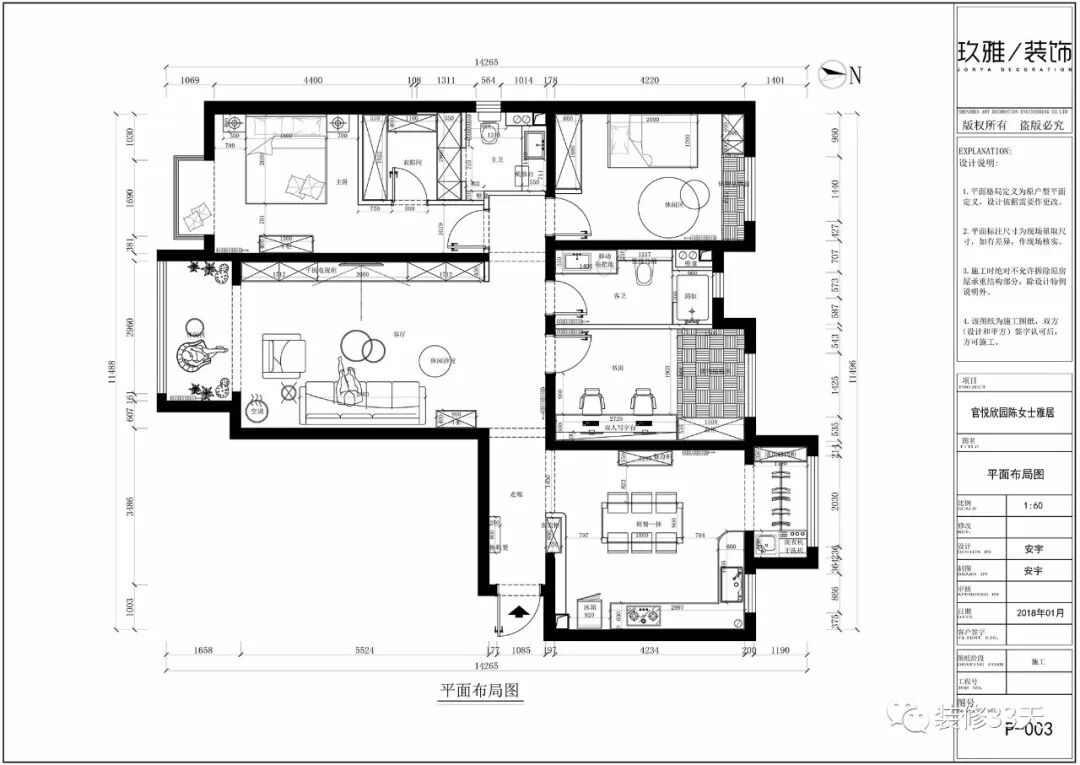
▲ 平面布置图
▲ 入户右侧餐厨一体,相当于同时增大了厨房和餐厅的面积,白色餐桌搭配金属丝绒餐椅,打造现代轻奢感
▲ 餐厅背景墙点缀装饰画与绿植,成品餐边柜增添收纳,与生活阳台设置绿色丝绒窗帘隔断
▲ 木质长条吊灯与金色镶边的餐具,提升生活品质
▲ 开放式厨房,L型操作台面,整体定制黑色哑光橱柜,点缀金色把手,简约大气
▲ 客厅与阳台相连,简约空间,无茶几、无主灯设置,使整体更加通透
▲ 木纹地板加铺大张灰色地毯,丰富空间视觉,同时也为孩子提供休闲玩耍的区域
▲ 整墙电视柜设计,右侧开放式层架用于展示摆件,有藏有露,简约实用
▲ 客厅左侧小阳台,设置 ins 风桌椅与落地灯,成为休闲一角
▲ 走廊端景选用彩色艺术挂画点缀,大气不俗
▲ 客卫,灰色墙地一体砖,湿区设置独立的儿童浴缸与淋浴
▲ 书房,定制榻榻米与3米的双人位书桌,满足业主平时办公、休闲
▲ 主卧,千鸟格高背床点缀绿色背景墙,咖色天鹅绒窗帘与羽毛吊灯,增添空间轻奢质感
▲ 独立衣帽间纳入主卫,呈现最完美的空间动线,地插设置可随时烘干衣物
▲ 主卫,浴室柜与梳妆台结合一体,镜柜底部设计辅助照明
▲ 设计师与业主合影
设计 | 玖雅设计(北京)
微信:18611911806
后台回复「玖雅」可以看更多作品
媒体转载请注明装修33天并保留设计师联系方式
欢迎业主、设计师、装修公司免费投稿照片
装修33天商务合作微信:king194316
松爷店铺掌柜微信:yejia1702
玖雅设计其他作品推荐,点击下图查看半包6万7莫兰迪色清新北欧小居
实用装修指南
装修33天 🏡 实用装修指南
喜欢我们的文章就随手转发到您朋友圈吧