点上方蓝字可关注 微信号:装修33天
▲ 建筑面积88平,造价10万(硬装+软装,不含家电),原外租办公室,期满回收自住,通过设计改变现实杂乱的状态,黄+灰打造元气日式风
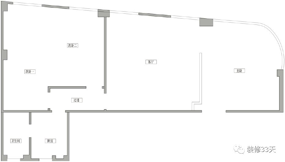
▲ 平面结构图
▲ 平面布置图
▲ 客厅拆除原有的天花铝扣板,将花哨的墙身刷白,为空间做减法
▲ 地面改用细纹的日式木地板加铺地毯,肌理感十足
▲ 墙身用水性漆配合软装的色调刷中性灰背景墙,上方留白点缀木色抽象画
▲ 组合茶几在材质上发生一些变化,采用亚克力的腿,让家具显得轻盈
▲ 家具基本以原木的材质+肌理感+浅色布艺,突出这个日式的色调
▲ 客餐厅结合,因空间尺度未能满足摆放餐椅,餐厅区域改用席地而坐,既满足空间尺度,也能保留原有的大空间状态,增加趣味性
▲ 餐桌与吊灯搭配蒲团,大面积原木色与暖色灯光营造出温馨的就餐氛围
▲ 原木桌,陶瓷碗碟,陶瓷花瓶,一切都回归原生态的感觉
▲ 莫兰迪系无框画配竹制类吊灯,不羁的日系
▲ 次卧,灰白+木色为主线,以黄色作为点缀色,装饰画与硬装墙漆的结合作背景
▲ 次卧二的一张亮黄色沙发,让卧室兼具休闲机能,装饰画与硬装墙漆结合,墙身不仅仅是墙漆,让软硬装的融合成为有趣的墙身
▲ 主卧,整面窗户,配一张休闲的吊椅,增添空间趣味性
设计 | 诺壹空间设计(广州)
微信:13450484809
后台回复「诺壹」可以看更多作品
媒体转载请注明装修33天并保留设计师联系方式
欢迎业主、设计师、装修公司免费投稿照片
装修33天商务合作微信:king194316
松爷店铺掌柜微信:yejia1702
诺壹空间设计其他作品推荐,点击下图查看95平清新休闲三室 开放式多功能房更实用
实用装修指南
装修33天 🏡 实用装修指南
喜欢我们的文章就随手转发到您朋友圈吧