点上方蓝字可关注 微信号:装修33天
▲ 实用面积100平,总造价25万,整体采用给人以安心感令人放松身心的治愈系配色
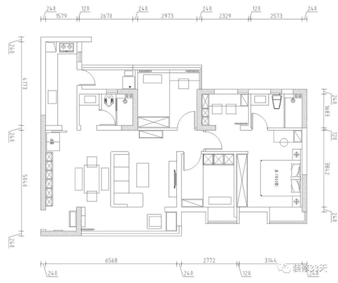
▲ 平面布置图
▲ 玄关配置储物柜,换鞋凳,穿衣镜满足入户需求
▲ 沿入户动线即见餐厅,餐桌椅、桌旗、吊灯,让空间充满活力
▲ 整墙的多功能柜体,从入户一直延伸至餐厨区域,满足收纳的同时,留出位置嵌入冰箱,解放厨房空间
▲ 厨房,大面积素色中跳出彩色几何砖,淡淡的绿色和木纹橱柜,简洁带有清新自然的感觉
▲ 横厅结构,采光极佳,公领域互动性更好,显得宽敞
▲ 实木腿+像飞机云般淡淡的灰蓝色布艺沙发,看着暖暖的柔和舒适
▲ 淡蓝色的墙面延续至电视背景,原木基调的电视柜,搭配与餐厅吊灯呼应的柜门
▲ 大横厅纳入阳台,扩大使用面积,大面积采光窗,安装木百叶窗帘,整体色调变得明亮温柔
▲ 在原有的阳台角落做小型吧台,可以偶尔在这里玩电脑,喝咖啡,看窗外美景,发现生活中的小确幸
▲ 过道的斗柜是多功能的存在,可以放置旅行的纪念品,也可以放置小孩子的玩具等
▲ 温馨的多功能房,榻榻米与书桌一体的设计,很好的利用空间
▲ 次卧整体色调更为简洁利落,根据功能设计多抽屉边柜
▲ 主卧,原木地板搭配极简顶面,略带橙调的米黄色背景,让空间暖暖的很温馨
▲ 采用多功能桌取代大衣柜,满足业主化妆、看书等需求
▲ 在正对床的位置做满墙衣柜
▲ 卫生间,延续厨房砖的配色基调,局部用花砖进行点缀,考虑使用方便以及安全性,放弃玻璃淋浴房采用浴帘设计
设计 | 梵之设计(成都)
微信:373454377
后台回复「梵之」可以看更多作品
媒体转载请注明装修33天并保留设计师联系方式
欢迎业主、设计师、装修公司免费投稿照片
装修33天商务合作微信:king194316
松爷店铺掌柜微信:yejia1702
梵之设计其他作品推荐,点击下图查看
实用装修指南
装修33天 🏡 实用装修指南
喜欢我们的文章就随手转发到您朋友圈吧