点上方蓝字可关注 微信号:装修33天
▲ 建筑面积90平,造价30万(包含人工+辅料+水电改造),顺着玄关顶面的线条灯,进门一抬眼装饰画作端景
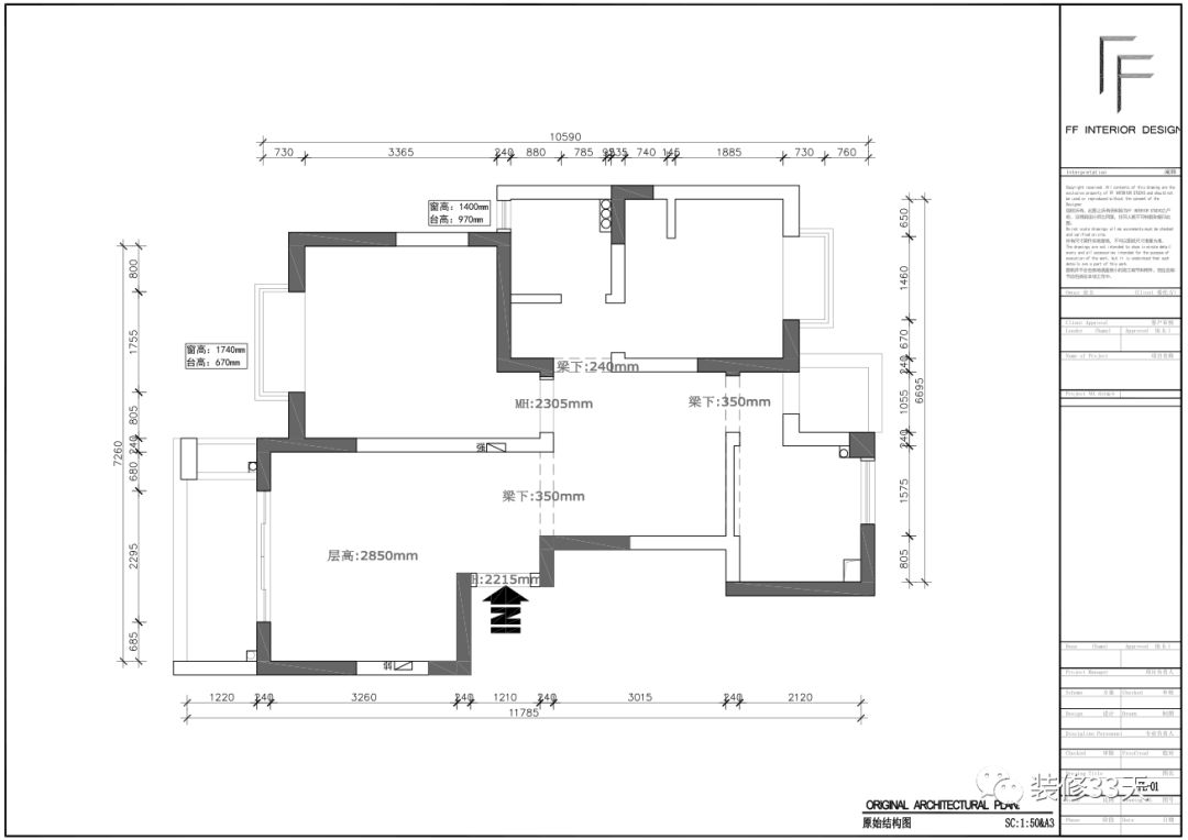
▲ 平面结构图
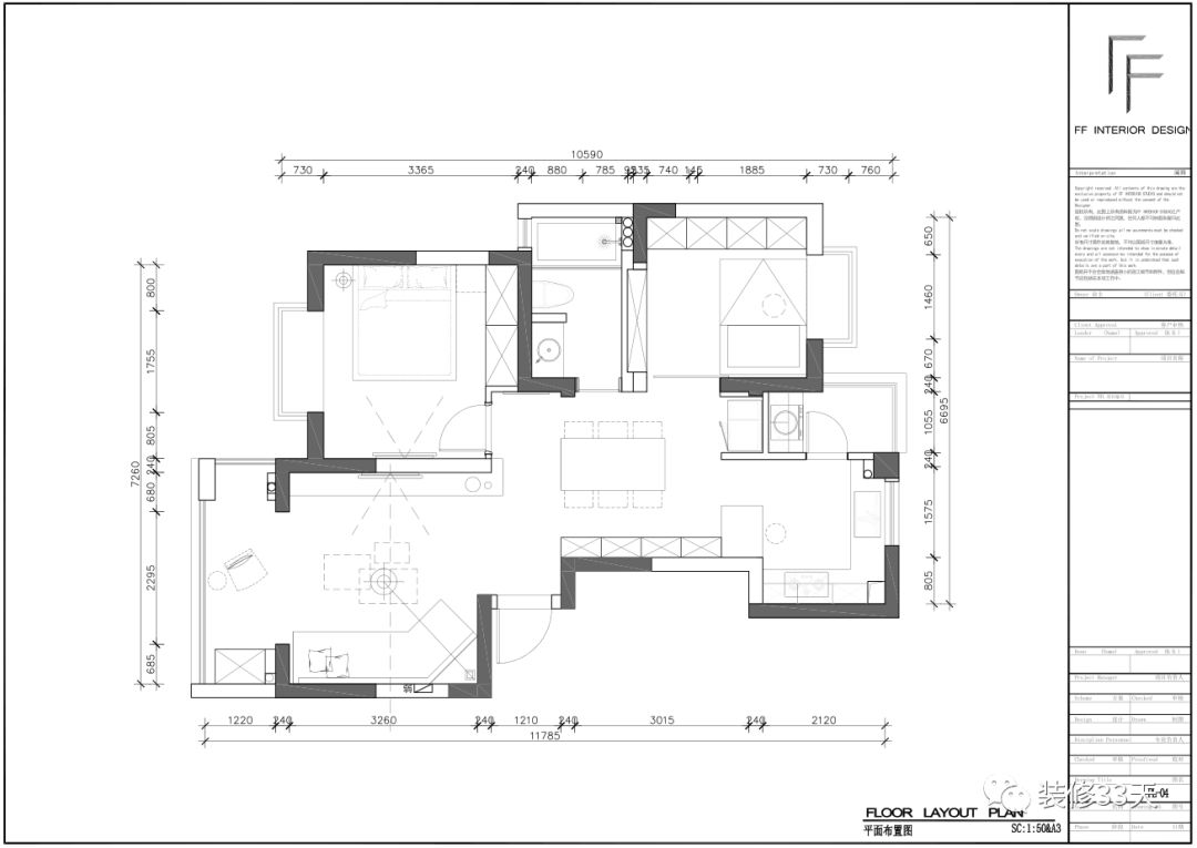
▲ 平面布置图
▲ 客厅,鱼骨拼木地板,顶部做开槽处理,嵌入黑色轨道灯,让轨道和顶面几乎持平,工序上的复杂换来整体精致度的上升
▲ 尼加拉蓝沙发背景墙搭配棕色皮沙发,凸显空间的层次感和对比度
▲ 装饰画搭配绿植为空间作点缀
▲ 简单的电视墙刷水泥漆,延伸到客厅顶部,悬浮式的电视柜底部加灯带,减轻家具的厚重感
▲ 阳台纳入客厅后视野和采光变得开阔和明亮,阳台的金色柜子,是颜值担当,实用性也很强
▲ 从阳台望向客餐厅视角
▲ 从入户地面延伸至室内,铺贴蒂芬尼的白砖,除了给视觉以引领外,还做客餐厅的隔离带
▲ 改造后的餐厨变得相互独立又彼此互通,由于预算限制,顶面一圈黑色涂料到也不失雅致
▲ HAY的餐桌椅,尺寸刚好和空间相匹配,餐桌正对面是整墙收纳柜,定制烤漆面板配上极简金色把手
▲ 厨房整体通铺白色石纹瓷砖,搭配不锈钢台面,极简风与整室呼应
▲ 客卫藏在玄关挂画的一侧,门片实现隐形门设计
▲ 客卫,石纹地砖搭配格子砖与黑色美缝,小白砖和绿色防水乳胶漆之间用铜条收口
▲ 主卧,“脏”粉色墙面VS金属构件,点亮空间的同时也带来“高贵”的感觉
▲ 低垂的床头灯焕发出昏黄的光芒,安静得无以复加
设计 | FF INTERIOR DESIGN 费崎峰(上海)
微信:18601793539
后台回复「费崎峰」可以看更多作品
媒体转载请注明装修33天并保留设计师联系方式
欢迎业主、设计师、装修公司免费投稿照片
装修33天商务合作微信:king194316
松爷店铺掌柜微信:yejia1702
FF INTERIOR DESIGN 费崎峰其他作品推荐,点击下图查看三口之家越住越大 70平黑白灰木色简约风
实用装修指南
装修33天 🏡 实用装修指南
喜欢我们的文章就随手转发到您朋友圈吧