点上方蓝字可关注 微信号:装修33天
▲ 使用面积130平,房子坐落在誉为「人间天堂」的杭州,也是唯一连续12年入选中国最具有幸福感的城市
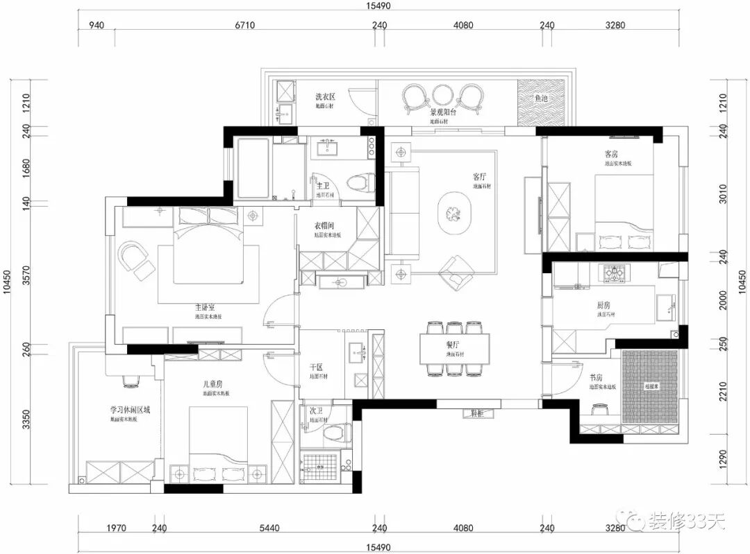
▲ 平面布置图
▲ 客厅整体采用浅灰色基调,局部同色系点缀搭配复古黄铜吊灯,使空间散发静谧与复古的气息
▲ 浅灰色系地板搭配现代沙发,低调舒适还不失和谐
▲ 真皮的质感搭配石纹茶几,有一种稳重的感觉,搭配装饰画与软装小件,给整个空间带来不一样的精致感
▲ 高颜值的 Marshall Kilnurn 在音质上有尤为出色,小的艺术品也是非常「点睛」的存在
▲ 南北通透的格局,空间加深纵深感,为了整体对称,电视背景左侧做隐形门设计
▲ 餐厅,红酒柜兼具餐边收纳的机能,巧妙和整个空间融合在一起提升优雅气氛
▲ 选择与沙发同色系的单椅,也能更好的融合整个空间
▲ 厨房采用简洁浅色系设计,延续整个空间风格,地面采取大理石的瓷砖,让整体显得清爽干净
▲ 客卫,通铺灰色系石纹瓷砖,白色集成吊顶,一字型淋浴隔断
▲ 儿童房做地台设计,划分场域,增加孩子的休闲学习区域,靠墙打造置顶定制柜,满足储物需求
▲ 恐龙星球主题壁纸,为整个空间添色不少,明亮颜色,使空间显得更加欢快
▲ 次卧,木地板搭配留白墙面,采用深蓝灰系软装,加深空间层次感
▲ 选择一些有趣的装饰物,也能让整体空间更加丰富
▲ 主卧以灰色为基调,点缀蓝色窗帘,深灰色硬包饰面作为床头背景,与家具同色系的碰撞,更显空间的质感和档次
▲ 主卫分区明确,包括淋浴区和浴缸都有很好的划分,充分享受私人时刻
设计 | 独立设计师 吴恒(江苏南京)
微信:wu050090
媒体转载请注明装修33天并保留设计师联系方式
欢迎业主、设计师、装修公司免费投稿照片
装修33天商务合作微信:king194316
松爷店铺掌柜微信:yejia1702
实用装修指南
装修33天 🏡 实用装修指南
喜欢我们的文章就随手转发到您朋友圈吧