点上方蓝字可关注 微信号:装修33天
▲ 建筑面积126平+10平赠送面积,造价31万(施工6万、电器8万、家具4万、主材13万),实现业主梦想中的家
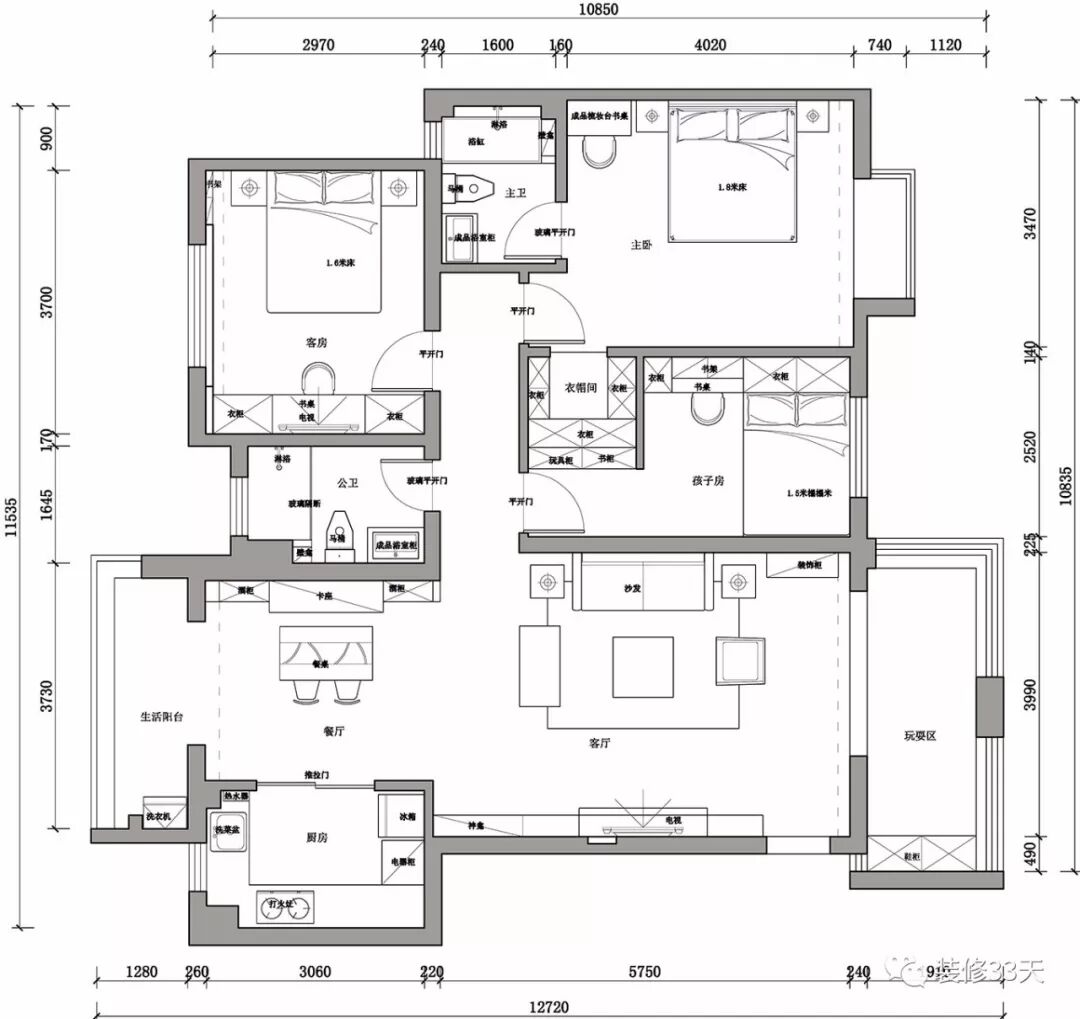
▲ 平面布置图
▲ 入户即为客厅,地面斜铺复古地砖+角花,对称拱形造型电视墙兼具展示与收纳机能,绿色背景与窗帘呼应
▲ 客厅,淡黄色空间基调,经典美式铆钉沙发搭配原木茶几,局部暖光为家带来温馨感
▲ 明黄色抱枕提亮空间,金属元素的主灯与壁灯,增添轻奢质感
▲ 南阳台铺贴深色复古砖,定制顶天立地储物柜增添大容量收纳
▲ 餐厅与生活阳台相连,使室内采光充足,原木餐桌搭配复古餐椅,合理利用餐边柜中部空间设计储物卡座
▲ 绿色背景与窗帘呼应,复古蓝黄软包餐椅搭配墙面蝴蝶装饰画,提升复古格调
▲ 采用黑框玻璃移门作厨房隔断,保证空间通透的同时,防止油烟进入
▲ 厨房,花色复古砖铺贴防溅墙背景,定制橱柜收纳大型厨电
▲ 生活阳台,墙面铺贴清新调复古砖,利用错落墙面预留洗衣机位置与洗手盆,吊柜增添阳台收纳
▲ 客卫,冷色调地砖延伸至半高墙面,将吊顶电器模块分开独立,使洗浴更加舒适
▲ 过道延续公领域地面,将书柜设置在儿童房入口,背面为主卧衣帽间
▲ 儿童房,定制榻榻米与书桌柜,使小空间功能多样化,并具备强大的储物机能
▲ 二胎房,宝宝还没出生,没有添置家具,暂做孩子游戏区,角落利用原本凹进去墙体做简易小书架
▲ 靠墙定制柜体与书桌,暂时可做储物与办公空间
▲ 主卧,地面木地板铺就,极简顶面设置精致吊灯,储物飘窗设计,实用美观
▲ 选用美式皮质高背床,石膏线勾勒对称式背景点缀造型壁纸,与左侧梳妆区形成自然划分
▲ 圆润的胡桃木梳妆台,满足女主人的需求
▲ 采用自己编织的门帘作衣帽间隔断
▲ 主卫,暖色调地砖铺至半高墙面,自砌浴缸与淋浴相结合
设计 | 听白设计(全国)
微信:17561917020
后台回复「听白」可以看更多作品
媒体转载请注明装修33天并保留设计师联系方式
欢迎业主、设计师、装修公司免费投稿照片
装修33天商务合作微信:king194316
松爷店铺掌柜微信:yejia1702
听白设计其他作品推荐,点击下图查看18万装127平清新婚房,实用又耐看
实用装修指南
装修33天 🏡 实用装修指南
喜欢我们的文章就随手转发到您朋友圈吧