点上方蓝字可关注 微信号:装修33天
▲ 建筑面积80平,总造价25万,入户左侧一组高低款定制鞋柜与墙面层板以及挂钩,满足基本功能的同时也将立面衬托的更为有趣
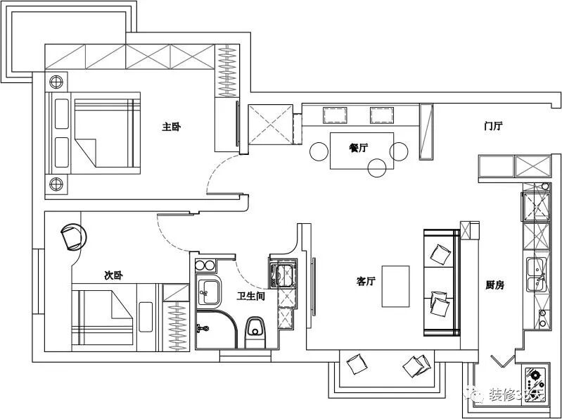
▲ 平面布置图
▲ 入户端景,看到的就是由木质隔断组成的窗景,微蓝的墙面与隔断内的绿植相互映衬
▲ 客厅,原始户型的厨房相对狭窄,因此将其改造为开放式厨房,利用长吧台作为沙发背景,模糊厨房与客厅间的界限
▲ 柔软舒适的灰色布艺主沙发,搭配原木茶几,将飘窗打造成休闲区域,补充客厅休憩空间
▲ 客厅的趣味小摆件营造温馨氛围
▲ 电视背景错落设计,采用蓝白叠层的墙面结合原木悬空电视柜
▲ 从这个角度看,入户隔断还起到独立餐厅的功能,卡座设计由原生态红砖刷白漆筑成,增添空间趣味
▲ 利用储物间部分立面,设计出餐厅区域的储物柜,可做餐边柜使用
▲ 与隔断台面一样材质的细木条,将餐厅卡座包围,增加层次感,上方墙面装饰世界地图与挂钟
▲ 过道直接延伸至厨房区域,并自然的分隔客餐厅
▲ 分隔空间的吧台用色与走廊呼应,开放格的处理缓解柜体侧板直角给人带来的不适感,同时也可当边几置物
▲ 吧台上方设计枯木,缠绕灯线,增添空间层次,营造自然氛围
▲ 橱柜颜色选择饱和度较高的牛仔蓝色,搭配灰色水纹墙砖,吧台的背面是橱柜空间,实用性满格
▲ 透过地面复古花砖与弧度垭口,划分出公私领域,打开卧室门,视觉纵深进一步延伸,绅士青与柔和粉相互跳跃
▲ 次卧,打造榻榻米连接衣柜,墙面采用分色处理,空间暂时作储物、休闲、办公和客卧的作用
▲ 主卧,深色人字铺木地板,清新的墙面搭配月球灯,营造趣味静谧的就寝氛围
▲ 床头的线性悬挂吊灯,木质环内暗藏灯带
设计 | 末那识设计(天津)
微信:13116008180
后台回复「末那识」可以看更多作品
媒体转载请注明装修33天并保留设计师联系方式
欢迎业主、设计师、装修公司免费投稿照片
装修33天商务合作微信:king194316
松爷店铺掌柜微信:yejia1702
末那识设计其他作品推荐,点击下图查看88平精致混搭三室,关键部位都标了尺寸
实用装修指南
装修33天 🏡 实用装修指南
喜欢我们的文章就随手转发到您朋友圈吧