点上方蓝字可关注 微信号:装修33天
▲ 建筑面积115平,入户左侧嵌入式柜体局部留空设计换鞋凳、衣帽钩与置物台面
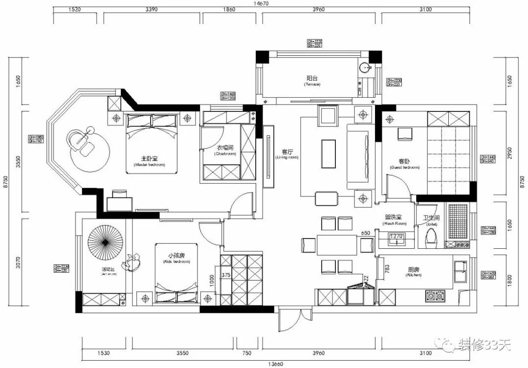
▲ 平面结构图
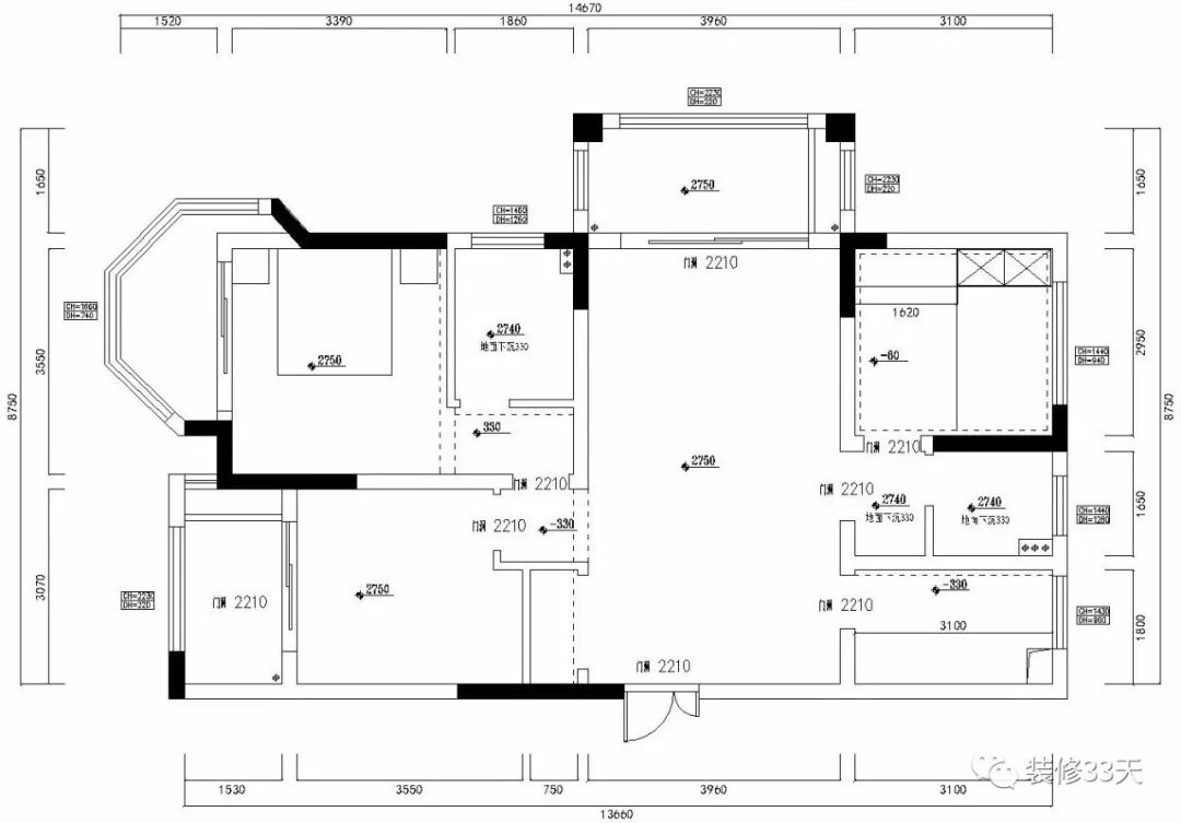
▲ 平面布置图
▲ 整个公领域空间,地面通铺木色地板,一体式顶面采用拉槽饰带修饰
▲ 通过大张地毯与围和式家具的摆放,规划出客厅场域,顶面的金属玻璃吊灯,精致而趣味
▲ 采用白色护墙板造型勾勒背景,装饰画与墨绿色主沙发以及空间的金属元素,巧妙呼应
▲ 一张芽黄色单椅起到提亮作用
▲ 客厅与阳台相邻,落地玻璃移门为室内透入充足的采光
▲ 电视墙以白色护墙造型为中心,两边对称铺贴壁纸搭配金属雾面玻璃壁灯
▲ 客餐厅互通格局,仅以功能性家具规划场域,餐厅是家庭中营造温暖气氛的核心区域
▲ 餐厅,石纹餐桌面搭配高级灰布面餐椅,金属椅脚与顶面吊灯增添轻奢质感
▲ 厨房,灰白色石纹瓷砖,搭配高级灰橱柜门片,金色钮扣拉手简单又有复古韵味
▲ 阳台,根据空间尺寸打造洗衣区,窗口加做台板用于置物
▲ 多功能房,打造榻榻米连接储物柜与书桌、书架,灰褐色的基调,提升空间气质
▲ 儿童房,纳入阳台做活动与储物区域,采用童趣壁纸与装饰画打造孩子自己的小天地
▲ 主卧,纳入多边形阳台,打造豪华大宅感的就寝空间,同时拥有大面积采光窗与休闲区
▲ 充满生机的壁纸搭配雅致线性吊灯,卡其色铆钉元素高背床提升轻奢格调
▲ 主卧床侧是步入式衣帽间,内部兼做女主化妆区
设计 | 佰壹营造(江苏)
微信:18652888202
后台回复「佰壹」可以看更多作品
媒体转载请注明装修33天并保留设计师联系方式
欢迎业主、设计师、装修公司免费投稿照片
装修33天商务合作微信:king194316
松爷店铺掌柜微信:yejia1702
佰壹营造其他作品推荐,点击下图查看沉稳配色质感大气 现代简约三层大宅
实用装修指南
装修33天 🏡 实用装修指南
喜欢我们的文章就随手转发到您朋友圈吧