点上方蓝字可关注 微信号:装修33天
▲ 建筑面积123平,硬装总造价15.9万,入户玄关柜,白色烤漆门板+原木台面,凸显出北欧风格的回归自然,后方规划为衣帽间
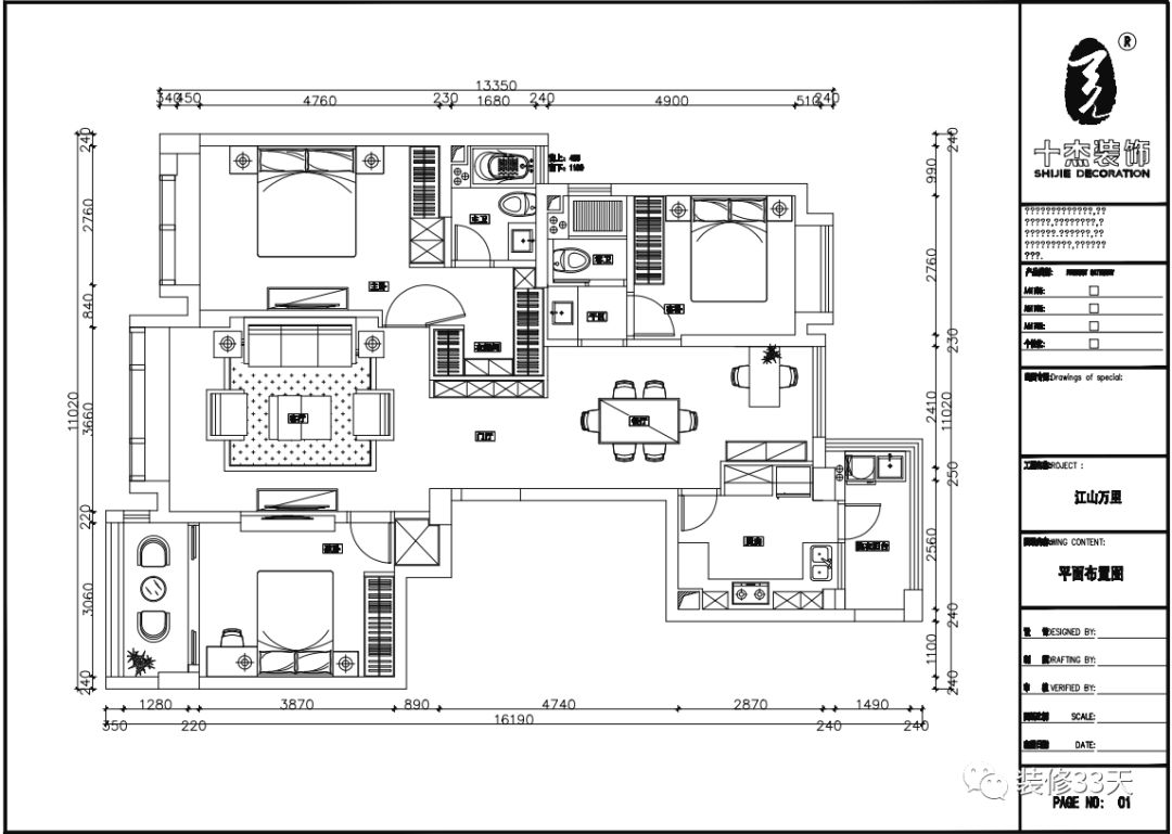
▲ 平面布置图
▲ 大理石地砖的自然质感让整个客厅呈现出简单、干净、大方的视觉享受
▲ 由于户型限制有两扇门必须都从客厅通过,所以选用四块原木色与灰色墙面呼应,完美将门隐形在原木色块里,精巧又自然
▲ 棕灰色布艺沙发搭配金色元素落地灯与蓝色大象凳,为空间增加一份趣味
▲ 临近阳台的位置放置一面全身镜,方便生活之余,承载着每天的第一缕阳光,令人倍感温馨
▲ 电视背景墙布局与沙发背景设计遥相呼应,乳白色悬挂式电视柜,整体给人以一股简单轻松的快意
▲ 极简顶面搭配白色吊灯,舒柔的配色多而不杂,用不一样的清新来舒缓心情
▲ 餐厅并没有过多的墙面装饰,红铜色松果吊灯在空间中凸显出来,原木餐桌椅搭配玻璃茶具,在纯白的空间里打造出简单明快的用餐氛围
▲ 后阳台纳入餐厅,放上办公家具,让就餐区兼具办公功能
▲ 一组白色成品收纳柜满足餐厅与办公区的收纳需要
▲ 厨房,特意挑选蓝紫色橱柜、浅灰色地砖、白色墙砖相互搭配,满足少女心的同时又提升空间活跃度
▲ 次卧,灰色布艺床+白色烤漆床头柜,灰蓝色全屋定制衣柜+金属元素,增加空间收纳功能又显时尚轻奢
▲ 主卧选择柔和的灰蓝调子+极简顶面,简单自然,营造温馨舒适的睡眠环境
▲ 两盏床头金属吊灯,为「性冷淡」的空间增添精致素雅的时尚范儿
▲ 大大的落地窗让生活显得格外舒适,阳光和煦,窗外清新养眼的绿植,从美好中开始一天的生活
▲ 卫生间干湿分区,提高使用效率,洗漱区整体采用白色基调,再配合黑色造型筒灯与防水雾圆镜,格外清新简洁
设计 | 十杰装饰(浙江)
微信:15088868905
后台回复「十杰」可以看更多作品
媒体转载请注明装修33天并保留设计师联系方式
欢迎业主、设计师、装修公司免费投稿照片
装修33天商务合作微信:king194316
松爷店铺掌柜微信:yejia1702
十杰装饰其他作品推荐,点击下图查看80平现代北欧两居 进门就顿感极简舒适
实用装修指南
装修33天 🏡 实用装修指南
喜欢我们的文章就随手转发到您朋友圈吧