点上方蓝字可关注 微信号:装修33天
▲ 使用面积106平,半包8.8万。玄关,手工打造入户收纳,柜体收边严丝合缝,简约的纽扣形挂钩,集装饰与实用功能
▲ 平面结构图
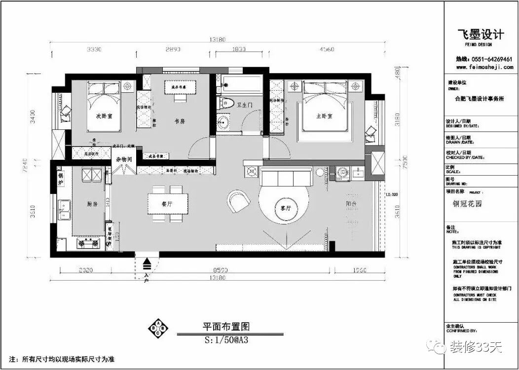
▲ 平面布置图
▲ 入户右侧,在墙面上加一小块灵活洞洞板,兼具置物与装饰,成品玄关柜与装饰画布置出过道端景
▲ 人字铺木地板搭配简洁吊顶,简约的黄铜吊灯搭配白色的洗墙灯
▲ 客厅连接大阳台,超好户型让人羡慕,通过线条、灯光、材质、配色等不同的元素组合,将生活串联起来
▲ 整体以暖灰色打底,搭配零星的原木,宁静沉稳中隐隐散发出温和的北欧格调
▲ 幸福居家就是触碰时柔软温暖,凝视时不浓烈、不扎眼,有着独特的个性和真实的醇甜
▲ 阳台,地面铺贴拼色六边砖,洗衣干衣机与台盆柜按尺寸放置,上方吊柜收纳储备生活用品
▲ 从客厅望向餐厨视角
▲ 餐厅利用原始的承重墙体,打造一排餐边柜,并探索出隐形杂物间
▲ L型橱柜+双开门冰箱,担当厨房收纳,取消吊柜还原一个明亮轻松的料理空间
▲ 通往私领域动线
▲ 打通两个房间,打造套房式次卧,书桌搭配大衣柜,为次卧配套出衣帽间及书房的功能
▲ 书桌后方靠墙放置成品原木书架
▲ 次卧则以灰蓝色为基调,结合原木元素,质朴自然,轻盈的家具让空间有自由多变的可能
▲ 主卧用温馨的豆沙红表达空间情绪,从色彩到细节,将心境转换
▲ 灰色软包大床搭配乳白色床头柜,尤加利点缀清新质感
▲ 卫生间,小白砖+美缝,原木色家具的加入,立马让空间变得轻盈温馨
设计 | 飞墨设计(合肥)
微信:feimojun
电话:18019993625
后台回复「飞墨」可以看更多作品
媒体转载请注明装修33天并保留设计师联系方式
欢迎业主、设计师、装修公司免费投稿照片
装修33天商务合作微信:king194316
松爷店铺掌柜微信:yejia1702
飞墨设计其他作品推荐,点击下图查看80平清新北欧老房改造解决暗厅
实用装修指南
装修33天 🏡 实用装修指南
喜欢我们的文章就随手转发到您朋友圈吧