点上方蓝字可关注 微信号:装修33天
▲ 使用面积120平,造价35万(不含电器),入户藤编网面的鞋柜,星星吊灯营造玄关氛围
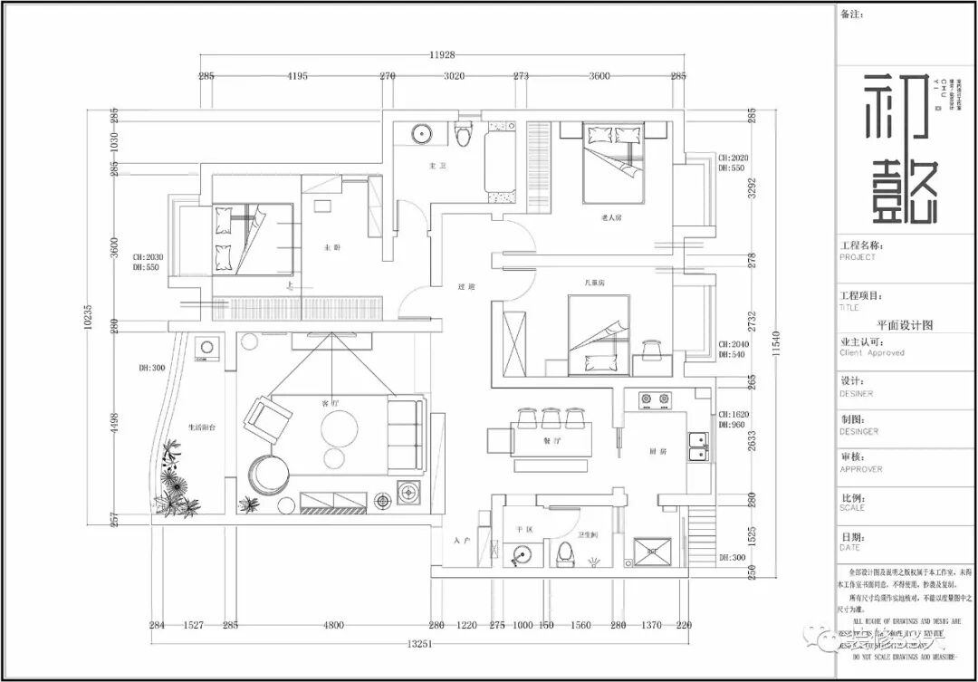
▲ 平面布置图
▲ 老小区规定不能打拆任何墙体,空间布局更多强调居家动线氛围,将错层之上的公区顶面保留原顶结构灰色乳胶漆,与错层之下顶面平行位置贴石膏平线
▲ 客厅摒弃传统的沙发面对电视的固有方式,将书架设置于客厅的中心位,灰色乳胶漆在外凸的层次关系中延续出来
▲ 主沙发配吊椅,茶桌,罗马柱边几与艺术石膏雕像增添艺术氛围
▲ 在客厅,听一首歌,看一本书,认真而放松的享受生活
▲ 军绿色帆布沙发质感赋予空间温暖
▲ 电视墙没有任何造型,满铺墙纸转折进入过道,选择花豹在藤蔓丛林穿梭,给人一种野性的感觉
▲ 阳台地面采用大理石纹六边砖延伸至洗衣机背景墙,结合黑色木纹砖,呼应室内黑底壁纸
▲ 餐厅将左右两边的墙面进行颜色区分
▲ 太妃糖褐色+白色墙,点缀原木与金色元素,轻松打造复古轻熟格调
▲ 客卫干区采用贴半砖的形式,上半墙涂刷与公区一致的太妃糖褐色,让空间得以延续
▲ 儿童房的小恐龙壁纸搭配浅色星点壁纸,深浅搭配层次清晰,床靠墙放置增强安全性并留出宽阔的活动空间
▲ 黑色基底壁纸配木色书桌,金属元素与木质结合的台灯,既作装饰更具功能性
▲ 老人房的背景花墙纸在选择上偏向沉稳图案,带点水彩晕染的感觉,靛蓝+白灰成为整个空间主色调
▲ 灰白拼色制定衣柜解决卧室收纳需求,樱桃木床头柜是穿插在空间里暖意
▲ 主卧完全遵循自由随性的设计,地台床+整排置顶柜,植物墙纸配以木作家具,延续客厅的丛林感觉
▲ 穿衣镜旁设置杂物柜,可坐可储物,功能强大
▲ 氛围吊灯为这个角落增添了更多生活情趣
▲ 主卫,深色地砖配灰色墙砖,台上盆的洗脸台,下方直接敞开,储物功能更强大
▲ 浴缸背景的手绘印第安人花砖,打破空间规律的秩序感
设计 | 初懿设计(成都)
微信:18180817659
后台回复「初懿」可以看更多作品
媒体转载请注明装修33天并保留设计师联系方式
欢迎业主、设计师、装修公司免费投稿照片
装修33天商务合作微信:king194316
松爷店铺掌柜微信:yejia1702
初懿设计其他作品推荐,点击下图查看9.5万改造91平精装房 不动户型换颜北欧风
实用装修指南
装修33天 🏡 实用装修指南
喜欢我们的文章就随手转发到您朋友圈吧