点上方蓝字可关注 微信号:装修33天
▲ 使用面积85平,造价25万(不含家电),入户左侧做一组鞋柜,中部留空嵌入灯带增加进门后的氛围,鞋柜背后是餐厨空间,过道右侧用谷仓门隔断客卫
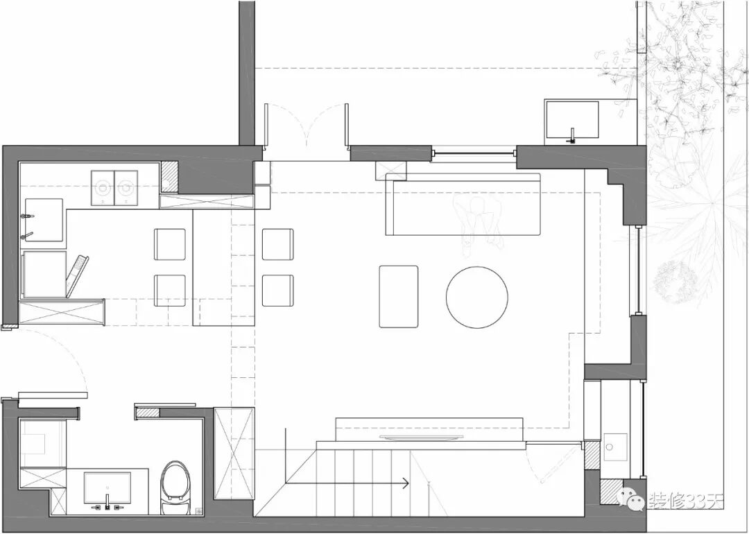
▲ 一层平面布置图
▲ 二层平面布置图
▲ 客厅,灰色自流平搭配水泥墙,墙面的猫跑道贯穿整个空间,简直是猫咪的天堂,上去了就不想下来了
▲ 靠窗做一个储物地台,增加收纳空间的同时也弥补空间小坐位不足的问题,也可以在冬日午后坐在地台上,喝喝茶、聊聊天
▲ 黑色皮沙发搭配金色落地灯,质感丰富,蓝色沙发凳与薄荷绿茶几,提升视觉效果
▲ 轨道灯、百叶窗、玻璃移门,满足室内采光,玻璃移门外是一个大露台
▲ 电视墙左侧设计隐形门,利用楼梯下方空间设置储物室,左侧的洞口贯通一二楼,猫可以直接从里面顺着管道做出来的台阶爬到二楼
▲ 电视背景用简单的底色做背景,保留地台与抽屉,右侧为猫咪的台阶
▲ 客厅望向餐厨视角,利用厨房区域包梁所降下来的吊顶高度,摆放业主收藏的公仔
▲ 餐厅与厨房相连,餐桌既可作为厨房台面不够用时的延伸空间,也最大程度上满足家人之间的互动
▲ 木色吊顶遮蔽原结构顶上的管及梁,更加整洁一体,半开放式餐边柜,兼具装饰机能
▲ 整体定制黑色橱柜,增添层次感,地面铺贴花砖,让狭小的区域一下子显得灵活起来,也让这一块空间多了一些细节
▲ 客卫,洗手台为水泥浇筑,与墙面做成一体,利用右侧墙面做洗衣机柜,满足洗衣烘干功能
▲ 客餐厅由楼梯做自然划分,上楼梯右侧墙面嵌入储物柜,将生活日用品储藏在家庭中心地带,方便取拿
▲ 楼梯,材质与墙面呼应,并在底部增加灯带,能有效的拓宽视觉感
▲ 二楼,整体采用人字铺木地板,主卧与开放式多功能空间用黑框玻璃隔断,不影响通透感
▲ 多功能空间摆放沙发,靠窗设置隔板书桌,可以工作、休闲、看书,旁边是猫咪上二楼的洞口
▲ 主卧,把床铺摆在整个空间的中间,形成洄游动线,床背两侧是卫生间与衣帽间,设置一扇移门,可以移到中间作装饰效果
▲ 床由木工现场制作,床铺下方三周都留出了放书放物空间,替代床头柜功能
▲ 床头摆放主人心爱的铁臂阿童木摆件,床边的红色斗柜打破空间用色的沉寂,让空间显得更有层次
▲ 床尾设置投影幕布,床头斗柜摆放投影仪,晚上闲暇可靠在床上看电影
▲ 主卫,石纹地砖搭配灰色墙砖,尽显高级格调,玻璃隔断划分出淋浴空间
▲ 悬挂浴室柜搭配壁挂马桶,减少卫生死角,镜柜延伸至马桶上方,将空间利用最大化
设计 | 域舍设计(厦门)
微信:13255066160
后台回复「域舍」可以看更多作品
媒体转载请注明装修33天并保留设计师联系方式
欢迎业主、设计师、装修公司免费投稿照片
装修33天商务合作微信:king194316
松爷店铺掌柜微信:yejia1702
域舍设计其他作品推荐,点击下图查看两孩之家设计三分离卫生间
实用装修指南
装修33天 🏡 实用装修指南
喜欢我们的文章就随手转发到您朋友圈吧