点上方蓝字可关注 微信号:装修33天
▲ 使用面积178平,精装房改造价75万(不含家电),三口之家,Floria 是一名自媒体博主兼 Vintage 服饰店主理人,设计师将一家人旅程中的丰富记忆和体验用软装设计融入家中
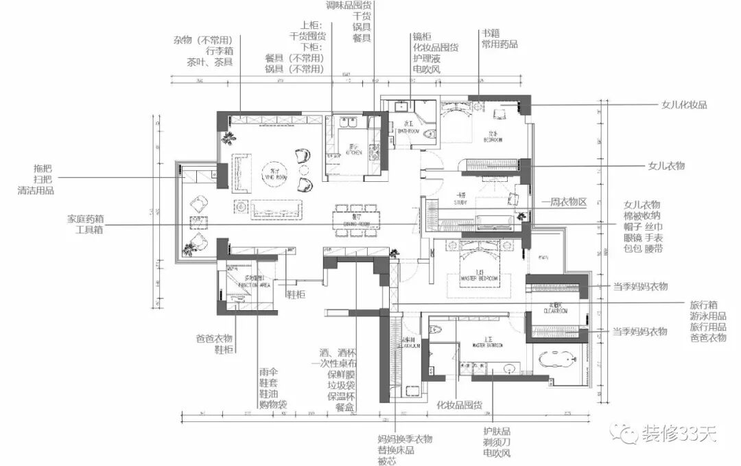
▲ 平面布置图
▲ 将整面定制鞋柜和装饰隔墙合二为一,容量相当于6个成品鞋柜,柜内设计活动板,可以根据鞋类高度灵活调节
▲ 客厅,Norhor 牛皮大沙发、美国轻复古 United strangers 单椅纤细铁艺、里斯本回收木 Objectum 茶几、中式仿手提灯笼手工吊灯,粗犷和细腻元素糅合
▲ 原多层级吊顶拆除改平吊,特意保留客餐厅间的吊顶结构用于区分两个区域,长达7m的桃木由墙及顶,串联出空间大气感
▲ 灰色石岩板墙搭配木饰面,丰富造型层次,留白墙面修饰艺术挂画
▲ 电视背景墙按压式开合,平时是一面具有凹凸层次感的装饰墙,实际由大小不一的38个柜格组成,左右两侧预装活动层板,可拆卸局部层板同时放入4个24寸行李箱
▲ 客厅改造前后对比
▲ 阳台与客厅相连,将洗衣池改为放置茶具、零食、杂物的收纳柜,花砖元素用到茶桌上,独特又趣味
▲ 每天晨起时,大家都先到景观阳台泡茶、观景、聊天,单纯发发呆也很放松
▲ 餐厅,瓷砖地铺浅橡木色地板覆盖,将原本右侧墙面石材、玻璃造型拆除,定制柜体+隔板装饰墙面
▲ 可伸缩餐桌,拉开可达2M多,满足8-10人聚餐,木饰面嵌入超薄钢制隔板,纤细精致且承重佳,满足长辈收藏名酒需求,后方大容量柜体可供餐边收纳
▲ 过道的成品餐边柜进一步为收纳增容,藤编造型和棉麻墙面,整体立面强化自然主义风格
▲ 多功能房,常置景拍摄,所以墙面贴海基布刷淡山茱萸粉,和绿调形成撞色,低饱和度更耐看,Thonet 最经典的14号椅跨时代演绎优雅曲线
▲ 顶面隐藏电动幕布,拉上天鹅绒窗帘,秒变私人影院
▲ 松石绿沙发床貌美又实用,可伸缩变休闲床使用,Floria 最爱靠着沙发,坐在波西米亚风情的平织大地毯上,尽享自在
▲ 次卧,设计师为 Floria 量身定制出无限接近她审美和态度的空间风格
▲ 将法国《天使爱美丽》电影美学中的云杉绿融入空间,并从墙面一直蔓延到天鹅绒窗帘
▲ 精致的梳妆台搭配肌理丰富的海基布墙面,可旋转壁灯设计,转向床头为睡前阅读灯,转往梳妆台即为化妆照明灯
▲ 床尾设计通高大衣柜满足收纳,外侧开放转角,方便随手置物
▲ 次卧改造前后对比
▲ 主卧,融入希腊三部曲《The Durrells》中的影像美学,以低饱和度大地色为主,辅以海蓝色,营造简单舒适的睡眠氛围
▲ 床侧的挂画与地毯呼应,将衣柜设计在进门处,解放过道空间
▲ 主卫面积18㎡,功能一应俱全,与主卧阳台洗晒动线串联,定制一排侧面深度200mm收纳窄柜延伸到马桶区变为隔板(方便放置手机)
设计 | 理居设计(厦门)
微信:15750775711
公众号:理居设计
后台回复「理居」可以看更多作品
媒体转载请注明装修33天并保留设计师联系方式
欢迎业主、设计师、装修公司免费投稿照片
装修33天商务合作微信:king194316
松爷店铺掌柜微信:yejia1702
理居设计其他作品推荐,点击下图查看现代北欧小清新舒适大平层
实用装修指南
装修33天 🏡 实用装修指南
喜欢我们的文章就随手转发到您朋友圈吧