点上方蓝字可关注 微信号:装修33天
▲ 建筑面积73平,老房改造案例,14万硬装,软装+订制柜体5万,家电3万,总造价22万
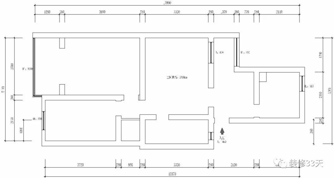
▲ 平面结构图
▲ 平面布置图
▲ 入户右侧设计一组半高鞋柜,台面便于随手置物,墙面一幅艺术挂画修饰背景
▲ 餐厅空间封闭了原先门的位置,选择四人小餐桌椅,金色的金属元素搭配墨绿,跳色分明
▲ 餐边柜设计采用壁橱的形式,利用玻璃做成,加上灯光效果,清透敞亮,充分节省空间,同时保证采光
▲ 从餐厅通往客厅
▲ 老小区房子,化解层高和无窗等缺陷,顶面用简单的吊顶简化空间
▲ 客厅墙面保留原有壁橱,采用绿色造型,暖橙色皮质沙发搭配金属钢化玻璃茶几,避免视觉上的阻碍
▲ 人造大理石铺贴出电视背景墙,简单大气,搭配两边白色的石膏线框,空间层次感分明
▲ 客厅与餐厅之间的延伸空间设计了一个小书房,在拐角处定制L型书桌,充分利用了拐角空间
▲ U型厨房,利用浅色作基调,放大视觉,浅木灰色的橱柜搭配浅灰色地砖,配色十分统一
▲ 次卧,采用榻榻米设计,最大程度增加收纳功能,家具的原木感搭配白色,以及清新蓝粉点缀,整个空间看上去十分养眼
▲ 简易小书桌设计搭配简单的开放式收纳架,简单实用,美观大方
▲ 主卧纳入阳台,拓展使用面积,空间整个配色和谐舒适
▲ 蓝色乳胶漆背景墙装饰空间,看上去清澈干净,搭配同色系的窗帘以及床品
▲ 卧室整面衣柜解决收纳问题,白色定制衣柜与顶面齐高,同时与石膏线无缝连接,保证空间整体性
▲ 卧室阳台两侧增设整面定制柜,并将阳台空间作为一个简单的休闲空间
▲ 卫生间,选用石灰色墙地砖搭配,湖绿色玻璃移门作隔断,洗手台一侧做洗衣区
设计 | 恒彩设计(杭州)
微信:13735431404
后台回复「恒彩」可以看更多作品
媒体转载请注明装修33天并保留设计师联系方式
欢迎业主、设计师、装修公司免费投稿照片
装修33天商务合作微信:king194316
松爷店铺掌柜微信:yejia1702
恒彩设计其他作品推荐,点击下图查看89平实用混搭三居,地台阳台休闲兼储物
实用装修指南
装修33天 🏡 实用装修指南
喜欢我们的文章就随手转发到您朋友圈吧