点上方蓝字可关注 微信号:装修33天
▲ 使用面积128平,入户正对主卧门,以长虹玻璃作为隔断缓冲视线
▲ 原始结构图
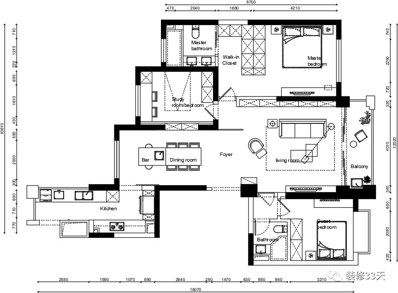
▲ 平面布置图
▲ 整个房子是比较正气且通透的户型,没有很大的结构毛病,木色地板搭配黑白灰的空间,冷暖色调保持平衡
▲ 沙发背景的开放式部分作为空间的缓冲,打破沉闷,布艺搭配木质家具,不规则地毯给空间注入弧形线条
▲ 细节处理上也用了「描黑边」方式让白色的柜体更具层次感
▲ 沙发后面的过道,顶面的黑槽也起到动线引导
▲ 客厅的纵宽有将近4.8米,将其一分为二,3.8米留给客厅,与65寸电视机形成合理的常规视距,背后100cm留了30cm的收纳柜与70cm的行动路径
▲ 电视墙特写,电视柜与顶面的黑槽之间存在比例关系,灰色的线块用的是装饰水泥漆最淡的一个色号,作为顶面和墙体两段黑色之间的承载与过渡
▲ 客厅全貌,越是简洁的东西,越是需要比例控制的好才能出质感
▲ 客厅望向餐厅视角,以及开关灯后的效果
▲ 餐厅,造型简洁的餐桌连接中岛吧台,一侧用九宫格的照片墙作为轻装饰,厨房用吊柜细边框移门,与对面的灰色镜面也形成对比关系
▲ 右侧的西厨,与中岛吧台作为餐厅的辅助功能
▲ 餐厅望向客厅视角
▲ 黑白灰的厨房,大理石纹理彰显大气,厨房高柜配合嵌入式蒸箱与烤箱,深度与操作台同宽60cm
▲ 客卫较小且无窗,为了淋浴房开门不受阻,所以定制三角形台盆柜,与淋浴房形成内切角,避免形成卫生死角的尴尬
▲ 书房是围墙式的收纳设计,靠窗的部分写字台下部支撑位置也是收纳柜,整体采用防岩板柜门与侧墙层板相呼应
▲ 主卧床背软包也采用大小分割的手法,利用层高的特点,在墙体上半部分做灰色的对分,这样即便同样是涂料也不会显得很沉闷
▲ 在衣柜靠近床头的最内侧预留开放式部分,目的是能分类挂一些穿过但不想洗的衣服
▲ 利用空间尺度,将主卧室完全更换布局,用柜体作为区域间隔,形成四面可开启的收纳衣柜,衣帽间动线直接引导至主卫,洗完澡直接换衣服进卧室
▲ 主卫将淋浴房的宽度扩大至95厘米,并在末端加壁龛可以集中收纳洗浴用品,淋浴房的地面大理石抽槽,防滑处理
设计 | 独立设计师 王中玮(上海)
微信:WangZw_Design
后台回复「王中玮」可以看更多作品
媒体转载请注明装修33天并保留设计师联系方式
欢迎业主、设计师、装修公司免费投稿照片
装修33天商务合作微信:king194316
松爷店铺掌柜微信:yejia1702
独立设计师 王中玮其他作品推荐,点击下图查看88平现代小复古混搭 中间套敞亮气质婚房
实用装修指南
装修33天 🏡 实用装修指南
喜欢我们的文章就随手转发到您朋友圈吧