点上方蓝字可关注 微信号:装修33天
▲ 建筑面积100平,基于业主是基督教徒,结合律师的职业性,整体采用自然素材,有益身心环境的简洁色彩
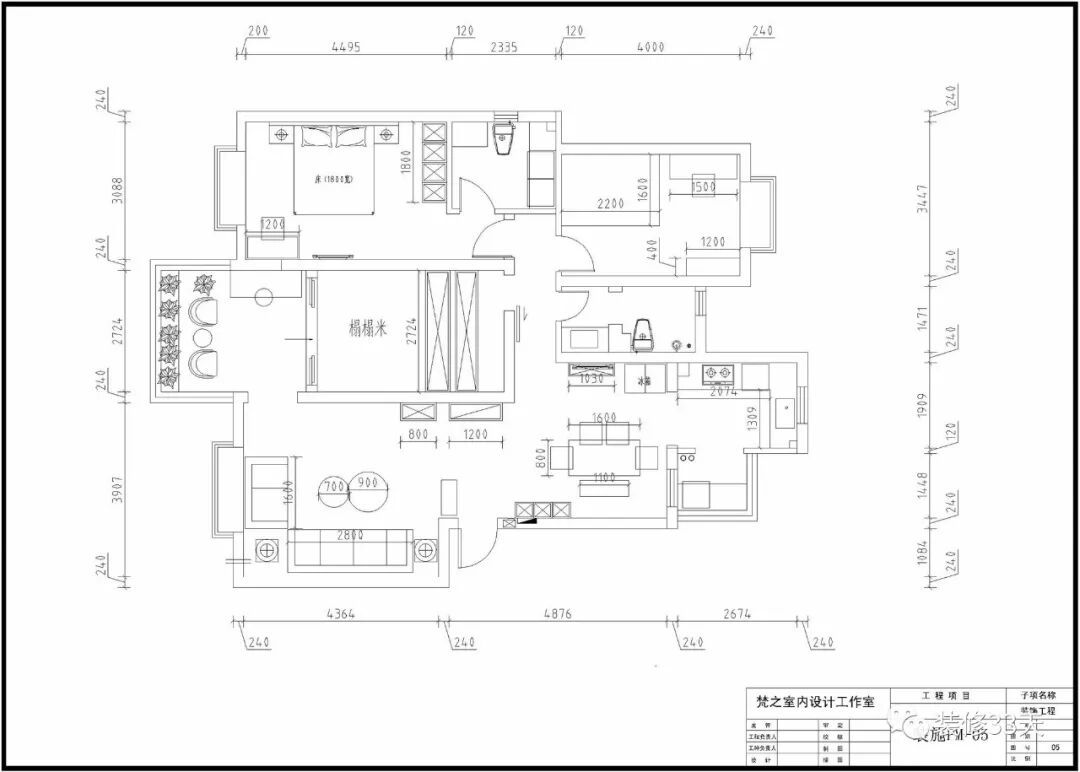
▲ 平面布置图
▲ 入户直面成品储物高柜,进入室内后右手边放一组成品矮柜,做入户收纳,装饰画遮挡了强电箱
▲ 客厅,木色地板搭配木色踢脚线,简洁的留白墙面装一盏极简吸顶灯,落地窗引入户外绿植,让室内也生机勃勃
▲ 卡其色背景搭配蓝灰色布艺沙发,简洁纯粹的配色使人可以安静下来
▲ 靠近入户的沙发一角,采用线性吊灯点亮暗角,营造空间氛围
▲ 纸质吊灯+编织休闲椅,默默的为这个小角落加分
▲ 简练且富有东方禅意神韵的实木茶几,同形状不同款的考虑,且错落摆放为空间增加细节变化以及层次感
▲ 客厅望向餐厨视角,公领域取消传统电视墙,采用错落的实木柜丰富背景
▲ 餐厅连接厨房,延续客厅将背景墙进行延展,整体简约不失细节
▲ 简约的吊灯+实木的百叶窗和大板桌,充满自然气息,点缀绿色植物整个空间立刻变得生动
▲ 随意摆放的餐具及美食,在大地色的墙面烘托下,没有显得杂乱,反而看着让人觉得内心平静
▲ 厨房,具有天然纹理的木色橱柜,配上小白砖,简约环保,而窗外的景更是一副自然的装饰画
▲ 设置日式榻榻米,增加空间的多变性,可以满足平时在这里祷告,冥想,休憩等
▲ 主卧整体色调给人柔和自然的质感,格子四件套与窗帘进行色彩呼应,加上实木家具的自然纹理,让整个卧室都充斥着一股自然朴实的气息
▲ 简约却在细节上十分精致,成品的考虑也大大提高空间以后的可变性
▲ 床尾,人性化设计桌椅,精致的造型工艺,多看几眼你一定会爱上
▲ 床侧床尾的成品家具木质细腻,质感丰富
▲ 卫生间,延续厨房砖的配色原理,黑色五金件进行撞色点缀,考虑使用方便以及安全性,放弃玻璃淋浴房采用浴帘设计
设计 | 梵之设计(成都)
微信:373454377
后台回复「梵之」可以看更多作品
媒体转载请注明装修33天并保留设计师联系方式
欢迎业主、设计师、装修公司免费投稿照片
装修33天商务合作微信:king194316
松爷店铺掌柜微信:yejia1702
梵之设计其他作品推荐,点击下图查看120现代简约四室 儿童房换种颜色换格调
实用装修指南
装修33天 🏡 实用装修指南
喜欢我们的文章就随手转发到您朋友圈吧