点上方蓝字可关注 微信号:装修33天
▲ 使用面积117平,入户定制L型柜体结合灰云壁纸,打造大容纳收纳的高颜值玄关
▲ 原始结构图
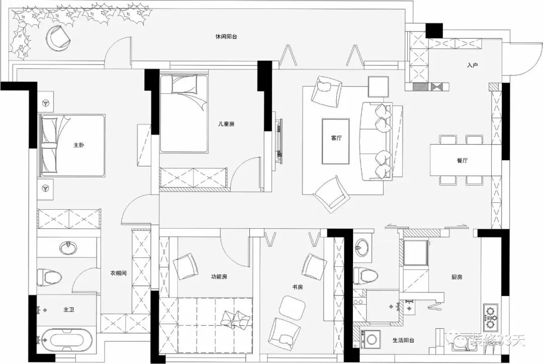
▲ 平面布置图
1.把入户花园用砖封实后,变成了入户玄关;
2.把生活阳台分为两部分,一部分并入厨房,另一部分让给客卫,使本来横向的客卫空间变为纵向;
▲ 客厅,大面积落地窗让室内采光与视野俱佳,灰白色调的大理石纹地面勾勒黑色波导线,吊顶内凹采用石膏线做井字造型,拉伸层高
▲ 祖母绿丝绒主沙发搭配实木茶几与美式单椅,顶面吊灯造型与整室风格同样雅致
▲ 空间的整体氛围与格调出自每一处的细节体现
▲ 电视背景采用纯黑基调,用金色元素点缀,大理石+电子壁炉,增添经典美式风格元素
▲ 客厅后方规划为餐厅,开放式的格局增加家人间的互动,以餐桌端景为中轴,两边对称设计两组背景边柜,中部留空便于置物
▲ 经典美式餐桌椅,搭配赋有设计感的线性吊灯,绿植壁画与暖光增加就餐区的氛围
▲ 与餐厅动线相邻的厨房与客卫采用谷仓门+长虹玻璃设计,开时结合墙纸作背景,合时隔断各个空间
▲ 厨房地面采用人字铺木纹砖,黑色橱柜门勾勒金色细纹,内敛不失高雅别致
▲ 客厅左侧规划为书房
▲ 书房采用长虹玻璃折叠门,透光不透明,特意做长做窄的门片显得更加时尚大气,同时拉伸视觉层高
▲ 充满简约美式格调的书房,原木色木地板搭配浅灰褐色墙面,柜门、写字台、墙面色调保持一致
▲ 多功能房,榻榻米靠窗设计,大面采光窗将室外绿景引入室内,粉色墙面搭配浅灰褐色柜体,一把编织椅勾起复古情怀
▲ 儿童房,清新绿墙面搭配木地板,房屋造型的儿童床架充满童趣
▲ 绿叶壁纸搭配暖光壁灯,温馨感爆棚
▲ 主卧,米白色软包高背床搭配灰色背景墙,几条金色细线勾勒又回到高雅精致的轻奢简美格调
▲ 在主卧步入主卫的动线上设计L型衣帽间,整体风格与入户保持呼应
▲ 主卫,六边形地砖配大理石纹瓷砖,台盆柜门与橱柜门保持一致,整面镜柜拉伸视觉空间
▲ 主卫浴缸区域,简单的大理石纹点缀绿植就足够大气,搭配一个收腰置物边几,增加艺术感线条
▲ 玫瑰金复古五金在烛光的映衬下更加高级
▲ 超仙气休闲阳台,可以放空、冥想的安静一角
设计 | 清羽设计(成都)
微信:18010695029
QQ:5431089
后台回复「清羽」可以看更多作品
媒体转载请注明装修33天并保留设计师联系方式
欢迎业主、设计师、装修公司免费投稿照片
装修33天商务合作微信:king194316
松爷店铺掌柜微信:yejia1702
清羽设计其他作品推荐,点击下图查看108平清爽美式三居 简单配色气质高雅
实用装修指南
装修33天 🏡 实用装修指南
喜欢我们的文章就随手转发到您朋友圈吧