点上方蓝字可关注 微信号:装修33天
▲ 使用面积123平,造价35万,客厅以蓝灰白色为主色调,点缀少许金色软装,质感满满的深色木质家具稳住了整个客厅空间
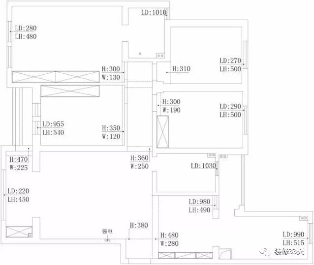
▲ 平面结构图
▲ 平面布置图(二手房改造注意三点:1.老化水管电路都该换;2.装修完进行蓄水实验;3.房子大改不可乱砸墙)
▲ 深蓝色的窗帘与浅灰色的墙面搭配上弧形的木质家具,色彩由浅到深体现出空间的层次感,蓝色的缎面窗帘恰好可以提亮木质家具带来的沉稳
▲ 布艺制品和皮艺制品在沙发的选择上进行完美结合,暗色系的沙发搭配上多彩抱枕,视觉上中和暗沉
▲ 仿古边几上铜制时钟配瓷器台灯,不同种类家装材料的搭配,是有质感的家装材料营造轻奢感的前提
▲ 墙面上的石膏线条,整齐统一的装饰了公共区域的墙面,不用软装饰的点缀就足够体现视觉观感
▲ 入户右侧是餐厅和客厅主要的收纳区域,为了中和轻奢给人的距离感,复古家具的style融入各种暖暖的元素
▲ 餐厅另一侧用装饰镜使餐厅更通透,直径一米二的圆桌可同时容纳八人用餐
▲ U型橱柜是最满足收纳和操作台面的使用,暖色调的橱柜门板简洁易打理,在满是墙砖的厨房里增添温暖
▲ 走廊墙面的石膏线条与客厅一致,将客厅一直延展到卧室,更显整体统一,尽头处的挂画丰富单调的墙面,白羽毛的画面质感十足
▲ 书房是小朋友用来学习和练琴的地方,书桌结合书柜,飘窗设计成休闲区,拉扣皮制椅轻奢范十足
▲ 女儿房,浅灰色背景墙搭配卡其色皮质简美大床,利用飘窗位置打造U型柜体,兼具储物与休闲功能
▲ 柜门的线条与墙面石膏线呼应,金属质感的灯饰与五金增添空间精致细节
▲ 20㎡的主卧,考虑采光和卫生间的湿气,去掉衣帽间,让整个卧室有足够的采光,空置的区域以后可以添置梳妆台、按摩椅等
▲ 一整面墙的衣柜设计,满足衣物收纳需求,大面积奶油色搭配深蓝色灰色为辅,甜蜜愉悦,金色点缀烘托空间的优雅氛围
▲ 卫生间地砖墙砖颜色材质统一,整体颜色主要以灰白为主,干净易打理
设计 | 田氏作坊设计事务所(武汉)
微信:17771837933
后台回复「田氏」可以看更多作品
媒体转载请注明装修33天并保留设计师联系方式
欢迎业主、设计师、装修公司免费投稿照片
装修33天商务合作微信:king194316
松爷店铺掌柜微信:yejia1702
田氏作坊设计事务所其他作品推荐,点击下图查看81平现代混搭两室 几何形色彩背景墙
实用装修指南
装修33天 🏡 实用装修指南
喜欢我们的文章就随手转发到您朋友圈吧