点上方蓝字可关注 微信号:装修33天
▲ 使用面积90平,造价30万(不含电器),玄关选用薄款鞋柜,穿衣镜上的一盏壁灯,不仅让照镜子的效果更好,也让玄关的氛围温暖起来
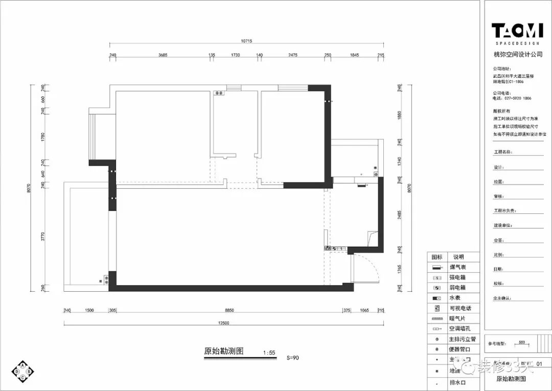
▲ 平面结构图
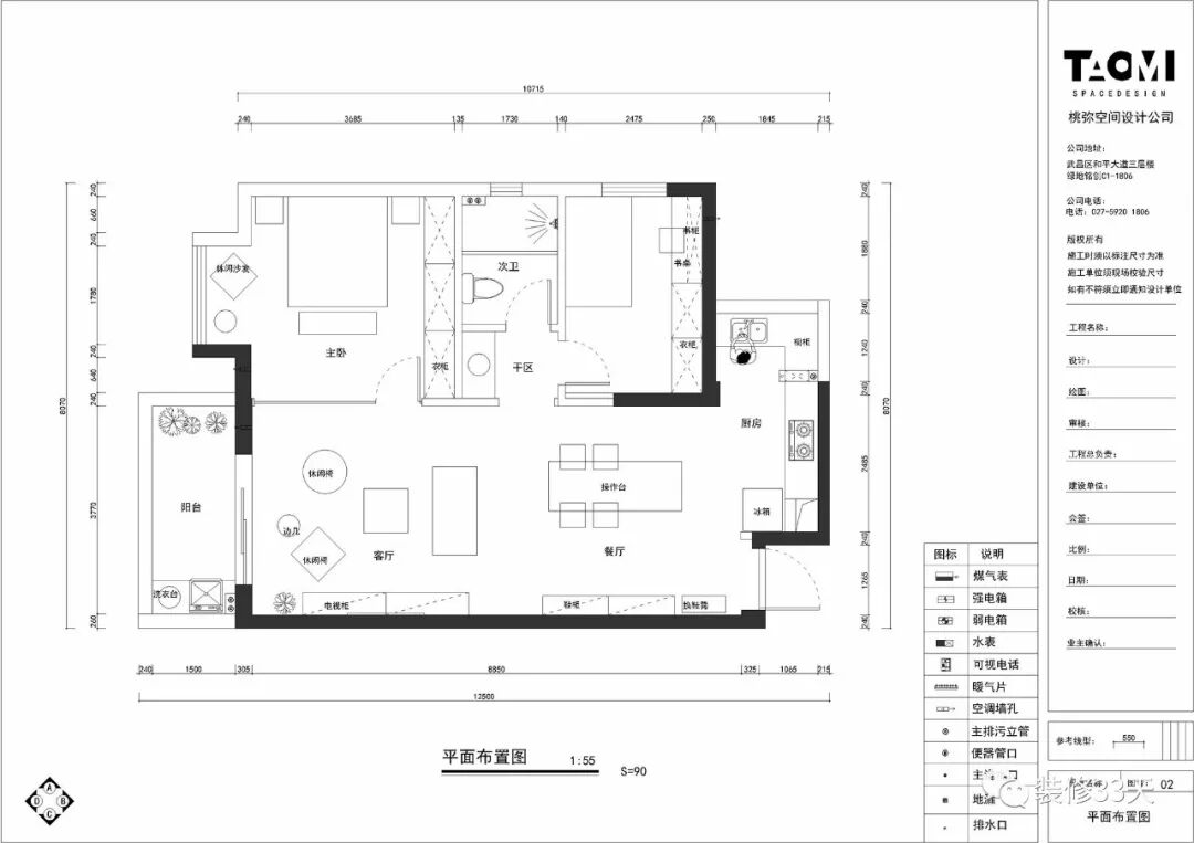
▲ 平面布置图
▲ 客厅,文化墙、水泥自流平、无主灯设计,奠定空间的不羁风格,铁艺和黄铜刻意保留的粗犷,却和皮质沙发、天然木材相辅相成,工业风的阳刚之气里,碰撞出时髦雅致
▲ 客厅,不仅是看电视,也可以是阅读区、会客区、亲子区,沙发采用围合式摆法,电视背景墙预留投影幕布的凹槽,方便周末看电影
▲ 电视柜由桃弥施工团队现场制作,置物架使用黄铜管和木板现场制作,既增添工业风的机械感,以及空间的层次感,又让杂志和相框有了容身之所
▲ 餐厨场域,中岛地面使用六角地砖划分,旧木板制作的岛台与相同材质的吊顶相互呼应,配上黑色大理石台面有质感
▲ 石材的天然纹理,配上金属质感的吧台椅,酷感十足
▲ 橱柜现场制作,人字铺贴的白色墙砖让视觉层次丰富起来,黑与白、水泥和木质互碰撞,全面提升家的品质感
▲ 次卧选择铁艺单人床、铁艺搁板,配上百叶窗帘,呈现最简单的舒适感,现场制作的书桌摆放电脑、手办、绘画板,让卧室兼具书房功能
▲ 细框玻璃门让空间无限放大,也让光线和空气自由流动
▲ 改动主卧进门方向后,获得一整面墙体制作通高衣柜,复古天地锁手工感十足,每次开关的时候都能感受到金属的真实质感
▲ 黑色床头背景、烟熏木色床头、对称壁灯,简约的卧室空间,色彩的过渡和细节搭配却非常有心思
▲ 干区墙砖同样采用人字铺贴法,洗手台台面和中岛选用相同的大理石材,纹路自然、质感出众,台下盆设计方便打扫卫生
▲ 墙面采用墙砖拼卫浴漆,收口细节的处理非常精致,配上黄铜壁灯,莫名多了一丝精致复古感
设计 | 桃弥空间设计(武汉)
微信:18627061616
后台回复「桃弥」可以看更多作品
媒体转载请注明装修33天并保留设计师联系方式
欢迎业主、设计师、装修公司免费投稿照片
装修33天商务合作微信:king194316
松爷店铺掌柜微信:yejia1702
桃弥空间设计其他作品推荐,点击下图查看130平轻奢三室颜值出众 时髦居家功能实用
实用装修指南
装修33天 🏡 实用装修指南
喜欢我们的文章就随手转发到您朋友圈吧