点上方蓝字可关注 微信号:装修33天
▲ 建筑面积100平,套内面积80平,半包7万,总造价38万,入户左侧木作柜体兼具收纳与置物,门厅处用木地板结合大理石纹六角砖,延伸至客厅又回到木地板
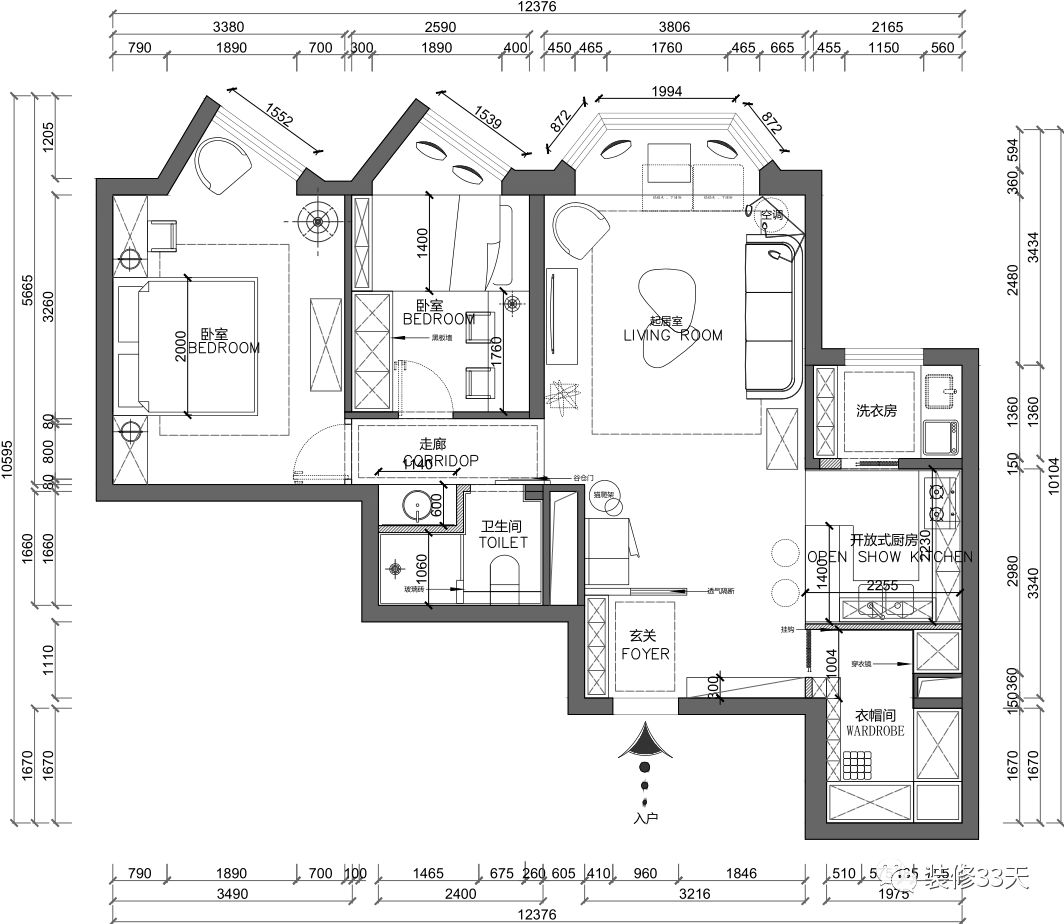
▲ 平面结构图
▲ 平面布置图
▲ 用长虹玻璃做隔断,破「穿堂煞」,这样入门时不见窗,定制的蓝色门厅斗柜,和墙面的颜色同系
▲ 客厅效果图
▲ 客厅实景,选用木质百叶窗,相比窗帘更省空间,为不遮挡开窗,将百叶窗分成三组,开窗户的区域可以单独拉上去
▲ 乌克兰设计师 Daria Zinovatnaya 的拼色墙非常火,设计师在此基础上调整比例和变化造型,更加符合这个空间的尺度
▲ 居家朝南,晴天时候会有斑驳的光影洒进来,和墙面、沙发交融,随着光影的变换,仿佛能感觉到时光的流逝
▲ 客厅效果图(从客厅望向门厅与餐厨)
▲ 餐厨效果图
▲ 餐厨实景,业主夫妻平时几乎都不做饭,原始户型6.6平米的厨房有点浪费,改成开放式厨房,整体厨房和吧台共5平米,让空间具有延展性
▲ 黄色蜜蜂瓷砖搭配深色橱柜,设计600+600高低台吧台,高吧台内进深350,外面抽屉进深200
▲ 将厨房与洗衣房连通,延伸空间,引入采光
▲ 走廊望向公领域端景,利用过道将洗手台外置,木色谷仓门确保卫生间的私密性,并丰富过道立面
▲ 次卧,移动门洞的位置后,定做60cm宽、176cm长的双人办公桌,不规则的空间做不规则的大号榻榻米+柜体,满足就寝与储物
▲ 主卧衣柜很少,主要收纳空间在次卧+独立衣帽间,一组高柜兼具床头柜的功能,房间整体颜色是女业主最爱的糖果色
▲ 把闲置2年的粉红色椅变废为宝,融入在整个马卡龙色系中
▲ 将衣帽间规划在入户处,门口安装了现在很流行的立川折叠门,内部是满满的收纳柜体
▲ 卫生间,新建墙体隔出独立洗手台,开门这边做成壁龛景观墙,平时仓谷门打开的,也不会突兀的看见一面空墙
▲ 业主与设计师
设计 | 玖雅设计(北京)
微信:18611911806
后台回复「玖雅」可以看更多作品
媒体转载请注明装修33天并保留设计师联系方式
欢迎业主、设计师、装修公司免费投稿照片
装修33天商务合作微信:king194316
松爷店铺掌柜微信:yejia1702
玖雅设计其他作品推荐,点击下图查看建面68平三口之家打算生二胎还带仨宠
实用装修指南
装修33天 🏡 实用装修指南
喜欢我们的文章就随手转发到您朋友圈吧