点上方蓝字可关注 微信号:装修33天
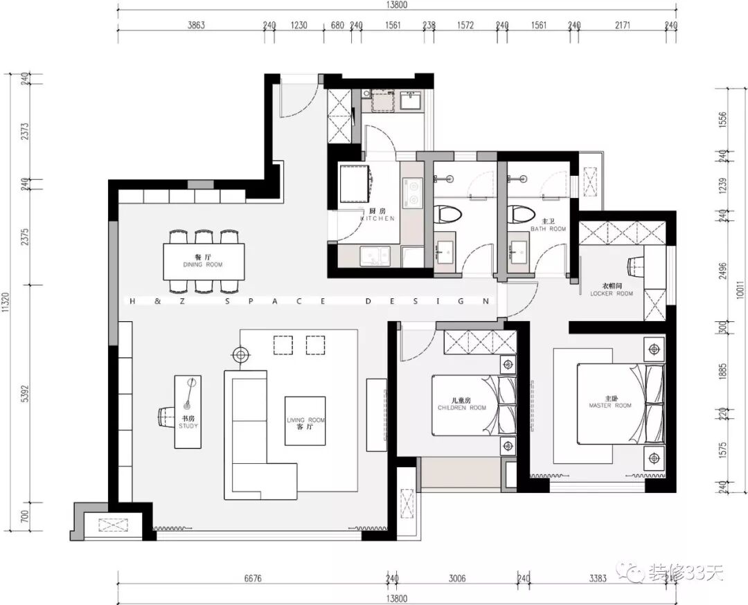
▲ 使用面积130平,造价45万(含家具家电),新婚小夫妻业主,暂时没打算要孩子,于是便大改空间格局,将原套四双卫结构改为两室两卫,扩大公领域空间
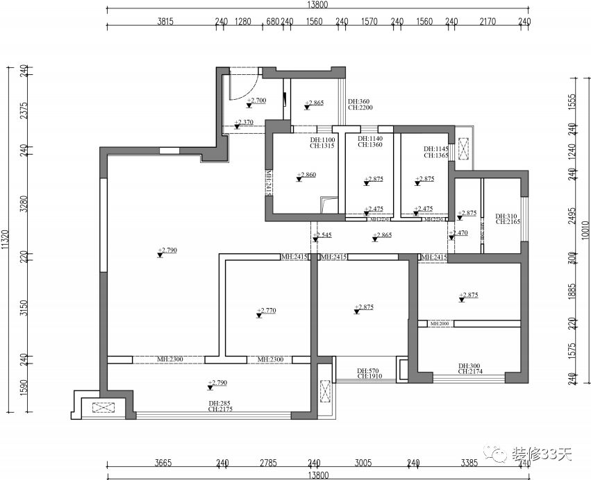
▲ 原始结构图
▲ 平面布置图(1.牺牲客厅背后的卧室用于开放式书房;2.把最小的卧室融入主卧空间,形成衣帽间)
▲ 入户,从狭窄的玄关直面客厅,有一种豁然开朗的视觉感
▲ 客厅,黑白灰三色空间,把原本属于卧室的采光面融入客厅,增加采光的同时也让客厅得到绝佳的视野
▲ 灰色L型沙发与开放式书房相邻,黑色大理石茶几搭配黑色钓鱼灯
▲ 高级灰背景墙点缀造型时钟,设计感十足
▲ 采用白色系大理石打造电视背景墙,内嵌黑色电视柜,底部设计黑色大理石地台,增加空间层次感
▲ 客厅望向餐厅视角,大张地毯与错落吊顶自然分割空间场域
▲ 餐厅,大理石餐桌搭配灰色皮质餐椅,厨房采用德禄窄边框玻璃推拉门,过道装饰画与顶面点光源延伸视觉感
▲ 餐厅一旁设计整面木纹柜体,平衡石材的冰冷感,中部设计灰玻展示区,丰富柜体机能
▲ 厨房所占整个空间比例较小,采光较弱,所以采用白色为主调,干净整洁,有扩大空间视觉的效果
▲ 走廊为男业主从小的收藏提供展示空间
▲ 主卧,床头蓝色背景墙搭配舒适床品,营造简约的就寝空间,由于面积较小,所以就把小卧室纳入做衣帽间
▲ 梳妆台靠窗放置光线充足,墙面全身镜更方便女业主美美美
▲ 卫生间,延续简约基调,墙地面通铺灰色瓷砖,采用窄边黑框玻璃移门隔出淋浴空间
设计 | 逅筑设计(成都)
微信:15828673961
后台回复「逅筑」可以看更多作品
媒体转载请注明装修33天并保留设计师联系方式
欢迎业主、设计师、装修公司免费投稿照片
装修33天商务合作微信:king194316
松爷店铺掌柜微信:yejia1702
逅筑设计其他作品推荐,点击下图查看颜值高收纳好有格调 100平年轻时尚两室
实用装修指南
装修33天 🏡 实用装修指南
喜欢我们的文章就随手转发到您朋友圈吧