点上方蓝字可关注 微信号:装修33天
▲ 建筑面积90平,使用面积70平,对于小户型的设计需要平衡空间的感官享受与收纳的实用性
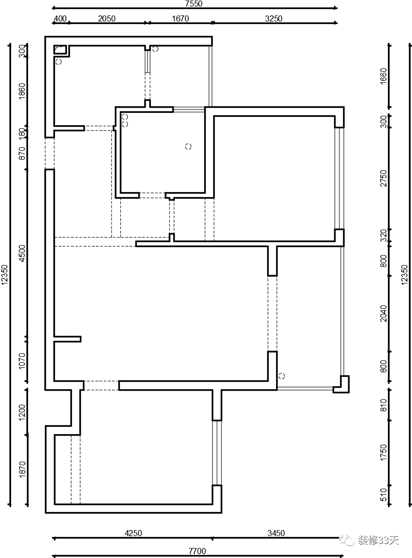
▲ 平面结构图
▲ 平面布置图(基本没有过多的改动原始户型,更多的是优化户型中的收纳容量)
▲ 客厅视觉通透,公共区域采用干净的白色基调,软装挂画的明快色调可以作为空间点缀,让黑白原木调性的空间配色稳重而且纯粹
▲ 家具采用皮质、铁件搭配原木的质感,落地灯的造型与装饰画一样充满艺术感
▲ 沙发背景墙除艺术挂画以外,用了简单的渐变线条作为装饰部分,不同于饰面板的复杂装饰面,让空间显得不那么厚重
▲ 阳台打通作为客厅的一部分,增大原本局促的客厅,同时也为将来预留弹性空间
▲ 阳台另一侧预设水池,黑白搭配简洁利落
▲ 餐厅采用原木作为卡座围边,相对较为温和,整体的布局围绕收纳展开,卡座上下两部分均可作为收纳所用
▲ 背景用熊猫装饰增添简约空间的趣味性,餐厅一侧的房间规划成书房,长虹玻璃隔断提升装饰性又让空间变得通透
▲ 客餐厅开关灯后的效果对比,走廊尽头是厨房空间
▲ 厨房采用细边框移门作隔断,可以完全藏在左侧形成可开放式可闭合的厨房场域
▲ 厨房铺贴水磨石地砖,耐脏又防滑,做满收纳,整体以实用为主
▲ 传统意义上走廊基本被浪费,且很难合理利用,设计师在整排收纳的加持下,形成一个利落的功能性区域
▲ 走廊的另一侧尽头则是书房空间,长虹玻璃取代部分实墙,搭配实用的家具,同时也是为将来预留的多功能空间
▲ 书房在满足办公的前提下,还设计L型置顶定制柜,增添整个空间的收纳机能
▲ 卫生间干湿分离,提高使用效率,白色背景墙砖中点缀姜黄色,让空间色调更具活力
▲ 卫生间干区进来就是主卧空间,从进门设计收纳柜,延伸至电视背景墙,柜体采用相近色与墙面呼应
▲ 卧室区别于外部空间,采用三种不同的颜色作拼接,纯手工涂刷
▲ 墙面色彩的拼接源于背景挂画,质感丰富的家具配上设计感的壁灯,提升空间格调
▲ 卫生间整体采用对比度强烈的黑白配色
设计 | 独立设计师 王中玮(上海)
微信:WangZw_Design
后台回复「王中玮」可以看更多作品
媒体转载请注明装修33天并保留设计师联系方式
欢迎业主、设计师、装修公司免费投稿照片
装修33天商务合作微信:king194316
松爷店铺掌柜微信:yejia1702
独立设计师 王中玮其他作品推荐,点击下图查看128平现代简约三室 布局改出豪华卧室
实用装修指南
装修33天 🏡 实用装修指南
喜欢我们的文章就随手转发到您朋友圈吧