点上方蓝字可关注 微信号:装修33天
▲ 建筑面积89平,造价22万(硬装+主材+软装),本案为婚房,预算有限,但业主又是颜控,设计师要在预算跟实用以及美感之间达到一个平衡
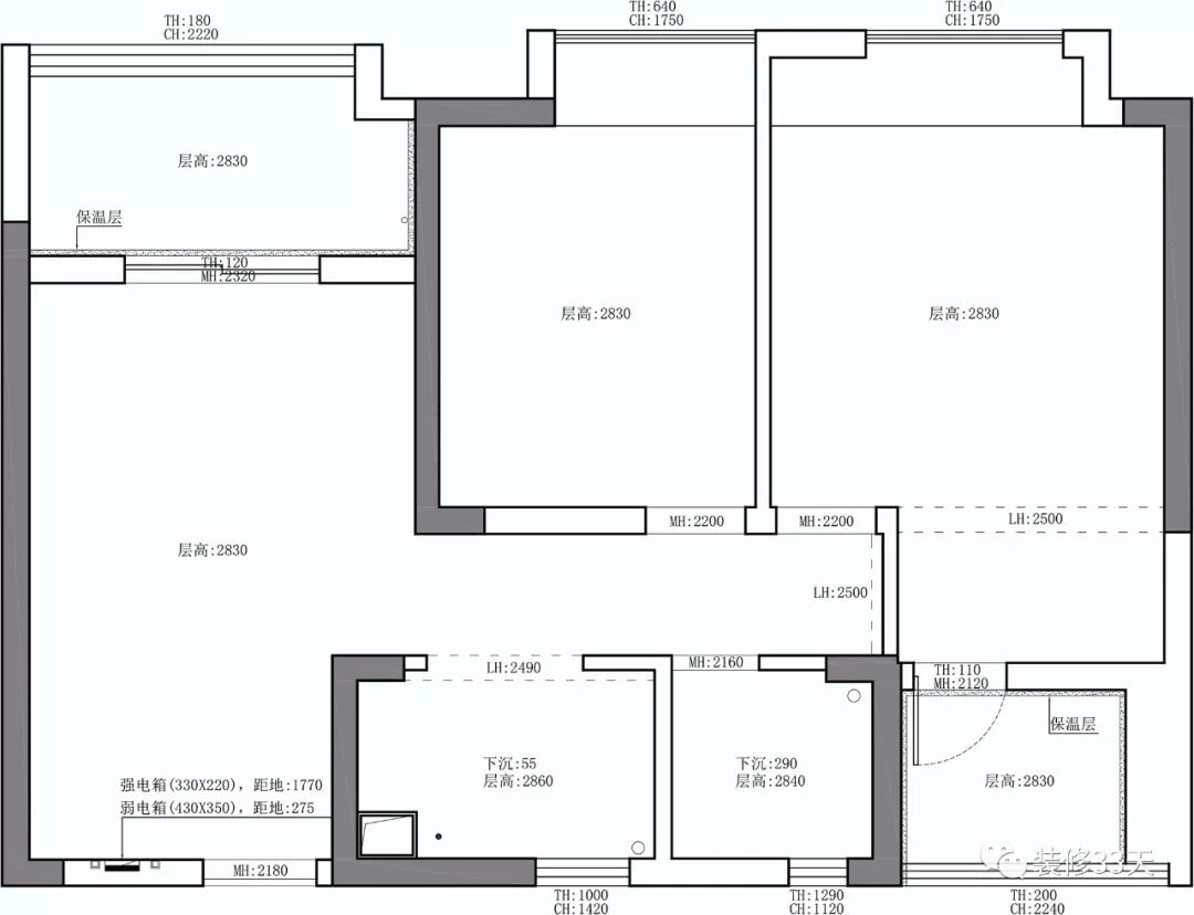
▲ 平面结构图
▲ 平面布置图(纳入阳台扩大客厅面积;过道与次卧的厚墙变柜体;打造一字淋浴房;主次卧之间的墙面设计成双面柜)
▲ 客厅,整体通铺原木色地板,留白墙面搭配无主灯顶面,原结构的客厅空间不足,于是将阳台与客厅融合,增加客厅活动空间的同时改善空间的通风采光性
▲ 黑色皮质沙发搭配金色边几,背景墙采用黑白简框画点缀
▲ 选择此款茶几,为增加空间中的其他色彩元素
▲ 客厅原始开间3.4米,为增加公领域储物容量,将电视柜设计成一整面收纳柜的形式,分色处理的两个L型柜体,让整个柜子不显呆板
▲ 换个角度看客餐厅
▲ 餐厅位置在入户区的左侧,以纯粹的灰色为背景,白色置顶餐边柜兼具入户收纳机能
▲ 餐厅小景,直径一米的圆桌配4把餐椅,对于正常的三口之家比较适用,同时也保证了颜值在线
▲ 厨卫面积局限,厨房电器无处安放,于是将次卧墙体拆除,利用墙体厚度与次卧部分空间,布置冰箱及厨电高柜
▲ 主卧延续木纹地板与无主灯极简顶面,一面大飘窗装橙色窗帘,与床架色调呼应
▲ 背景铺贴蓝色壁纸,橙色小牛皮大床配灰色床头柜,金色小吊灯点缀
▲ 将原本主卧与次卧之间的墙体改造,打造成双面柜,以满足两个卧室的收纳需求
▲ 作为婚房,三室略显冗余,索性将紧挨主卧的第三个房间改造成衣帽收纳间,并利用长虹玻璃移门作为空间隔断
▲ 将卫生间台盆的部分伸至厨房空间,改造后的卫生间布局合理,使用便利,在宽大的一字型淋浴房中设计壁龛方便置物
设计 | 云行空间建筑设计(南京)
电话/微信:15805152076
公众号:unixdesign
后台回复「云行」可以看更多作品
媒体转载请注明装修33天并保留设计师联系方式
欢迎业主、设计师、装修公司免费投稿照片
装修33天商务合作微信:king194316
松爷店铺掌柜微信:yejia1702
云行空间建筑设计其他作品推荐,点击下图查看88平简约北欧两室 空间大挪移一举三得
实用装修指南
装修33天 🏡 实用装修指南
喜欢我们的文章就随手转发到您朋友圈吧