点上方蓝字可关注 微信号:装修33天
▲ 建筑面积88平,总造价20万,实用性与美观性兼具,简约的利落,北欧的清新,再点缀些生活小情调
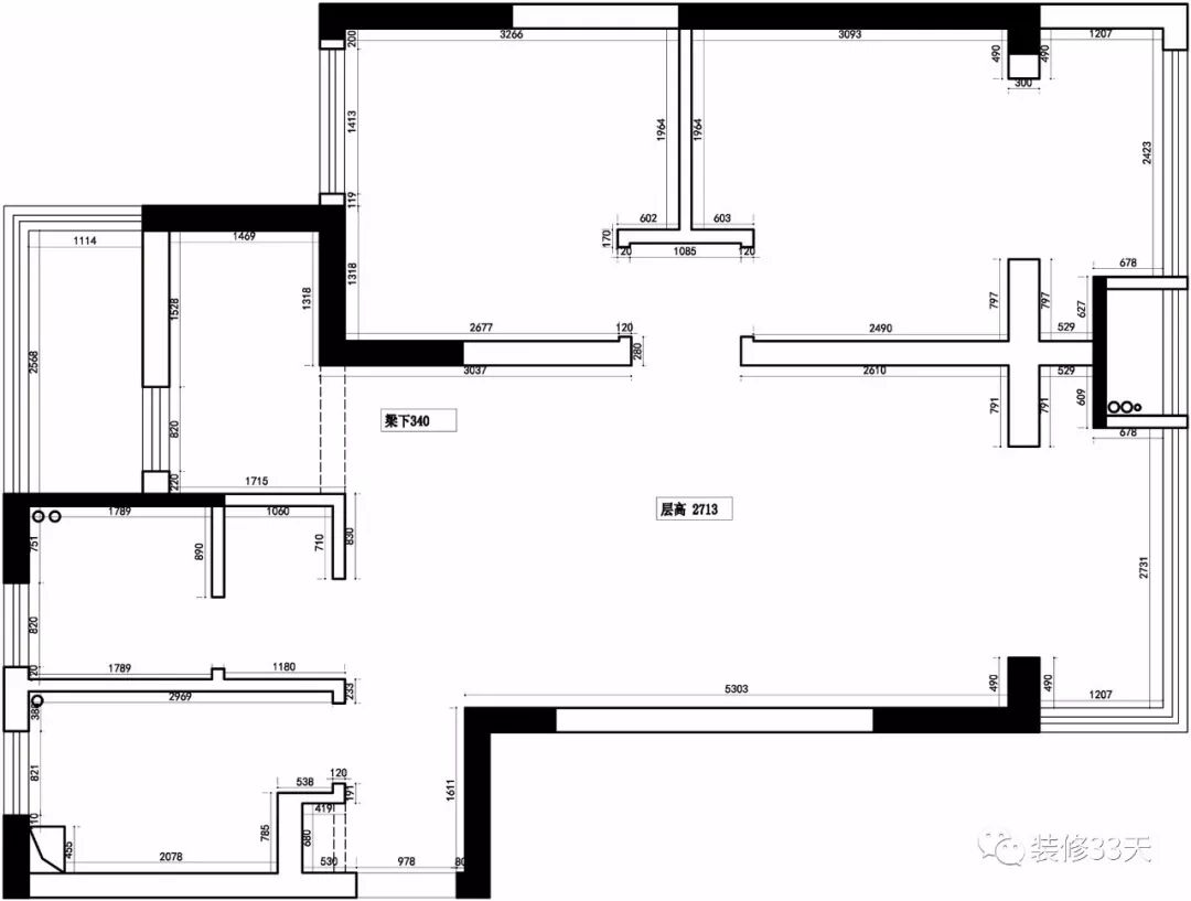
▲ 原始结构图
▲ 平面布置图
▲ 将入户左侧墙体用柜体取代,中部留空辅以木色,黄色谷仓门与文化砖背景墙,充满趣味性与粗犷肌理
▲ 客餐厅全景
▲ 客厅,蓝色沙发搭配粉色抱枕,硬朗与柔和完美相融,黑白印花地毯,静静温暖着这个家
▲ 浅灰色沙发背景墙用地图装饰画点缀,沙发一边用黑色凳子作边几,点缀绿色盆栽
▲ 客厅纳入生活阳台,飘逸的白纱帘展现主人唯美浪漫的生活情趣
▲ 茶几细节,鲜花常伴左右,顶面北欧风吊灯提升颜值与精致度
▲ 电视墙结合柜体,既充当了电视背景又增加了储物空间
▲ 电视背景墙不仅提供大容量收纳,还对称设计了通往卧室的门
▲ 客厅望向餐厅,从入户墙面颜值至餐厅的文化砖,铺贴出斑驳效果,打破灰色墙面的沉闷感
▲ 餐厅与客厅互通,北欧风的餐桌椅搭配现代简约造型吊灯
▲ 餐桌上的每一件精致的物品都点缀出生活的美好
▲ 餐厅望向客厅视角
▲ 餐厅后方是卫生间干区,黄色谷仓门为厨房门片,提亮整个空间的色调
▲ 厨房原木与白色的搭配延续客餐厅的主色调
▲ 生活阳台,洗衣台盆柜+洗衣机的组合
▲ 次卧灰色的墙面,原木的家具,冷暖对比,床头金色点缀的小吊灯趣味满满
▲ 主卧,蓝绿色的背景下,深木色的床头柜散发出一种复古的感觉,金色的柜脚透露着精致
▲ 主卧纳入阳台改造成兼具收纳的阅读区与梳妆区
▲ 卫生间干湿分区,提高使用效率,灰色系六角砖拼接的地面完美过度黑与白
设计 | 南舍设计(南京)
微信:LilyDesign1987
微信公众号:nanshekongjiandesign
后台回复「南舍」可以看更多作品
媒体转载请注明装修33天并保留设计师联系方式
欢迎业主、设计师、装修公司免费投稿照片
装修33天商务合作微信:king194316
松爷店铺掌柜微信:yejia1702
南舍设计其他作品推荐,点击下图查看120平美式轻奢三室 柔和色调勾勒金色
实用装修指南
装修33天 🏡 实用装修指南
喜欢我们的文章就随手转发到您朋友圈吧