点上方蓝字可关注 微信号:装修33天
▲ 使用面积106平,造价35万(不含电器),入户花园拥有充足的采光,于是大胆的选用黑色墙面、黑白拼色地砖,配上金色镜子、壁灯
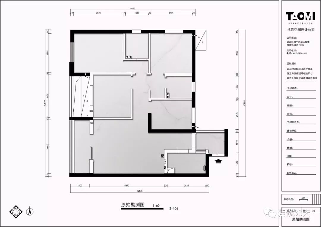
▲ 平面结构图(屋主目前一个人居住,家人偶尔来留宿,想要开阔舒适、活泼跳跃的居住空间)
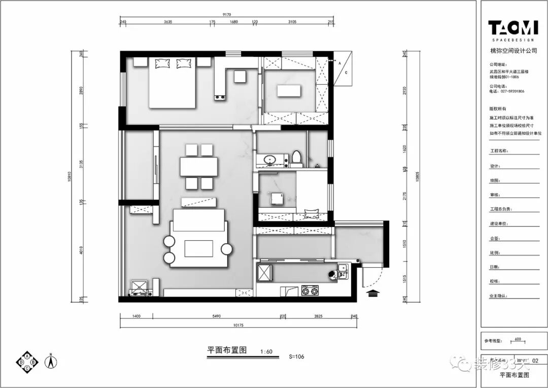
▲ 平面布置图
1.扩宽厨房长度,增长操作台面,改变厨房入门方向,打造两扇玻璃移门;
2.打开次卧,改为餐厅,将主卧的墙面改为玻璃隔断,全面提升空间的开阔视觉;
3.将主卧改为大套间,一旁的小卧室变为衣帽间,原主卫改为开放式书房空间;
▲ 从客厅看入户玄关,挑空鞋柜、深色地砖,实用易打理,“砸掉”三面墙后,客餐厅更加开阔大气,一整面撞色木饰面板,隐藏洗手间、次卧的门片
▲ 柔软的绿色沙发,搭配热带风情的抱枕,突显柔和的居住氛围,又不会过于甜腻
▲ 现场打造简约电视柜,充分满足收纳和展示需求,温润的木质、粗犷的红砖,碰撞深邃的绿色,既时髦又富有鲜活的生命力
▲ 打开次卧,改为餐厅,并去掉客厅阳台门,让客餐厅公共空间更加宽敞,将主卧的墙面改为玻璃隔断,全面提升空间的开阔视觉
▲ 餐厅选用细腿餐桌餐椅,配合设计感十足的吊灯,中和粉色餐椅的甜腻
▲ 餐边绿植与绿植背景呼应,为室内营造自然清新的环境
▲ 将主卧改为大套间,一旁的小卧室变为衣帽间,原主卫改为开放式书房空间,充分满足屋主的收纳、办公需求
▲ 现场打造书桌,统一的木质带来柔和的温润感,让人就着窗外柔和光线,开启悠闲的阅读时光,这里也是猫星人最钟爱的地方
▲ 主卧采用热带风情十足的墙纸,配合绿色丝绒床品、粉色窗帘,颇有几分 Art Deco 的韵味
▲ 现场制作木质床头,更加简洁易打理,也提升了品质感
▲ 工作区旁的玻璃门打开,则是屋主心心念念的大衣帽间
▲ 衣帽间整整两面衣柜,足以储存心爱的衣物、包包,另一侧的抽屉则可以存放丝巾、首饰等用品,白色柜子、简约把手,让视觉更统一
▲ 卫生间,黑白棋格地砖,搭配果冻绿方砖墙面,选用白色洗手台与原木色镜柜平衡空间色调
设计 | 桃弥空间设计(武汉)
微信:18627061616
后台回复「桃弥」可以看更多作品
媒体转载请注明装修33天并保留设计师联系方式
欢迎业主、设计师、装修公司免费投稿照片
装修33天商务合作微信:king194316
松爷店铺掌柜微信:yejia1702
桃弥空间设计其他作品推荐,点击下图查看130平轻奢三室颜值出众 时髦居家功能实用
实用装修指南
装修33天 🏡 实用装修指南
喜欢我们的文章就随手转发到您朋友圈吧