点上方蓝字可关注 微信号:装修33天
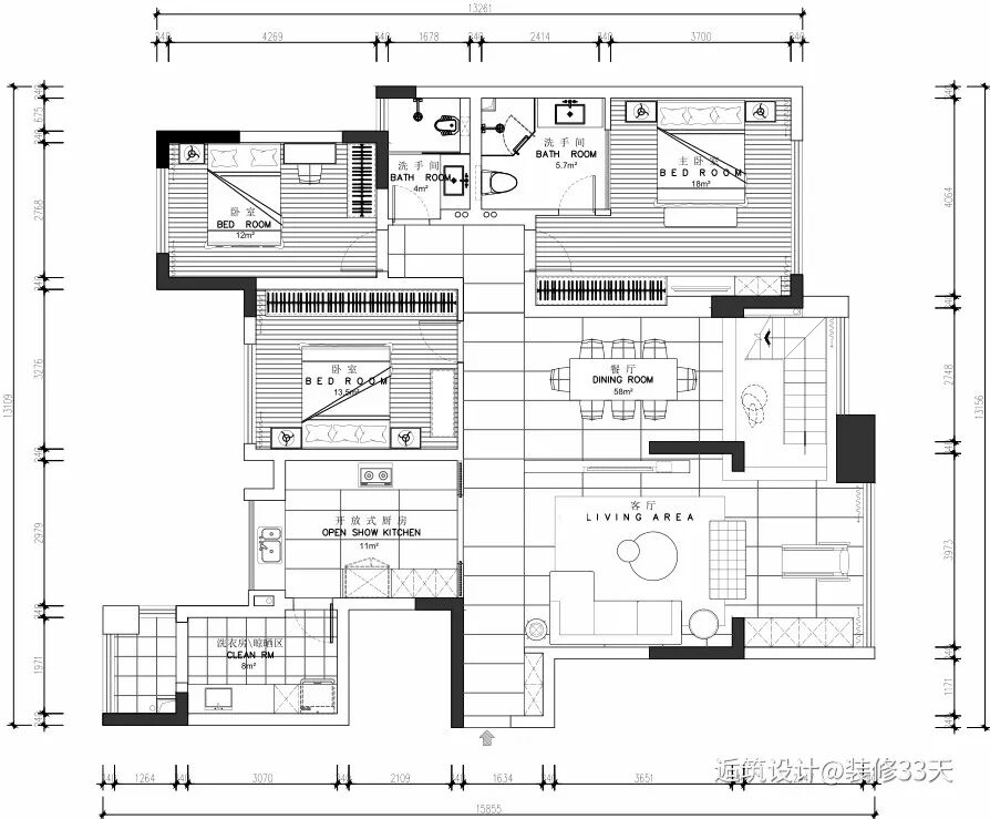
▲ 使用面积151平,本案例位于乐山青衣江边,是一个江景迷人的住宅,需要控制预算的情况下打造兼具实用性与美观舒适的居家
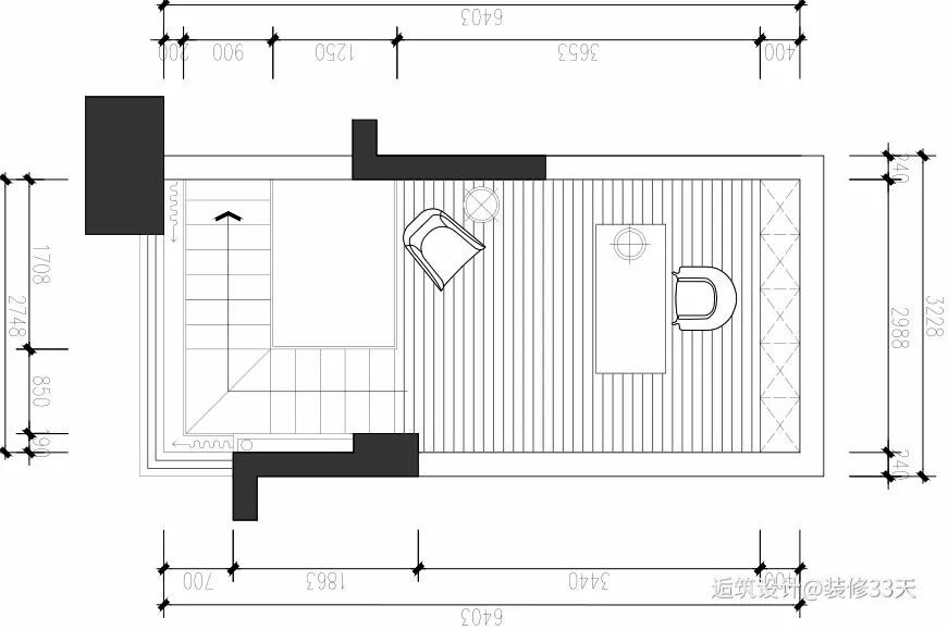
▲ 平面布置图
▲ 搭建空间布置图
▲ 客厅,拆除原本封闭的电视墙,将户型改造成面朝江景的大横厅(拍摄时倾盆大雨,所以没拍江景)
▲ 整个客厅空间采用黑白灰的基调,局部点缀原木色,灰色折角沙发搭配留白背景,点缀黑白装饰画
▲ 阳台纳入客厅,成为客厅的一部分,设计白色置顶柜体,搭配黑色线性拉手,有效增加空间的储物功能
▲ 将原封闭的空间改为江景餐厅,半高的电视墙让客餐厅隔而不断,独立的两个空间,又具互动性
▲ 现代简约的石纹面餐桌搭配卡其色皮质餐椅,极简的吊灯营造氛围
▲ 将原结构的餐厨与生活阳台重组,规划出空间宽敞的厨房,整体的深灰色瓷砖搭配白色隐形拉手橱柜
▲ 户型中有个不大的挑空区域,在保证采光与江景视野的前提下搭建部分空间,满足业主对书房的需求,玻璃扶手的楼梯打造开放式视觉,提升空间气质和趣味
▲ 老人房,用色简单平稳,给人安静的视觉感,留白墙面与床尾黑白配的收纳柜,咖啡色大床与木色床头柜中和黑白色调
▲ 儿童房整体用色则更充满朝气,绿色背景墙搭配棕色皮质大床,深灰色窗帘以整室黑白灰的基调联系起来
▲ 主卧,原木色地板搭配灰色床背景,无过多修饰,只通过浅色系大床与灰褐色床头柜呈现现代简约的卧室风格
▲ 床头柜的台灯为室内添加趣味性
▲ 床尾整面的柜体中兼具着电视背景的功能,充分的利用了立面空间,打造简单又极具功能性的墙体
▲ 主卫,将靠近卧室一面的墙体改为白玻+百叶的设计,将光线引入暗卫
设计 | 逅筑设计(成都)
微信:15828673961
后台回复「逅筑」可以看更多作品
媒体转载请注明装修33天并保留设计师联系方式
欢迎业主、设计师、装修公司免费投稿照片
装修33天商务合作微信:king194316
松爷店铺掌柜微信:yejia1702
逅筑设计其他作品推荐,点击下图查看四室改二室诠释新生活 130平黑白灰极简居家
实用装修指南
装修33天 🏡 实用装修指南
喜欢我们的文章就随手转发到您朋友圈吧