点上方蓝字可关注 微信号:装修33天
▲ 建筑面积70平,半包7.5万(轻工辅料+水电),本案业主特点:漂亮,有收纳强迫症,设计师以简约为基调,搭配时尚软装,打造温馨又条理的居家
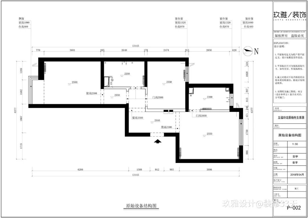
▲ 原始结构图
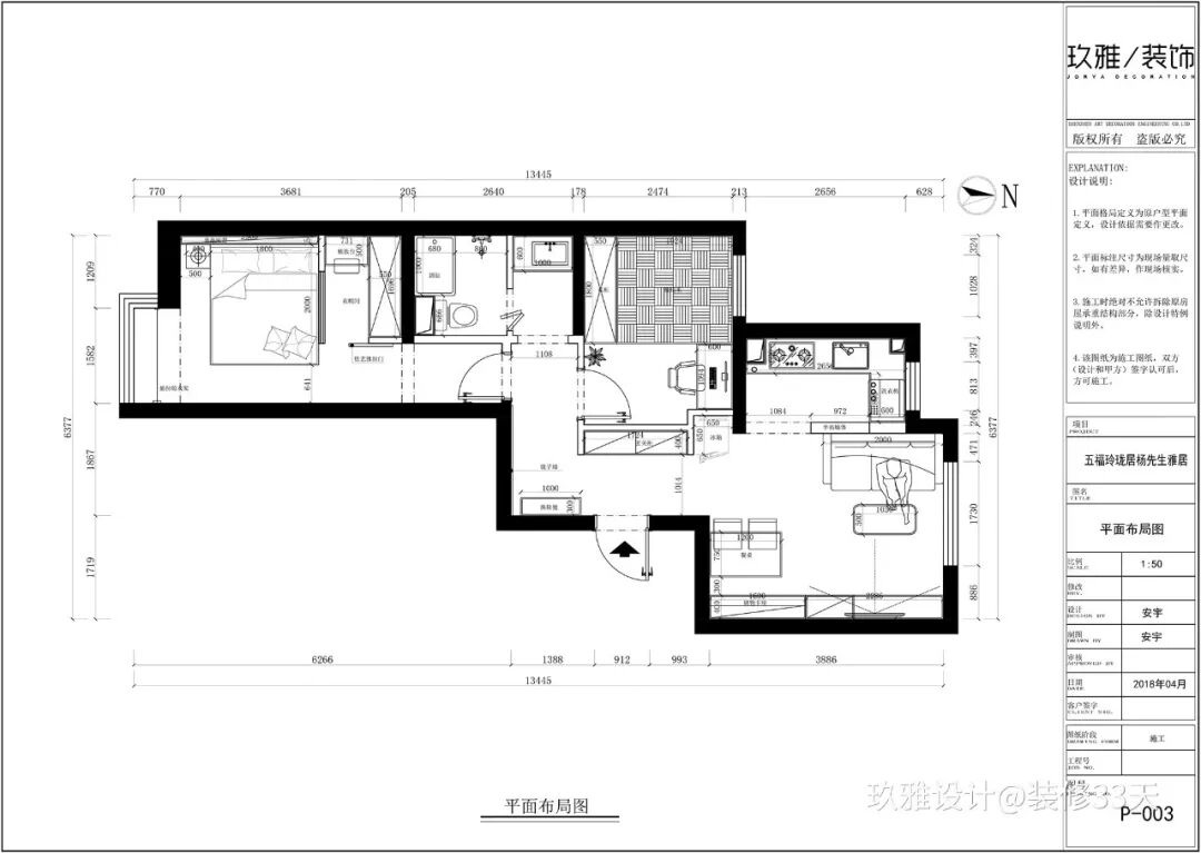
▲ 平面布置图
▲ 布置解说图
▲ 入户正对新建的次卧外墙,S型墙内嵌一面门厅柜,长1.7米,满足门厅收纳所需,一面 Slim Archway Mirror 延伸视觉空间
▲ 客厅采用地暖,通铺木纹砖,整体空间的配饰看似色调单一,通过不同的灰调与用料的差异,丰富空间质感
▲ 柔软的丝绒沙发,写意抽象的装饰画装饰背景,窗帘与家具形成色彩呼应
▲ 采用置顶造型收纳柜做电视背景墙的设计,兼具客厅大容量储物机能
▲ 电视背景墙巧妙的与餐厅卡座连接,空间功能紧凑而实用
▲ 餐厅,朱砂红色的餐椅和装饰画,搭配湖畔蓝的墙色,采用比较内敛的莫兰迪色系,不会显得过于张扬
▲ 餐厅也是二人世界浪漫的开始
▲ 将厨房打开,与客厅相隔半墙,既是沙发靠背,又具小吧台的功能,也让整个公领域变得亮堂起来
▲ 厨房延续灰白色调,麻雀虽小,五脏俱全,还配备洗碗机,吧台下方的置物钩发挥不错的收纳功能
▲ 次卧,大面积的白色调让小空间不显逼仄,靠墙设计储物床铺,安放书桌椅,利用新建墙面留出一组入墙书柜
▲ 主卧,床头背景采用与餐厅一样的蓝色系,床头背板加厚到5cm,足够放两本书和手机,背板上面留充电插座,完全取代床头柜的功能
▲ 将飘窗打造成主卧休闲一角,设计L型可移动桌子,平时可以在上面看书喝茶
▲ 设计师将10平的卧室,让出2.1平做半开放式衣帽间,以长虹玻璃作部分通透隔墙
▲ 半开放式衣帽间,打造快手衣橱,在衣帽间挑选换穿的衣服、搭配饰品、化妆,一气呵成
▲ 收纳细节大集合,这样的收纳,拯救强迫症患者
▲ 卫生间干湿分离,提高使用效率,洗手池搭配一面收纳化妆镜,镜子背面发光,让光线增添层次感,镜面照着装饰画又是一景
▲ 卫生间内部整体通铺黑色哑光砖,搭配白色美缝添层次,将洗衣干衣机搬进卫生间,兼具洗衣房的机能
▲ 业主与设计师团队合照
设计 | 玖雅设计(北京)
微信:18611911806
后台回复「玖雅」可以看更多作品
媒体转载请注明装修33天并保留设计师联系方式
欢迎业主、设计师、装修公司免费投稿照片
装修33天商务合作微信:king194316
松爷店铺掌柜微信:yejia1702
玖雅设计其他作品推荐,点击下图查看90平现代混搭两室 炫酷全黑色厨房
实用装修指南
装修33天 🏡 实用装修指南
喜欢我们的文章就随手转发到您朋友圈吧