点上方蓝字可关注 微信号:装修33天
▲ 建筑面积300平,总造价100万,男主是一名空警,女主从事金融行业,整个居家以木色元素与人文情怀为主题,创造东方意境结合现代格调的多元化休闲空间
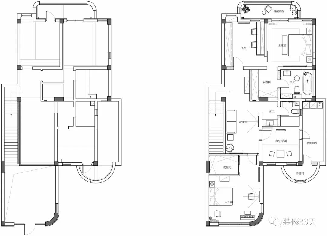
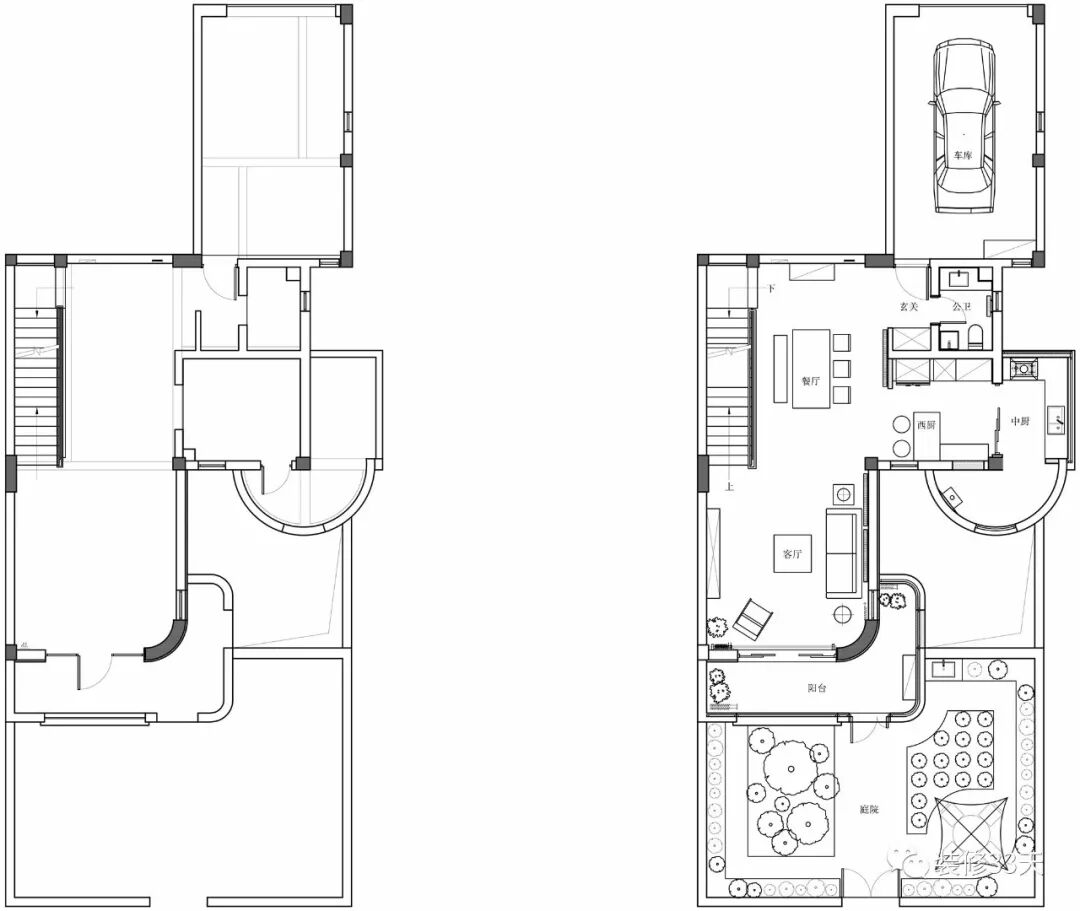
▲ 一层平面布置图
▲ 二层平面布置图
▲ 客厅的落地玻璃拉近室内外的距离,业主认为生活不需要过多的粉饰,尊重自己的需求,让房子适应人的居住习惯,用心经营自己的生活
▲ 水泥灰的地面搭配白色墙面,灰色沙发点缀黄色靠枕,背景装饰画融合了整室色调
▲ 电视背景墙打造对称造型,嵌入定制壁炉,火光下的木质和织品显得更加温暖,搭配现代感的家具,呈现生活的惬意感
▲ 设计和美感的氛围熏陶,忘却声色利欲的熙攘与追逐,一缕薰香,一本好书,安顿下世俗的烦扰
▲ 客厅望向餐厨视角
▲ 餐厅延续客厅的水泥色地砖,搭配原木格栅吊顶,直线划出秩序感和延伸感,同时顶面木色与背景墙在材质与色调上相互呼应,空间简单明了
▲ 餐桌椅搭配新中式吊灯,曲线元素,圆润柔和,另一侧通透感的楼梯造型又为空间增添现代化的设计感
▲ 同一空间采用相近的软装色彩,诠释着生活的精致和考究
▲ 从餐厅下至负一层,打造个性化的休闲区域,设置影音室、酒柜、吧台,满足业主对生活的浪漫遐想
▲ 整体考虑造价与位置关系,大胆采用一体式的水泥色工业风的格调,利用水泥吸潮,并烘托出一种天然的观影氛围
▲ 在二层设置一间和室,地台的设计既能观而赏茶妙,闻而悦茶香,又具客卧的功能,空间具有可变性
▲ 女儿房,遵循女孩喜好的蓝色为主色调,搭配细致精巧的家具,赋予丰富的生活机能,色彩和框架建构起多维的层次感
▲ 女儿房床尾的一面落地玻璃映入室外景致,原木书桌、白色洞洞板、云朵置物层,与蓝色墙面巧妙结合出蓝天白云的效果
▲ 主卧的整体配色延续素雅恬淡的风格,柔和低调的软装,舒适自然的床品组成安静的居室
▲ 延伸至床背景的木色结合留白与灯光,打造层次感背景,再用装饰画点缀艺术元素,木质赋予休憩空间温润舒适感
▲ 主卧配套工作区、衣帽间和卫生间,用原木轨道门做隔断,空间规划构成细致分区
设计 | 北岩设计(南京)
微信:18052030218
后台回复「北岩」可以看更多作品
媒体转载请注明装修33天并保留设计师联系方式
欢迎业主、设计师、装修公司免费投稿照片
装修33天商务合作微信:king194316
松爷店铺掌柜微信:yejia1702
北岩设计其他作品推荐,点击下图查看140平现代LOFT设计有腔调 是向往的居住自由
实用装修指南
装修33天 🏡 实用装修指南
喜欢我们的文章就随手转发到您朋友圈吧