点上方蓝字可关注 微信号:装修33天
▲ 建筑面积70平,总造价16万,本案通过纯粹的白+灰,辅以原木的自然肌理,营造闲适悠然的生活环境
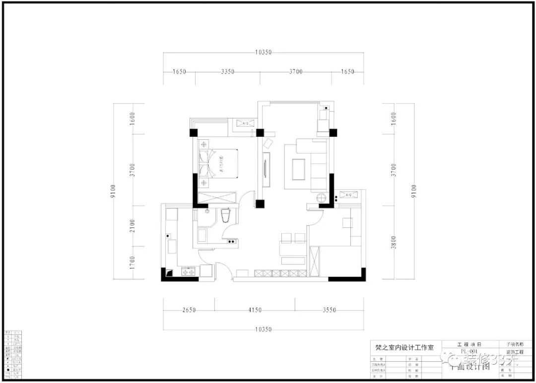
▲ 平面结构图
▲ 入户右侧设置小玄关,原木换鞋凳兼具鞋架功能,小木墩衣帽钩,实用且趣味
▲ 入户即见餐厅,靠墙打造餐边柜+入户鞋柜,灯光设计温馨
▲ 餐厅浅灰色墙面搭配深灰色餐桌椅,原木餐桌+长凳,与后方柜体的木色相呼应,线性吊灯除照明功用的同时增加视觉层次
▲ 餐厅的最大功能是就餐,无过多装饰和点缀
▲ 入户左侧是厨房,白框玻璃开门隔离油烟,不影响光线的流动
▲ 厨房,深灰色地砖搭配网红小白砖墙面,原木色橱柜搭配白色台面,呈现自然轻薄的视觉感,灯光设计科学实用
▲ 客厅,清浅柔和的视觉基调,搭配大面积木色地板,极简的顶面采用点光源与吸顶灯搭配做照明
▲ 灰色绒面转角沙发搭配原木小茶几,造型线条圆润,局部以亮色软装增加色彩饱和度
▲ 客厅暗角利用线性吊灯提亮,辅以绿植增加生机
▲ 客餐厅之间的过道通往次卧
▲ 次卧,打造榻榻米连接床头柜与书桌书架,床尾增设大衣柜,小空间实现多样功能
▲ 温馨的床头一角
▲ 主卧,以原木色家具为基调,墙面、窗帘、床品的配色让人感觉舒适惬意
▲ 原木家具搭配创意壁灯,意境装饰画修饰清浅的床头背景
▲ 卫生间的墙地砖与厨房保持统一,台盆柜也是沿用自然的木色系,黑色五金让洗浴空间更加时尚有个性,淋浴+蹲坑适合小型卫生间,也是川渝地区生活习惯
设计 | 梵之设计(成都)
微信:373454377
后台回复「梵之」可以看更多作品
媒体转载请注明装修33天并保留设计师联系方式
欢迎业主、设计师、装修公司免费投稿照片
装修33天商务合作微信:king194316
松爷店铺掌柜微信:yejia1702
梵之设计其他作品推荐
实用装修指南
装修33天 🏡 实用装修指南
喜欢我们的文章就随手转发到您朋友圈吧