点上方蓝字可关注 微信号:装修33天
▲ 建筑面积130平,家不仅是钢筋水泥围合的房子,更是一处盛放心灵的栖息之地
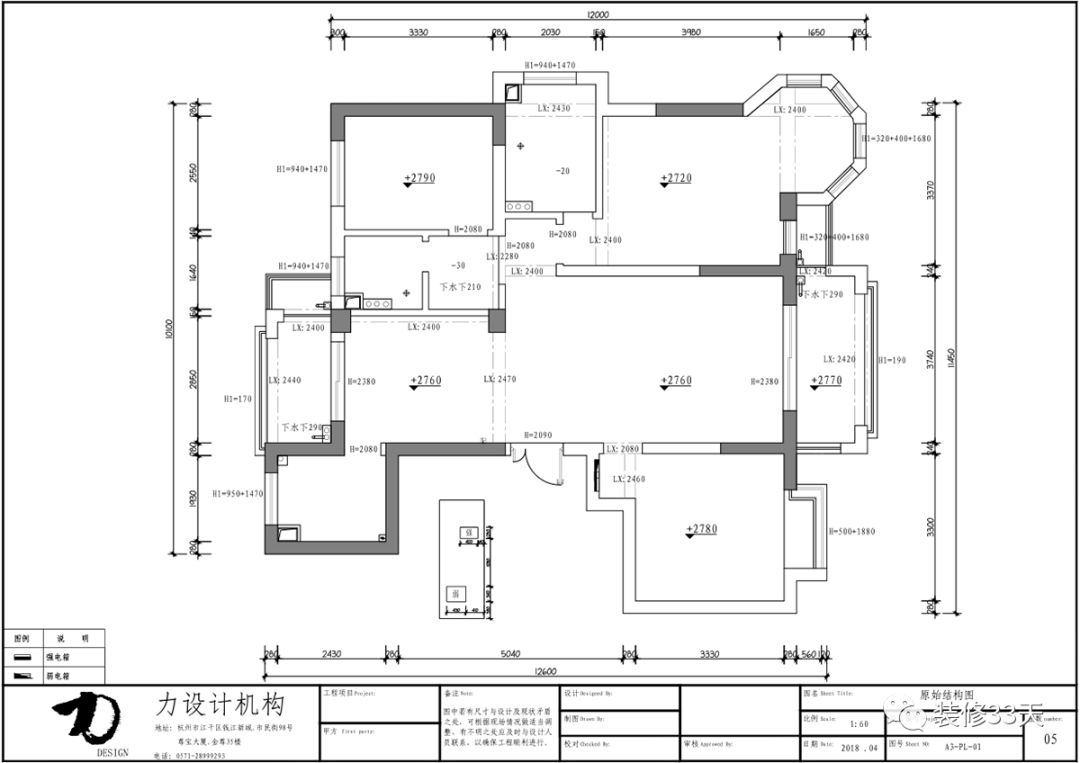
▲ 平面结构图
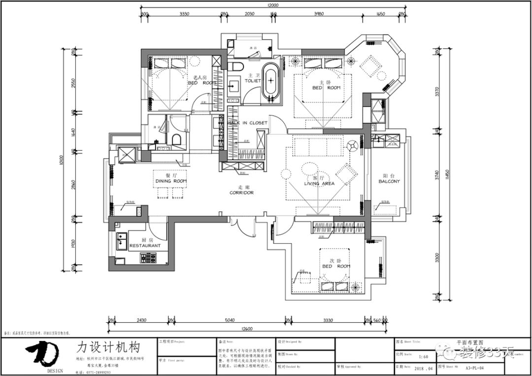
▲ 平面布置图
▲ 入户以鞋柜作端景,辅以大理石基底,金色线条勾勒与富有艺术感的换鞋凳相呼应
▲ 客厅,浅色石纹地砖搭配深邃黑色沙发背景,以丛林植物为背景点睛
▲ 皮质沙发搭配蓝绿色丝绒单椅+灰色脚凳,线条简洁的家具配合无主灯简约顶面设计
▲ 丛林植物背景巧妙搭配丛林系列靠枕
▲ 客厅与阳台相邻,赋予公领域空间良好的采光与视野
▲ 在拥有充足采光的条件下,客厅大面积的运用黑色饰面做背景,空间中勾勒金色细线,增添轻奢元素
▲ 客厅望向餐厅视角
▲ 让设计回归生活,承载着人们的生活需求和对美好生活的向往,在设计中添加树木,猎豹,鹦鹉等丛林元素,凸显丛林都市的主题
▲ 设计卡座餐厅,辅以丝绒坐垫与背景,搭配大理石基底,宝蓝色的餐椅提亮空间
▲ 玻璃球形通透感吊灯与卡座背景的镜面,成为空间的高光点缀,镜面恰好照出对面的丛林背景,虚实呼应
▲ 通透的餐桌搭配精致的餐具,透露着业主赋有仪式感的生活
▲ 餐厅望向厨房视角
▲ 厨房是色彩对比与质感的体现,黑色墙面砖搭配大理石纹的橱柜门板,金色拉手修饰精致度
▲ 素洁的实木地板与低纯度的蓝色纹理壁纸,抵御着城市的躁动与不安,与之匹配的挂画,金属色的边几静默地散发着微光
▲ 栖息于温热带盐湖水滨的火烈鸟作为整个女儿房的主题,隐喻着自由,厌倦沉闷,不知空乏为何物,肆无忌惮地挥洒青春、爱、优雅的含义
▲ 质感与色泽自然的鱼骨拼地板上半墙结合壁纸作床背景,搭配舒适的床品,又一次让现代生活与自然元素结合
▲ 女儿房,设置休闲飘窗辅以粉灰色窗帘,柜体一改以往的传统一体式柜门,在制定量体底部设计屋型书架,满足在飘窗休闲时的收纳需求
▲ 主卧延续简洁轻奢的风格设计,素洁的木质地板搭配灰色丝绒床背景,利用不规则阳台打造休闲区域
▲ 主卫整体通铺大理石瓷砖,与卧室之间采用玻璃隔墙,外部加窗帘确保隐私
设计 | 力设计(杭州200公里以内)
微信:17858603257
后台回复「力设计」可以看更多作品
媒体转载请注明装修33天并保留设计师联系方式
欢迎业主、设计师、装修公司免费投稿照片
装修33天商务合作微信:king194316
松爷店铺掌柜微信:yejia1702
力设计其他作品推荐,点击下图查看看上去是大宅院 其实也就120平
实用装修指南
装修33天 🏡 实用装修指南
喜欢我们的文章就随手转发到您朋友圈吧