点上方蓝字可关注 微信号:装修33天
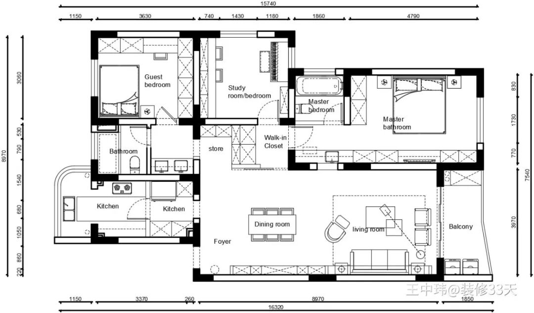
▲ 使用面积129平,进门没有严格定义“玄关”,在门厅处设置换鞋柜,穿衣镜,墙上的挂钩可放置外套
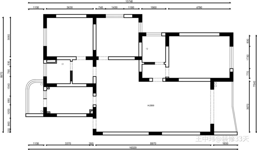
▲ 平面结构图
▲ 平面布置图
▲ 客厅,顶部黑色“贯穿式线条”是为配合长条户型而特设的呼应关系,目的是拉伸空间的视觉延展性
▲ 客厅硬装以黑白灰木为基调,软装选用业主心仪的黄绿撞色,最终显现主次分明的空间配色
▲ 沙发背景的斜线条是打破视觉沉闷感的处理手法,让线型的延伸显得不再单一
▲ 抽象装饰画修饰沙发背景墙,选色与整室基调相呼应
▲ 顶面设计黑色的延展线条,因此电视墙的处理无过多装饰与色彩,悬空大理石部分的设计通过垫层,将它和墙壁保持在同一水平面没有外凸
▲ 改变主卧进门位置,通过一扇移门来阻隔公共区域与私密区域,同时电视背景墙看起来更加完整
▲ 餐厅与客厅互通,以机能家具与背景的变化来分隔场域,不同的灯光效果营造温馨高级的就餐氛围
▲ 餐厅望向客厅视角
▲ 餐厅望向厨房,通过垭口来区分出两处的墙壁,用不同的色系暗示这是两个不同的区域过渡,右侧是黑板墙还没来得及画
▲ 厨房分设为内厨与外厨,外厨预留嵌入式厨电位置,通过一套玻璃开门隔开,玻璃的透光性也使得外厨能有足够的自然采光
▲ 蓝白色调的客卫,干湿分区提高使用效率,架空的台盆底部方便放置扫地机器人,采用磨砂玻璃门透光不透影
▲ 客卫采用不同色调的水磨石瓷砖进行铺贴,复古又个性
▲ 儿童房利用两侧的墙壁,打造大量柜体背景,提供强大的收纳储物功能,明黄色作为儿童房跳色,将柜体内部空间预留出来做成写字台
▲ 主卧整体以蓝绿木色为基调,床尾设计一整面衣柜墙,黑色的下半部分则考虑到床的高度会影响柜体开门,因此全部作为开放式处理
▲ 半高护墙与高背床齐平,整体软装搭配时尚现代
▲ 在柜体前面预留投影幕布,平时则是藏在吊顶内部不影响整体美观,夜间模式则是家庭影院
▲ 主卫也设置干湿分离的布局,预留出足够的台盆台面可充当卸妆台来使用
▲ 主卫采用浴缸取代淋浴房,让洗漱更加舒适
▲ 效果与实景对比图
▲ 效果与实景对比图
设计 | 独立设计师 王中玮(上海)
微信:WangZw_Design
后台回复「王中玮」可以看更多作品
媒体转载请注明装修33天并保留设计师联系方式
欢迎业主、设计师、装修公司免费投稿照片
装修33天商务合作微信:king194316
松爷店铺掌柜微信:yejia1702
独立设计师 王中玮其他作品推荐
90平现代简约两室 优化收纳小家变大
实用装修指南
装修33天 🏡 实用装修指南
喜欢我们的文章就随手转发到您朋友圈吧