点上方蓝字可关注 微信号:装修33天
▲ 建筑面积200平,造价85万(含家具、家电、软装),将传统的室内布局改造成阳光充足的开放式住宅,打造出真正适合全家人共享的空间
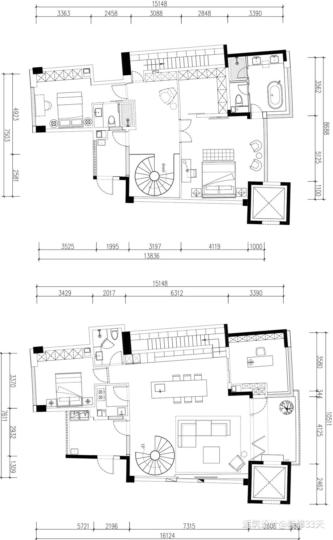
▲ 平面布置图
▲ 整体空间选择简单的黑白灰色调,让空间回归质朴舒适的本质
▲ 客厅效果图
▲ 客厅,选用灰色布艺沙发搭配黑白大理石茶几组,与空间色调呼应,超大景观阳台把阳光与景色映入室内
▲ 客餐厅效果图
▲ 电视背景采用黑色凹凸拉槽背景,底部设计白色大理石隔板替代传统厚重的电视柜,更加美观实用
▲ 餐厅,木纹餐桌与白色大理石中岛相连,侧面设置西厨料理区,整体定制黑色橱柜,嵌入大型厨电,解放中厨空间
▲ 中厨,定制L型橱柜与台面,因为西厨储物空间足够,所以取消吊柜,让空间更宽敞
▲ 调整位置后新设的楼梯成为整屋的点睛之笔,扩大了空间的通透视野
▲ 设计感极强的环形楼梯,提升空间格调与颜值
▲ 楼梯效果图
▲ 次卧,粉色床品增添一丝俏皮可爱,床尾设置整墙白色柜体,黑色线性把手修饰
▲ 主卧为套房格局,纳入衣帽间与卫生间,整体延续极简格调,黄铜元素吊灯带来轻奢质感,大面积落地窗拥有极佳的采光与视野
▲ 主卧效果图
▲ 三分离主卫,设计双人位台盆空间,将浴缸放置景观窗旁,享受舒适的泡澡时光,顶部设置了百叶帘,保证空间私密性
▲ 用玻璃门隔断坐便区与淋浴区,使空间相互通透,整体铺贴白色石纹砖,干净清爽
设计 | 逅筑设计(成都)
微信:15828673961
后台回复「逅筑」可以看更多作品
媒体转载请注明装修33天并保留设计师联系方式
欢迎业主、设计师、装修公司免费投稿照片
装修33天商务合作微信:king194316
松爷店铺掌柜微信:yejia1702
逅筑设计其他作品推荐
实用装修指南
装修33天 🏡 实用装修指南
喜欢我们的文章就随手转发到您朋友圈吧