点上方蓝字可关注 微信号:装修33天
▲ 使用面积96平,造价23万(软装+硬装),本案业主是一位文艺男青年,希望自己的家宽敞简洁,设计师将业主喜爱的原木色运用到整个设计当中
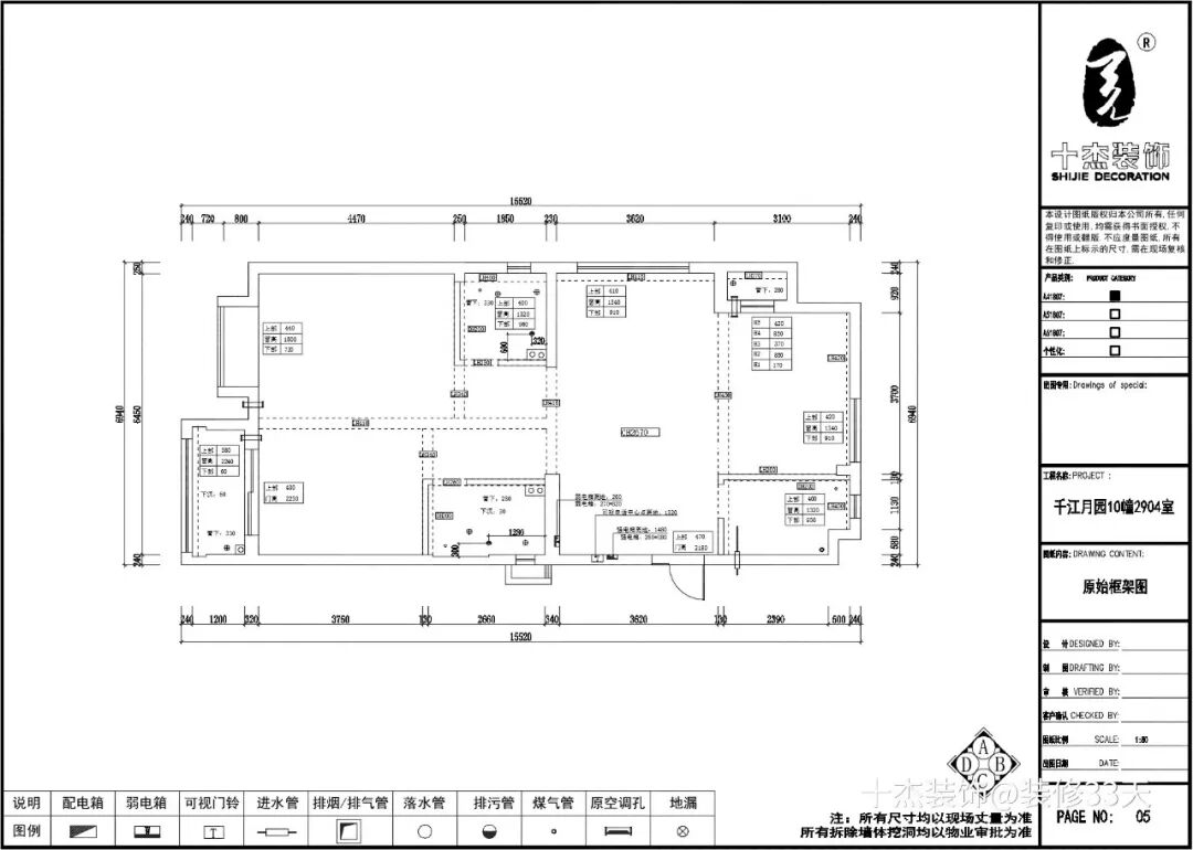
▲ 原始结构图
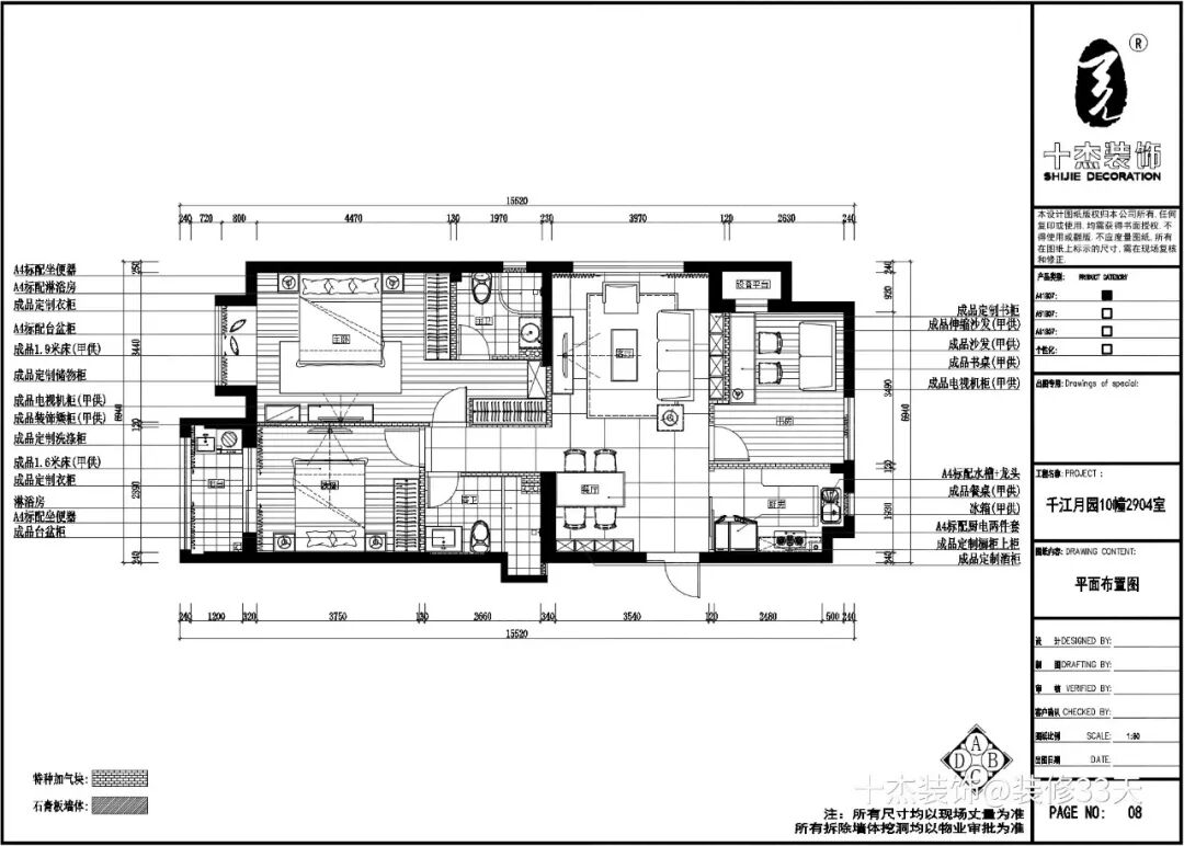
▲ 平面布置图
▲ 客厅,地面通铺灰褐色抛釉砖,简洁的顶面装一盏大吊灯,大面积落地窗让公领域空间采光充足
▲ 墙面铺贴素净的卡其色墙纸,搭配白色套门与吊顶,给人纯碎文雅的感觉
▲ 沙发背景设计开放式内嵌书架,方便收纳业主藏书与杂物,书架的设置增加文艺氛围,同时解决背景装饰
▲ 白纱搭配绿色窗帘,清新自然,与黄色单椅以及靠枕形成撞色,为尽量保持空间宽敞,壁挂电视搭配成品原木电视柜,简单实用
▲ 客餐厅相邻,以过道自然分隔
▲ 简约款餐桌椅搭配黑白灰吊灯,定制半开放式餐边柜,满足餐厅收纳,兼做背景
▲ 厨房,定制U型橱柜,取消一边的吊柜,更显宽敞
▲ 书房,大面积的木元素搭配留白墙面,蓝色窗帘点缀空间纯净感,放置沙发床让书房随时可变客卧
▲ 次卧,床背景铺贴麦田黄纹理的墙纸,不同款的灯修饰背景墙
▲ 米白色床品搭配原木纹理家具,线性吊灯的暖光营造温馨就寝氛围
▲ 主卧,以原木色、白色、蓝色为基调,局部采用姜黄提亮视觉
▲ 白色乳胶漆搭配床头海洋蓝纹理的墙纸,床侧置顶衣柜与入门右侧的收纳柜,满足空间储物需求
▲ 主卫整体通铺浅色纹理瓷砖,木纹元素延伸至台盆与镜柜,整体简洁实用
设计 | 十杰装饰(浙江)
微信:15088868905
后台回复「十杰」可以看更多作品
媒体转载请注明装修33天并保留设计师联系方式
欢迎业主、设计师、装修公司免费投稿照片
装修33天商务合作微信:king194316
松爷店铺掌柜微信:yejia1702
十杰装饰其他作品推荐
顶层复式带斜顶阁楼,螺旋滑梯太有个性
实用装修指南
装修33天 🏡 实用装修指南
喜欢我们的文章就随手转发到您朋友圈吧