点上方蓝字可关注 微信号:装修33天
▲ 使用面积123平,本案在清爽极简与法式唯美线条中寻求平衡,构建出空间姿态
▲ 原始结构图
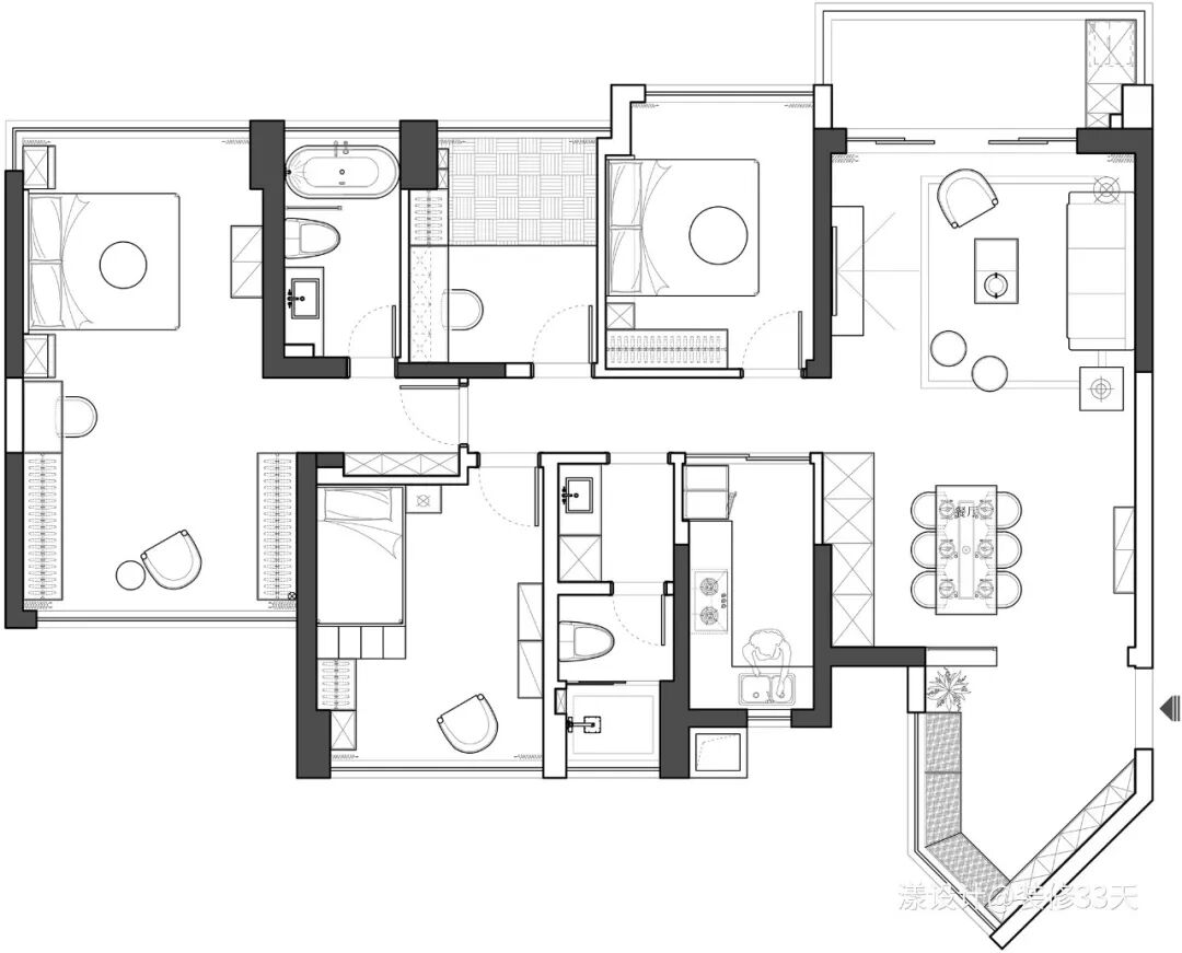
▲ 平面布置图
▲ 业主对色彩的开放度很高,设计师巧妙运用对比色彩,为空间增添格调
▲ 客厅地面通铺鱼骨拼木地板,粉灰色丝绒家具搭配大理石金属元素,让法式轻奢的浪漫风情更加浓烈
▲ 沙发背景墙采用简约曲线元素与丰富色彩过渡,蓝白的交界刚好与彩色几何图形挂画分色线重合,以此为界划分的色域区增添趣味
▲ 电视背景墙采用PU线条的剪裁,打造疏密有致的线性框架,灰色背景搭配蓝色电视柜,椭圆的几何形状给空间增添灵动感
▲ 客餐厅以过道为分界,双拼户型,梁位偏低,索性采用跌级线条的处理手法将梁位弱化,使整个过道独自成景,并巧妙运用蓝白分色,丰富视觉层次感
▲ 阳台视野开阔,放上一套精致的小桌椅,打造一处静谧柔和的休闲空间
▲ 餐厅,餐边柜中一抹粉色提亮视觉,造型简约的餐桌椅搭配流苏质感的吊灯
▲ 餐厅过道,放置黑色烤漆餐边柜搭配艺术挂画与墙镜 ,柜子借鉴建筑设计中的拱形结构,镂空半满的造型洋溢着轻奢的气息,为空间增添活力,带来满满的艺术格调
▲ 厨房,蓝白色橱柜搭配石英石台面,结合纹理瓷砖和灰色地砖,颜色明亮而不繁杂,更凸显清新雅致
▲ 客卫延续厨房的蓝白基调,金色五金件结合椭圆形墙镜,打造酒店般的体验,提升使用品质
▲ 书房,浅蓝色墙面搭配乳白色榻榻米+衣柜的设计,成品书桌与蓝白吊柜色彩协调搭配
▲ 儿童房,灰调鱼骨拼木地板搭配蓝粉拼色墙面,采用高低床+儿童尺寸的家具,满足就寝与储物需要
▲ 次卧做长辈房,奶茶色墙面+灰色绒面软包床和雾霾蓝色床品,浅金色腰枕,温馨淡雅的色调将卧室空间打造得雅致文艺、闲适淡然
▲ 主卧,低饱和度的烟粉色遇上浓烈明亮的蓝色,对比鲜明却又和谐融洽,展现出张扬的浪漫
▲ 床尾放置墨绿色鱼鳞纹斗柜,布置复古装饰,上方预留插座位,可直接摆放电视,充当电视柜
▲ 床侧去掉床头柜,采用形似钢琴的墨绿色梳妆台取代
▲ 主卧步入式衣帽间,粉和绿的巧妙运用突破素色调的配色印象,大胆直观地营造舒缓的优美,将清新的文艺范儿绽放到极致
▲ 主卫,延续蓝白基调,添加黑色五金与金色元素点缀,独立的浴缸搭配白色百叶帘,简洁的造型不失浪漫格调
设计 | 漾设计(深圳)
微信:13922880680
后台回复「漾设计」可以看更多作品
媒体转载请注明装修33天并保留设计师联系方式
欢迎业主、设计师、装修公司免费投稿照片
装修33天商务合作微信:king194316
松爷店铺掌柜微信:yejia1702
漾设计其他作品推荐
89平设计师的家 走廊给女儿荡秋千
实用装修指南
装修33天 🏡 实用装修指南
喜欢我们的文章就随手转发到您朋友圈吧