点上方蓝字可关注 微信号:装修33天
▲ 使用面积120平,赠送晒台10平米,造价31万(不含家电),业主需求:具有明亮开阔的公共区域,要有充分的储物空间,不希望固定风格,但希望略带现代感
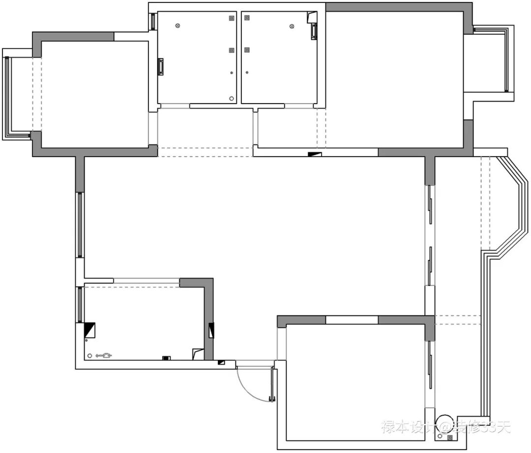
▲ 原始结构图
▲ 平面布置图
▲ 拆除阳台移门,在阳台栏杆处新做落地玻璃窗和平开窗,将阳台分给客厅与次卧,窗外景致尽收眼底,并扩大室内面积
▲ 客厅与餐厨阳台采取无边界处理,增添空间互动与通透视觉,地面通铺水泥灰地砖,顶面采用点光源照明
▲ 家居选择灰色调和皮质元素搭配,清水模板铺贴质感个性的沙发背景墙,结合一侧玻璃砖墙,两种不同的材质碰撞搭配造型落地灯的光晕
▲ Magis Voido Chair 摇椅则提升整体轻松感
▲ 设计黑白的撞击储物柜做电视背景墙,艺术品在黑色开架里,让空间更富艺术感
▲ 设计一条双动线,拱形门洞采用和电视开架同色,形成统一性,加以装饰画做点缀
▲ 从客厅望向餐厅,设计加长隐形风口,延长视觉感受,中西厨一体化与餐厅没有设限,如恩灰真空石台面上翻至墙面,沿用木纹质感地柜柜门
▲ 岩板餐桌质地搭配不同款的餐椅,造型吊灯增添空间层次感,并营造就餐氛围
▲ 客卫干湿分区,提高使用效率,水磨石洗浴盆和壁灯配饰颜色一致,装点空间的同时给空间带来一丝律动,弧形镜子与弧形门洞呼应
▲ 客卫淋浴区以黑白为基调,利用墙面设计壁龛
▲ 儿童房,保留较大的活动区域给孩子同时,房中房的书柜和星系壁纸增加趣味性
▲ 一面黑板墙满足孩子的涂鸦乐趣,发挥小朋友的想象力
▲ 次卧,以白色为基调,一张独立床且内含一张墨菲床,又以墨绿色予以点缀,使空间恬静怡然
▲ 主卧,优雅蓝延伸至顶、柜、墙、地,在包容的空间里释放温婉的气质,弧形软包背景墙别有一番韵味
▲ 柜体与床头柜采用一体化的设计手法,延伸多维度空间
▲ 床尾,柜体结合梳妆台的模式,木色与白色相间,简洁自然
▲ 主卧的一角打造简约的休闲阅读区
▲ 主卫采用半墙瓷砖+半墙涂料的做法,暗橘色涂料和白色长条砖横贴让空间精致优雅
设计 | 禄本设计(芜湖)
电话:0553-5206747
微信:15309639560
后台回复「禄本」可以看更多作品
媒体转载请注明装修33天并保留设计师联系方式
欢迎业主、设计师、装修公司免费投稿照片
装修33天商务合作微信:king194316
松爷店铺掌柜微信:yejia1702
禄本设计其他作品推荐
118平混搭三室 这门洞和配色太秀了
实用装修指南
装修33天 🏡 实用装修指南
喜欢我们的文章就随手转发到您朋友圈吧