点上方蓝字可关注 微信号:装修33天
▲ 项目面积70平,两房一厅旧房改造,三口之家居住,入户左侧大鞋柜,对应一面穿衣镜,满足储物与生活需求
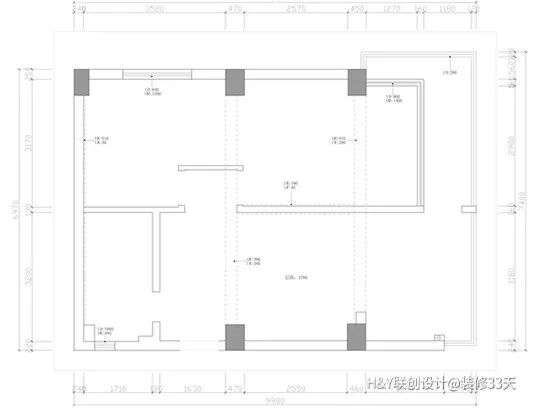
▲ 原始结构图
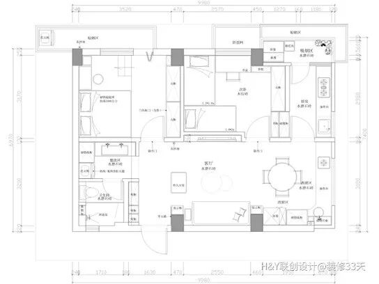
▲ 平面布置图
▲ 客餐厅整体配色以灰粉为基调,地面通铺灰色瓷砖,设计简洁的顶面确保层高
▲ 沙发左右两侧利用立柱+柜体的形式打造沙发背景,深灰色皮质沙发搭配粉色墙面,辅以色彩呼应的装饰画点缀
▲ 轻便的茶几组与脚凳,可随手移动,给孩子留出宽敞的活动空间
▲ 软装细节凸显居家的温馨格调
▲ 电视柜同样做一整面墙的储物,半开放式的收纳满足不同的储物需求
▲ 客厅望向餐厅视角
▲ 将原厨房则改为西厨区结合餐厅的设计,餐厅配置黑色圆形餐桌与高颜值餐椅,满足女主对生活的小情调
▲ 白色台面搭配深浅灰调橱柜门,竖柜收纳烘焙厨电,满足女主人烘培的爱好
▲ 利用原有阳台空间改造成中厨区,柜体与台面延用西厨格调
▲ 儿童房,打造L型双床铺的设计,床铺下方可储物,木制围挡搭配灰粉色墙面,一盏彩色吊扇灯与墙饰增添空间趣味
▲ 主卧,将原有卧室过道融入房间内部,扩大房间的使用面积与储物空间,木色储物地台搭配灰色墙面,床侧增加一处休闲区
▲ 金属元素床边储物架与装饰画增添居家格调
▲ 窗帘也是灰粉色搭配,床尾整面的储物柜中增加女主梳妆台
▲ 改动卫生间进门位置,离卧室门更近,动线更合理,一部分作为洗衣房兼洗漱区,一部分作为卫生间区域
▲ 卫生间,壁挂式马桶的墙排方式解决马桶改位的排污问题,同时利用马桶的包水箱位置,设计置物壁龛,一举两得
设计 | H&Y联创设计(原胡狸&胭脂设计)广州
微信:abcd6049
微信:45716404
后台回复「胡狸胭脂」可以看更多作品
媒体转载请注明装修33天并保留设计师联系方式
欢迎业主、设计师、装修公司免费投稿照片
装修33天商务合作微信:king194316
松爷店铺掌柜微信:yejia1702
H&Y联创设计其他作品推荐
142平现代极简三室 单身男医生的豪宅
实用装修指南
装修33天 🏡 实用装修指南
喜欢我们的文章就随手转发到您朋友圈吧