点上方蓝字可关注 微信号:装修33天
▲ 建筑面积95平,玄关利用空间角落打造双面柜体,结合鞋柜与储物柜,增添空间收纳,不影响动线
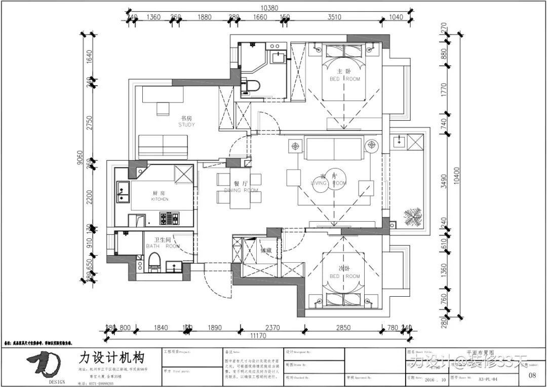
▲ 平面布置图
▲ 客餐厅互通,整体以黑白灰为基调,融入原木调作为点缀,提升视觉暖度
▲ 客厅,灰色石纹地砖铺就,搭配留白墙顶面,通透的落地窗满足室内采光
▲ 选用深色系软装,与白色形成对比,呈现出都市生活的简练感
▲ 留白墙面点缀立体感墙饰,丰富背景空间表情,丝绒抱枕提升空间质感
▲ 电视背景延续留白,打造架空电视柜,实用不占空间,右侧设计隐形门片,使背景更加整体
▲ 餐厅,灰木调的餐桌椅平添温润气息,立面嵌入黑色铁艺置物架,起到装饰作用
▲ 餐厅背景利用错落墙面打造开放式置物架,厨房采用玻璃谷仓门隔断,防止油烟,不影响空间通透
▲ 厨房,U型布局,纳入大型厨电,白色橱柜搭配黑色墙砖,层次分明
▲ 书房,双面采光+百叶帘,随意调节室内光线,设置沙发床可随时切换空间模式
▲ 另一侧墙面打造白色置顶柜体,搭配拱形全身镜,让书房兼具衣帽间机能
▲ 次卧延续黑白灰色系,采用榻榻米满足次卧机能,白色半高护墙替代床靠背,装饰画呼应空间格调
▲ 床头一侧的摇臂灯可以提供晚间阅读照明
▲ 主卧,留白空间搭配灰色棉麻床品,简单却富有质感,木饰面半墙温润自然,背景修饰现代造型吊灯
▲ 靠墙设计大面积定制柜,满足主卧空间收纳需求
文字编辑 | 东东
设计 | 力设计(杭州200公里以内)
微信:17858603257
后台回复「力设计」可以看更多作品
媒体转载请注明装修33天并保留设计师联系方式
欢迎业主、设计师、装修公司免费投稿照片
装修33天商务合作微信:king194316
松爷店铺掌柜微信:yejia1702
力设计其他作品推荐
130平轻奢混搭三居 丛林与都市元素交织
实用装修指南
装修33天 🏡 实用装修指南
喜欢我们的文章就随手转发到您朋友圈吧