点上方蓝字可关注 微信号:装修33天
▲ 使用面积130平,造价40万(不含家电),本案位于上海城隍庙附近,独特的坐标优势,将此套房子设计成有风景有味道有记忆的优质民宿
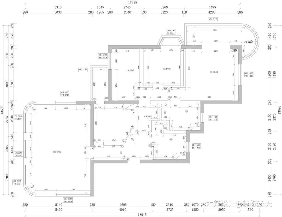
▲ 平面结构图
▲ 平面布置图
▲ 公领域空间采用现代工业风的水泥漆顶和深灰色地砖互相呼应,白色石膏边的宽度留余视觉空间,避免灰度的压抑
▲ 客厅,一张厚实的大圆地毯,成为整个区域的核心,搭配圆弧造型的主沙发与轻便的圆形茶几组
▲ 纯粹的灰色墙面饰以大幅抽象艺术画作为客厅背景,明黄色的盆栽装饰提亮色调
▲ 柔和的米色沙发搭配灰褐色靠枕化解黑白灰的清冷感
▲ 一整面墙的大景观落地窗将城隍庙附近景色尽收眼底
▲ 取消传统的电视背景墙的模式,采用支架电视取代,由于是民宿便缩小储物空间,留出更多的设计可能性
▲ 设计开放式餐厨,以岛台为中心,形成环形动线,黑白灰的基调,大理石与金属的碰撞,厨房设备配置齐全
▲ 改造后的空间动静分离,开放式厨房和客厅融为一体,动区宽敞,视野开阔
▲ 客卧,床头一侧的承重柱包裹深色木皮,辅以灯光修饰,水泥质感的艺术漆在灯光下充满艺术格调
▲ 水泥漆墙面装饰后现代主义抽象画,黑白灰色块组合与整室色彩融合,水泥色的墙面与木纹地板通过白色地脚线过渡,将现代与自然融为一体
▲ 次卧,皮质床背搭配深木色与水泥色层次背景,左侧采用线性造型吊灯修饰精致度
▲ 主卧,大面积的灰色木皮搭配天然大理石做床背景,现代风的壁灯结合线性吊灯营造休憩氛围
▲ 原木床头置物凳,肌理感丰富,给人自然纯朴的视觉感
▲ 床头一角,大理石与木纹结合,搭配灰色布帘
▲ 主卧设置独立卫浴,墙地面以及双台盆洗手台整体通铺大理石纹瓷砖,大面积的镜面辅以隐藏灯带,呈现明快时尚的卫浴空间
文字编辑 | 深深
设计 | 木梵设计(上海)
微信:gao521_812
后台回复「木梵」可以看更多作品
媒体转载请注明装修33天并保留设计师联系方式
欢迎业主、设计师、装修公司免费投稿照片
装修33天商务合作微信:king194316
松爷店铺掌柜微信:yejia1702
木梵设计其他作品推荐
现代简约不规则三室 客厅直对影音书房
实用装修指南
装修33天 🏡 实用装修指南
喜欢我们的文章就随手转发到您朋友圈吧