点上方蓝字可关注 微信号:装修33天
▲ 使用面积100平,此案为样板间,入户过道放置黑色圆弧形玄关柜,辅以视觉感装饰画,以木色为壁面基调,勾勒金色线条与软装和家具细节呼应
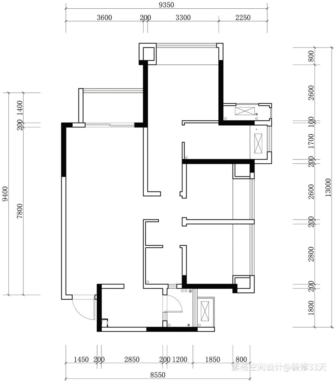
▲ 平面结构图
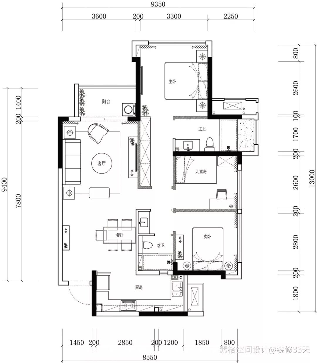
▲ 平面布置图
▲ 整体采用灰白为基调,加入自然的木色平衡空间的冷峻感,简单的顶面采用金属元素线条勾勒
▲ 客厅地面通铺灰色石纹地砖,加铺灰色纹路地毯,提高空间的舒适性体验,灰色系皮质沙发呼应现代感风格的电视柜,大理石电视背景提升空间质感
▲ 暖色吊灯营造公领域空间氛围
▲ 原木色客厅沙发背景,与黑色玻璃背景结合过度玄关,餐厅与客厅场域,采用金属元素做踢脚线与背景装饰线条
▲ 餐厅设置在与厨房入户相邻的动线空间上,整个硬装与客厅呼应,厨房的长虹玻璃门片也成为一道美丽的背景
▲ 现代轻奢感的餐桌椅搭配抽象油画作为背景,增添就餐空间的艺术氛围
▲ 厨房,灰白色的瓷砖搭配木纹橱柜门,花灰色台面简洁易打理
▲ 儿童房,木质地板搭配蓝天白云主题壁纸,儿童尺寸的家具添上一抹粉色,少女心爆棚
▲ 装饰画与床品也是色彩相互呼应,地上的不锈钢踢脚线像是质感丰富的饰带,为空间带来精致感
▲ 次卧,木地板搭配深色墙纸,简洁的现代风大床上方安装造型感吊灯,床背景采用金色边框画修饰
▲ 整体色彩以灰褐色为主,偏深的色系有助于更好的让人进入睡眠状态
▲ 主卧,浅卡其色的硬包背景搭配大幅装饰画,蓝灰色软包大床左右配置造型干练色彩简洁的床头柜与台灯,顶面的吊灯充满个性的点缀
▲ 将主卧过道设计成衣帽间,并为主卧配置主卫空间,形成套房模式
▲ 主卫,墙地面通铺大地色系瓷砖,木色架空台盆柜包裹立柱,玻璃移门分隔淋浴与浴缸湿区
文字编辑 | 深深
设计 | 素格空间设计(合肥)
微信:18956001460
媒体转载请注明装修33天并保留设计师联系方式
欢迎业主、设计师、装修公司免费投稿照片
装修33天商务合作微信:king194316
松爷店铺掌柜微信:yejia1702
实用装修指南
装修33天 🏡 实用装修指南
喜欢我们的文章就随手转发到您朋友圈吧