点上方蓝字可关注 微信号:装修33天
▲ 建筑面积92平,使用面积75平,造价22万(不含家电),业主是90后的新婚夫妻,暂时不考虑孩子的问题,房屋设计尽量满足他们两个人的使用功能和兴趣爱好
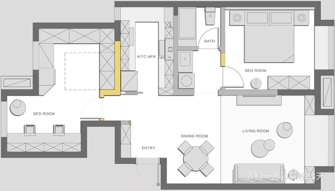
▲ 平面结构图
▲ 平面布置图
▲ 入户左侧设计入墙式储物柜,兼具换鞋凳,衣帽钩,置物区等机能,对防盗门DIY粘贴毛毡装饰
▲ 客厅,原木色地板搭配简约顶面,白+木色还原空间朴素自然的本质,留白墙面配上实木电视柜,简单实用
▲ 宽大的布艺沙发搭配散落在地上的坐垫和长毛毯无不体现着随意自由的居住感受
▲ 客厅窗下打造一个宽大的榻榻米,两侧是储物柜,躺在榻榻米上可以充分享受阳光的美好,低饱和度的软装与木色呈现和谐视觉
▲ 客餐厅以错落地台的形式区隔场域,整个空间延续原木色和白色搭配,舒适且自然
▲ 餐厅采用原木色小圆桌,极具设计感的吊灯是业主费尽周折从日本代购回来的,为就餐营造温馨氛围
▲ 通过户型改造,增大厨房的U型操作空间,水泥色墙地砖搭配木色地柜与白色吊柜,日式布帘遮做修饰
▲ 将两个小卧室打通变成一个大的多功能空间,这个空间可以让业主宅在家里玩游戏,同时也是一个大衣帽间与临时客卧
▲ 不同的柜体设计满足不同的收纳需求,将空调藏于壁柜,还原空间的整体性
▲ 墙面隐藏一张墨菲床,一秒变成客房
▲ 主卧延续简单的原木+留白,干干净净,木质床头延伸至两边墙面,床尾柜体做收纳
▲ 设计师挑选的吊灯与整屋风格很相配
▲ 卫生间干湿分区,台盆外置,提高使用效率,一边预留洗衣干衣机的位置
▲ 卫生间配置浴缸结合淋浴,采用浴帘取代玻璃移门,在小空间内可以活动自如
▲ 视频
文字编辑 | 深深
设计 | 清和一舍(天津)
微信:13212042262/13207637460
后台回复「清和」可以看更多作品
媒体转载请注明装修33天并保留设计师联系方式
欢迎业主、设计师、装修公司免费投稿照片
装修33天商务合作微信:king194316
松爷店铺掌柜微信:yejia1702
清和一舍其他作品推荐
实用装修指南
装修33天 🏡 实用装修指南
喜欢我们的文章就随手转发到您朋友圈吧