点上方蓝字可关注 微信号:装修33天
▲ 建筑面积100平,loft结构,改造价15万(不含电器),位于市中心地段的大厦高层,位置与视觉俱佳,业主希望改造成有趣味有情怀的城市民宿
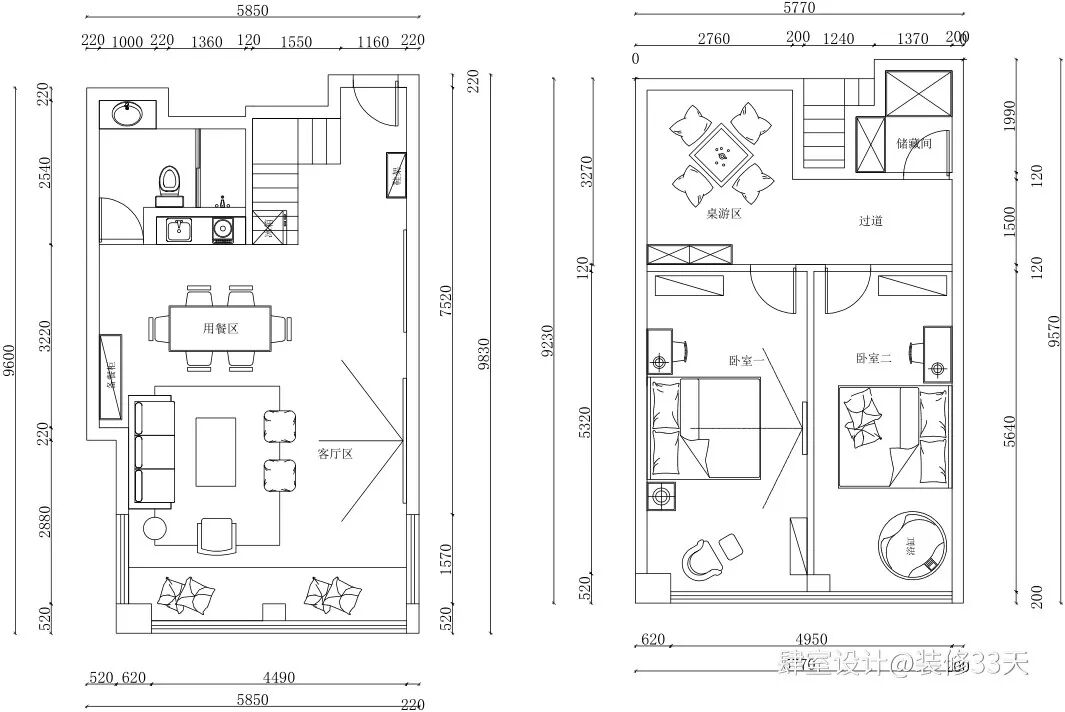
▲ 平面布置图
▲ 一层空间主要规划休闲娱乐与料理就餐的布局,餐厨一体化设计,并借助大面积采光,空间显得开敞明快
▲ 客厅,整体以黑白灰为基调,中性色散发极简自然的含蓄气质,局部点缀粉色与蓝灰色软装提亮,动物造型也为空间增添趣味性
▲ 1.8米的沙发床,打开来就是双人休憩空间
▲ 看似随意摆放的家具,整体布局与软装搭配都与整室风格相呼应,投影仪放在茶几上距离刚刚好
▲ 客餐厅休闲观影模式
▲ 为双飘窗定制飘窗垫,放上靠枕,可坐可卧,同时提供两处休闲空间
▲ 端景布置,以及背景墙上的装饰完美烘托室内的艺术氛围与个性品味
▲ 餐厨相邻,动线简单合理,餐桌餐椅沿用黑白灰的基调,连餐具与灯饰风格也协调统一
▲ 由于是民宿,缩减厨房功能,餐边料理区可以满足简单的餐食需求,花砖搭配灰白橱柜,同时兼具餐边柜的功能
▲ 选择一面黑板墙打造餐厅端景,随时更换端景主题,也满足随意涂鸦
▲ 卫生间,地面与台面背景采用花砖铺贴,搭配仿大理石纹墙砖,简单大方,古铜色的五金点缀精致度
▲ 在二层过厅打造出游戏区,席地而坐,可以打牌下棋,玩桌游
▲ 卧室一,浅色木地板搭配留白墙面,整体的色彩与造型极力趋简,刷白裸露的管线,壁挂电视,明装射灯,都透露出空间的个性
▲ 纯粹的白色硬装搭配黑木色家具,在强烈对比下产生出高级感
▲ 卧室二,同样是黑白灰的主色调,加入了一抹温馨的粉色,冷暖色系搭配,大处见刚,细处见柔
▲ 开放式挂衣架+ins风阅读区,线性吊灯与装饰画营造主题与氛围
▲ 将浴缸放在就寝区,成为卧室二的一大亮点,但施工要格外注意,包括水管布置与防水的问题需要提前设计,以免留下隐患
文字编辑 | 深深
设计 | 肆室设计(南京)
微信:13145201666
后台回复「肆室」可以看更多作品
媒体转载请注明装修33天并保留设计师联系方式
欢迎业主、设计师、装修公司免费投稿照片
装修33天商务合作微信:king194316
松爷店铺掌柜微信:yejia1703
肆室设计其他作品推荐
18万改造89平老房成文艺自然两室
实用装修指南
装修33天 🏡 实用装修指南
喜欢我们的文章就随手转发到您朋友圈吧