点上方蓝字可关注 微信号:装修33天
▲ 面积128平,这是一个乌克兰设计师的作品,虽然国外的设计师基本上不可能直接联系服务,不过我们也可以从他们的作品中学习
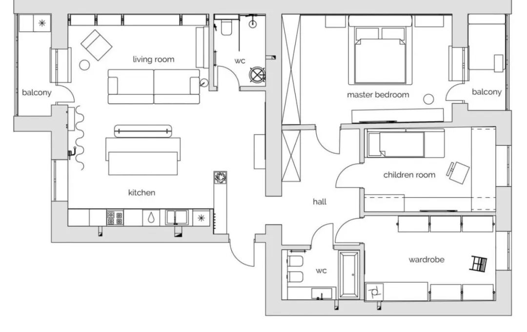
▲ 平面布置图
▲ 进门区域设计了换鞋凳和洞洞板,玄关区用绿植和餐厨之间做了隔断
▲ 公共区域基本都是开放式格局,客厅、餐厅、厨房都是连通的
▲ 厨房中岛是白色+木色,橱柜都是黑色系,整体色调黑白分明
▲ 中岛同时承担了操作台和餐桌的功能
▲ 中岛下方设计了大量的储物空间,从餐厨望向客厅方向
▲ 整个空间中,除了黑白灰就是用橘褐色来点缀
▲ 电视墙以开放式置物架为主,当成书架和展示架
▲ 照明以轨道灯为主,连壁灯都是轨道灯
▲ 私人领域和公领域泾渭分明,入户后右手边有一个门洞进入过厅来到私人领域
▲ 主卧是一张大床,没有做衣柜,因为有单独的衣帽间
▲ 床尾背景除了电视机之外,是一个长条形的定制柜
▲ 柜子的左边部分是一个设计巧妙的梳妆台
▲ 主卧的阳台直接做了一个单独的休闲榻
▲ 儿童房靠墙是定制的沙发床
▲ 靠窗设计了一体书桌,结合了窗套、洞洞板
▲ 另一侧设计有衣柜,坐榻下面也都是收纳空间
▲ 国外的极简风格都不做门套,类似于隐形门
▲ 洞洞板可以随时增加隔板用来置物
▲ 单独的衣帽间,黑色的极简柜体
▲ 内卫定制的洗手台
▲ 卫生间也是黑白色调,一侧是浴缸,花砖也是黑白纹路
▲ 外卫同样是黑白色,淋浴和龙头都是入墙式
文字编辑 | 松爷
设计 | Ira LYSIUK(乌克兰)
欢迎业主、设计师、装修公司免费投稿照片
装修33天商务合作微信:king194316
松爷店铺掌柜微信:yejia1703
实用装修指南
装修33天 🏡 实用装修指南
喜欢我们的文章就随手转发到您朋友圈吧