点上方蓝字可关注 微信号:装修33天
▲ 使用面积148平,精装房改造,业主是一位年少有为的90后,希望新家色彩丰富,简洁温馨,独立玄关,右侧打造整排鞋柜底部留空,对面设置拱形全身镜,用摆件与装饰画布置端景
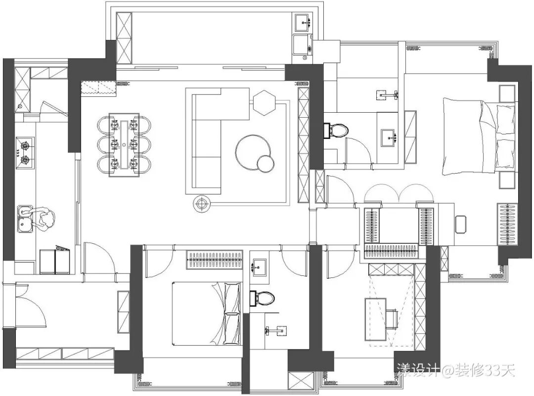
▲ 平面布置图
▲ 经过玄关以后是客餐厅区域,极简留白顶面搭配人字铺木地板
▲ 客厅,灰色L型布艺沙发,原木造型茶几,点缀彩色抱枕、橙色脚凳,搭配与之呼应的同色系组合的几何地毯,活跃整个空间氛围
▲ 打造整墙收纳型电视柜,以封闭柜与开放格结合,丰富柜体机能,下方留空增设木纹地柜取代传统电视柜
▲ 客厅望向餐厨视角,与阳台采用大面积玻璃移门隔断,通透明亮
▲ 餐厨区改造前后对比
▲ 餐厅,白色大理石餐桌搭配米咖色皮质餐椅,角落定制木色餐边柜
▲ 厨房,将原始门洞扩大,提升通透感与采光,设计玻璃吊柜,内部物品一目了然,不需要再开启柜门翻找
▲ 客卫,灰色石纹砖墙地一体,白色架空浴室柜,打扫卫生无死角
▲ 书房,定制整墙书柜,造型简约干练,兼具收纳与展示,灰色墙面悬挂世界地图装饰
▲ 白色柜体隐藏翻板床,有需要时将书桌椅靠墙放置,可充当临时客卧使用
▲ 次卧,蓝色艺术涂料背景与窗帘呼应,衣柜靠近床头部分设计黑色开放格,充当床头柜的功能
▲ 主卧,整个空间将简约与雅致化为一种高级,极简顶面装一盏业主钟爱的贝壳灯,浪漫而温馨
▲ 床头深色半高护墙结合米色硬包背景,整体色系过渡自然
▲ 利用飘窗定制白色开放柜与梳妆台一体,同时也可用于办公
▲ 步入式衣帽间,将原始墙面向书房外扩,设计开放式衣柜,合理划分成各种功能区
▲ 主卫延续客卫基调,保留淋浴功能,拆掉浴缸还原整体感,上方用于置物
文字编辑 | 东东
设计 | 漾设计(深圳)
微信:13922880680
后台回复「漾设计」可以看更多作品
媒体转载请注明装修33天并保留设计师联系方式
欢迎业主、设计师、装修公司免费投稿照片
装修33天商务合作微信:king194316
松爷店铺掌柜微信:yejia1703
漾设计其他作品推荐
实用装修指南
装修33天 🏡 实用装修指南
喜欢我们的文章就随手转发到您朋友圈吧