点上方蓝字可关注 微信号:装修33天
▲ 使用面积140平,入户拆除原本的玄关墙体,满足业主想要的开放式厨房,同时利用厨房面积增加出一个中岛料理台兼吧台的功能
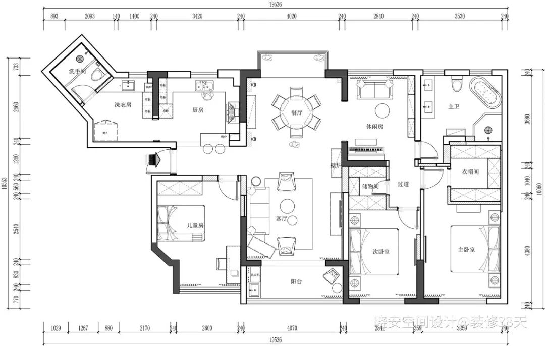
▲ 原始平面图
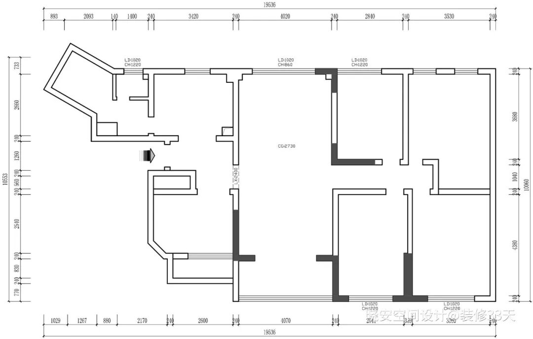
▲ 平面布置图
▲ 将原有的过道端口封掉保证电视背景墙整体性,以电子壁炉做入户端景
▲ 客厅,地面通铺木地板,简洁的顶面安装造型吊灯,提升整个空间的精致度
▲ 方正的大地色地毯与色调协调搭配的休闲家具,规划出客厅场域
▲ 灰色背景采用石膏线勾勒,辅以融入了空间色调的艺术装饰画做背景
▲ 阳台,铺贴水泥灰瓷砖延伸至墙面,阳光透过白纱洒落在休闲区,绿植制造生机
▲ 从阳台望向客餐厅视角
▲ 过厅背景即为玄关端景,安置装饰性壁炉,配上定制的装饰画,一进门就会有一种视觉的冲击力
▲ 餐厅与客厅互通,延续木地板搭配浅灰色墙面,圆形石膏灯盘安装北欧风吊灯,配合圆形餐桌的设计,餐边休闲飘窗是精致柔美的延伸
▲ 蓝色餐边柜搭配清新壁纸,提升整体色彩饱和度,与餐厅的石质、皮革、金属结合,通过多元素彰显空间气质
▲ 外卫和储物间拆除不必要的墙体,合理规划好淋浴区、台盆的位置,增加厨房的利用空间,通过小小的改动,提高空间的利用率,满足业主需要的开放式厨房和吧台料理区
▲ 餐厅对面是开放式休闲区,浅灰色墙面搭配灰色垭口,与内部蓝灰色的书架形成色彩层次
▲ 将原本的一间房间打开,设计成通往私领域的过渡场域,在这里放上复古沙发搭配钢琴,摆满藏书的背景书架,满满的文艺气息
▲ 一盆蝴蝶兰营造清雅氛围
▲ 儿童房原本的墙面不齐平,通过玄关位的改动让空间方正有规律,将放置空调外机位的地方纳入房间,布置成阅读区,增加书写功能,为正在上学的小主人提供独立的书写学习的空间
▲ 次卧为老人房,整体采用柔和的色彩基调,更适合让人快速的进入舒眠状态,从平面可见将次卧的衣柜和储物间相互集合,充分利用原本的过道空间
▲ 主卧,原木色鱼骨拼地板搭配灰白色壁纸,造型简约线条优雅的软包大床,格纹带出些许复古元素
▲ 主卧规划有步入式衣帽间,因此在床侧放置绿植与成品斗柜
▲ 主卫,整体色调清新,设施齐全又实用,半墙瓷砖结合半墙绿色防水漆让空间更加洋气
文字编辑 | 深深
设计 | 晓安空间设计(苏州)
微信:xn1533856927
后台回复「晓安」可以看更多作品
媒体转载请注明装修33天并保留设计师联系方式
欢迎业主、设计师、装修公司免费投稿照片
装修33天商务合作微信:king194316
松爷店铺掌柜微信:yejia1703
晓安空间设计其他作品推荐
实用装修指南
装修33天 🏡 实用装修指南
喜欢我们的文章就随手转发到您朋友圈吧