点上方蓝字可关注 微信号:装修33天
▲ 建筑面积98平,本案为精装房改造,改造总价18万,业主是一位时尚、独立的都市女性,对生活质量的要求高,喜欢时尚精致的居住环境,玄关处墙面装饰的文字,鞋柜隐形换鞋凳,都是充满爱和实用的小细节
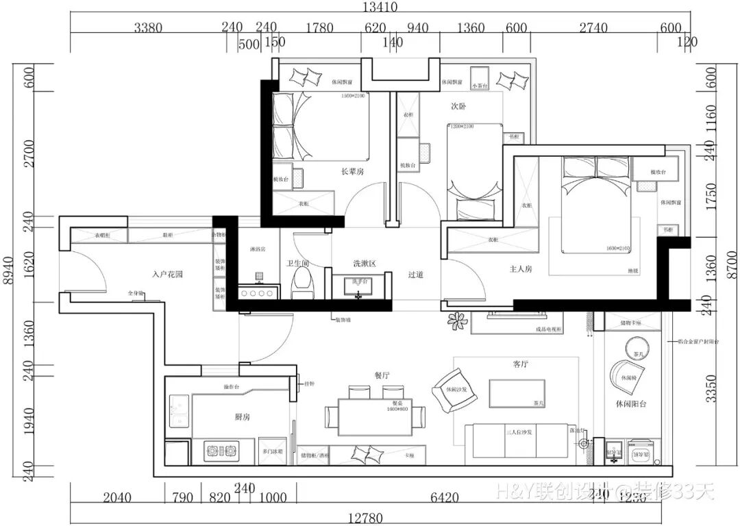
▲ 平面布置图
▲ 入户,大面积的储物柜作端景,可收纳四季鞋子,还可兼顾其他物品的收纳,右侧墙面用装饰画隐藏穿衣镜
▲ 客厅,设计以简约线条修饰搭配蓝白基调,同色系软装点缀金色元素,风格定位为简美轻奢
▲ 在原有硬装基础上墙面做线条勾勒造型 ,色彩上选用小清新的灰蓝色,搭配轻奢铜制家具和黄铜饰品,增强整个空间的质感
▲ 电视背景延续线条勾勒造型,搭配成品轻奢风电视柜
▲ 客餐厅互通以机能家具与背景装饰区隔场域
▲ 卡座餐厅延续蓝灰色背景墙面,石面餐桌搭配丝绒餐椅,卡座延伸出一组置顶边柜
▲ 玻璃泡泡吊灯与装饰画墙面,加上充满仪式感的餐桌布置,更显生活中的清新浪漫
▲ 厨房,原精装修的格局和配置,只是在原有的基础上添置一些提升生活品质的小物件
▲ 生活阳台,兼具洗衣晾晒与休闲机能
▲ 次卧,兔子床是主人精心挑选的,同时也满足自己的少女心
▲ 整个空间的色调也是以灰蓝色为主,清新淡雅,L型飘窗成为空间休闲一角
▲ 长辈房,满足父母每年过来小住上一两个月的需求,墙面颜色以浅杏色为主,温馨宁静,搭配几何图案的床品使整个空间配色呼应
▲ 长辈房空间有限,在通高柜体与大床之间设计出小小的梳妆与阅读区
▲ 主卧,温馨柔和的基调搭配别致的灯饰,利用飘窗结合梳妆桌,打造兼具休闲与床头柜的功能
▲ 奶油色高背大床搭配石膏线勾勒造型的烟粉色墙面,通过其他浅灰色墙面与布艺软装,中和烟粉色带来的甜腻
▲ 大面茶色玻璃衣柜使空间通透性更好,柜体里面的层板都有灯带,透过里面的灯光,从外面看质感高级
▲ 卫生间干湿分区,提高使用效率
文字编辑 | 深深
设计 | H&Y联创设计(原胡狸&胭脂设计)广州
微信:abcd6049
微信:45716404
后台回复「胡狸胭脂」可以看更多作品
媒体转载请注明装修33天并保留设计师联系方式
欢迎业主、设计师、装修公司免费投稿照片
装修33天商务合作微信:king194316
松爷店铺掌柜微信:yejia1703
H&Y联创设计其他作品推荐
实用装修指南
装修33天 🏡 实用装修指南
喜欢我们的文章就随手转发到您朋友圈吧