点上方蓝字可关注 微信号:装修33天
▲ 项目面积60平,造价15万,入户见餐厅,靠墙定制鞋柜,搭配换鞋凳,构成玄关基本功能
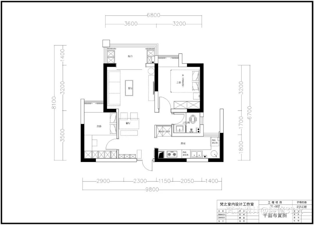
▲ 平面布置图
▲ 入户左侧通往次卧空间,靠墙放置餐桌椅,留出宽敞的过道
▲ 餐厅,北欧风餐桌椅搭配长凳,可同时容纳多人就餐,灰色系背景墙点缀多彩装饰画
▲ 餐厅望向客厅,浅色系空间无过多装饰,充足的采光让小空间更显宽敞
▲ 客厅,灰色布艺沙发搭配黑白拼色茶几,抱枕与装饰画增添色彩
▲ 黑白架空电视柜,实用不占空间
▲ 厨房,灰色亮光橱柜搭配白色石纹墙地砖,吊柜底部设计照明,台面延伸至转角处预留洗衣机位置
▲ 整体定制集榻榻米、书桌、衣柜于一体的多功能房,一房多用,利用率高
▲ 床头立面设计隔板装饰,书桌兼具床头柜机能
▲ 主卧延续简约基调,灰色布艺高背床搭配小巧的床头柜,一盏现代壁灯营造温馨氛围
▲ 靠墙打造置顶衣柜延伸至门框上方,将空间利用最大化
▲ 卫生间,用浴帘取代玻璃隔断,蹲坑结合淋浴,节省空间
文字编辑 | 东东
设计 | 梵之设计(成都)
微信:373454377
后台回复「梵之」可以看更多作品
媒体转载请注明装修33天并保留设计师联系方式
欢迎业主、设计师、装修公司免费投稿照片
装修33天商务合作微信:king194316
松爷店铺掌柜微信:yejia1703
梵之设计其他作品推荐
实用装修指南
装修33天 🏡 实用装修指南
喜欢我们的文章就随手转发到您朋友圈吧