点上方蓝字可关注 微信号:装修33天
▲ 建筑面积240平,造价100万,玄关,将厨房原门片用玻璃隔断,下半部分作为鞋柜,增加收纳同时保证空间采光通透性
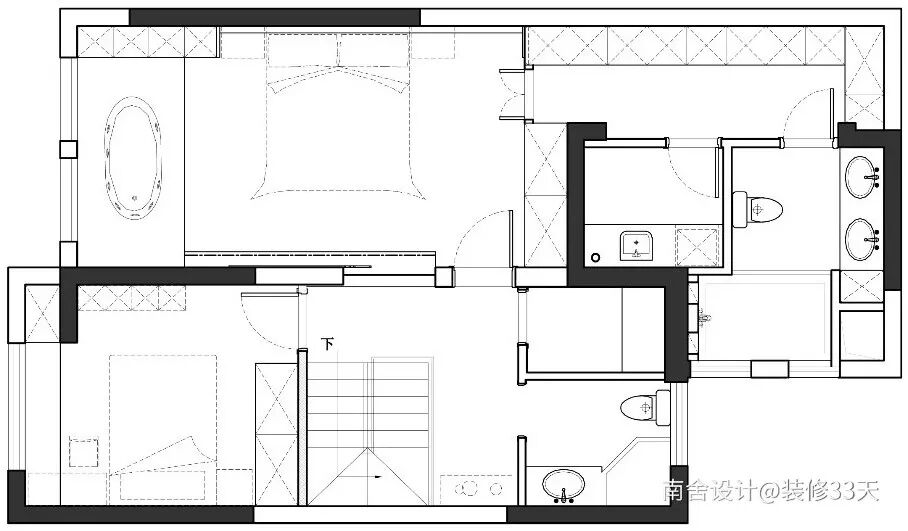
▲ 一层平面布置图
▲ 二层平面布置图
▲ 三层平面布置图
▲ 经过玄关,两条大理石台面贯穿鞋柜延伸至客厅,深蓝色装饰画与花瓶形成呼应
▲ 客厅整体以灰色为主,选用浅色皮沙发与大理石茶几,搭配一盏现代钓鱼灯
▲ 麻绳铁艺真皮相结合的单椅提供休憩一角
▲ 定制灰色大理石电视墙,镂空部分引入光线,底部设计原木地台充当电视柜功能
▲ 走道打造白+木色装饰酒柜,延伸出隔板与餐桌相连,增加就餐空间
▲ 靠墙设置西厨区,定制高柜纳入冰箱,解放厨房空间
▲ 采用长虹玻璃门隔断厨房空间,楼梯设计玻璃扶手
▲ 粉色系女儿房,布置活泼的童趣家具,再加上卡通玩偶装饰,整个空间都洋溢着俏皮可爱的氛围
▲ 主卧为套房格局,纳入阳台改造成浴缸区,成为整个空间的亮点
▲ 黑色大理石床头背景暗藏灯带,两侧点缀不同造型灯饰,右侧床头柜延伸出书桌机能
▲ 泡澡时可透过两扇落地窗观看江景,地台下嵌入的灯带丰富层次
▲ 浴缸区的黑色大理石地台延伸至进门处,代替了传统电视柜
▲ 主卧外侧的楼梯过道不是很宽敞,设计玻璃隔墙在视觉上带来变化
▲ 卫生间,双台盆设计提高使用效率,淋浴区用灰玻隔断,通透又保留隐私
▲ 三楼活动空间,书房、影音室、烘焙等活动都在这里
文字编辑 | 东东
设计 | 南舍设计(南京)
微信:LilyDesign1987
微信公众号:nanshekongjiandesign
后台回复「南舍」可以看更多作品
媒体转载请注明装修33天并保留设计师联系方式
欢迎业主、设计师、装修公司免费投稿照片
装修33天商务合作微信:king194316
松爷店铺掌柜微信:yejia1703
南舍设计其他作品推荐
实用装修指南
装修33天 🏡 实用装修指南
喜欢我们的文章就随手转发到您朋友圈吧