点上方蓝字可关注 微信号:装修33天
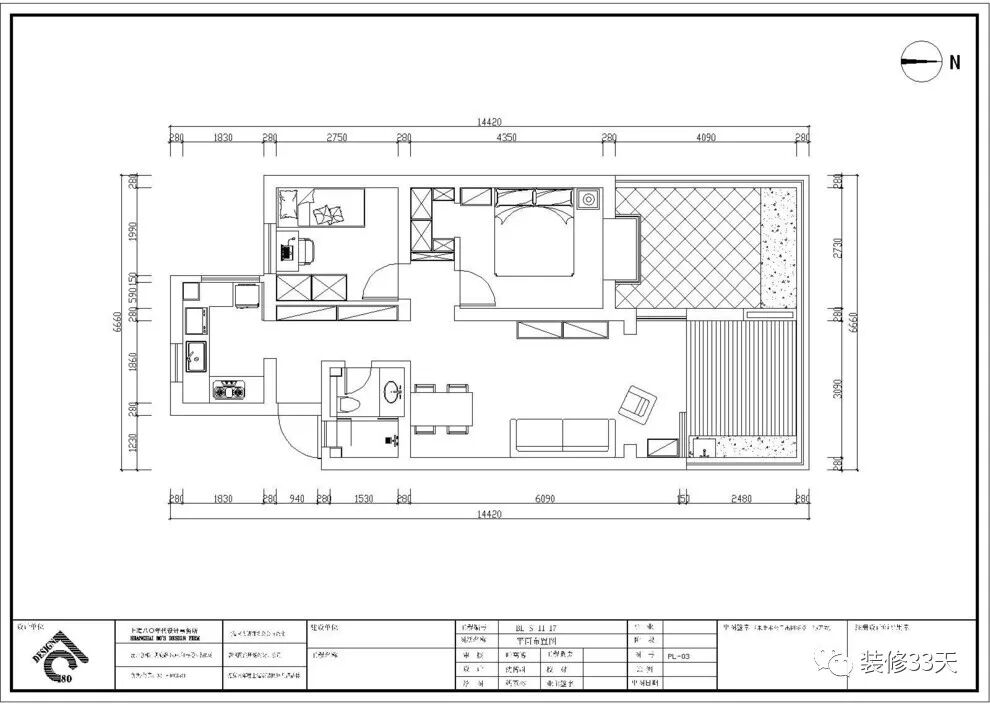
▲ 设计师夫妻的家,孩子要上学买的学区房,建筑面积61平,套内面积50平,上海的6层老公房底楼,天井改造成花园
▲ 原始户型不是很好,厨房、客厅很小,花园从主卧进入不方便
▲ 把原始客厅改成儿童房,主卧改成客厅,从客厅进入花园,动静分离
▲ 入户的位置,内嵌了一个小鞋柜
▲ 进门区域,迎面是一面橘色的黑板墙,上下都做了储物柜,下方储物柜兼具换鞋凳功能,上方可存放换季鞋
▲ 进门右边过了过道之后是进入餐厅客厅区域
▲ 做了地暖,选了软木地板,采暖效果比较好
▲ 餐厅选的实木餐桌,一盏摇臂灯,吃饭的时候可以摇到餐桌上方,平时也可以摇到沙发上方
▲ 餐厅还能改造成工作区,照明全部采用点光源,对于层高不高的老房子来说,舍弃吊灯、顶灯是一个比较好的选择
▲ 把原本户型最大的卧室打通阳台后改造成餐客厅,和户外花园相连
▲ 进门左侧的厨房面积不大,但功能齐全,角落用搁板利用,前面也用挂杆提高空间利用率,美观又实用
▲ 小卫生间用浴帘替代隔断,壁挂式马桶,镜柜增加收纳储物
▲ 利用过道端景内嵌了一个小型书柜,除了增加储物空间之外,也成了一处风景
▲ 简洁的主卧,阳光很好
▲ 主卧飘窗外就是天井一角,景色宜人
▲ 儿童房位于主卧对面,选用的高低床,上面睡觉,下面活动区
▲ 床的楼梯还带抽屉储物
▲ 对面是宜家的儿童衣柜
▲ 客厅和主卧都用了大面积的玻璃窗,增加采光的同时,也可以随时看到天井花园中的美景
▲ 用防腐木分层设计,增加了花园空间的层次感
▲ 围墙上装了红外警报装置,出门在外或者晚上的时候打开就行
▲ 所有的照片并非是同一时期拍摄的,所以景色以及室内陈设也都会有改变
▲ 设计师的理念是不希望装修好是最好的状态,而是住进去之后通过时间慢慢的增加房子的人文气息
▲ 这个案例其实以前发过的,只是就像设计师说的,一直在改变,已经和第一次发的时候完全变样的,所以说,热爱生活的人,60平米的房子也能住出庭院别墅的感觉
设计 | NONO设计工作室(上海)
微信公众号:NONOSPACE2017
设计师微信:NONO210
欢迎业主、设计师、装修公司免费投稿照片
装修33天商务合作微信:king194316
实用装修指南
装修33天 🏡 实用装修指南
喜欢我们的文章就随手转发到您朋友圈吧