点上方蓝字可关注 微信号:装修33天
▲ 使用面积140平,业主是一名90后女孩,考虑到平时一个人住,将三房改二房(原本的次卧改书房),坚持自己内心的想法将房子装修成自己喜欢的样子
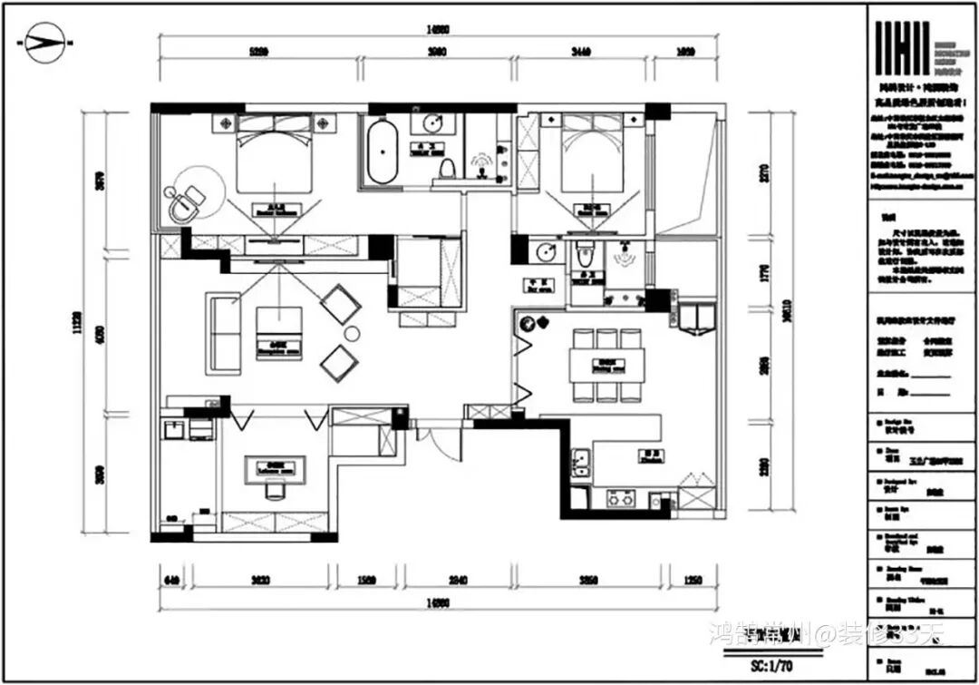
▲ 平面结构图
▲ 平面布置图
▲ 入户黑白柜门通过点线修饰柜体艺术感,正对入户门的墙面往后移,使这面墙和餐厅的墙在同一水平面上,保留客厅、餐厅的整体性,将阳台打掉以后,厨房和餐厅的空间都能扩大,显得更宽敞
▲ 客厅,浅灰色地砖搭配银灰色圆形图案的地毯,灰紫色的墙面漆通过上下留白,咖棕色主沙发搭配黑色小茶几与吊灯
▲ 蓝红撞色的单椅结合三角形小茶几,为空间增添艺术气质
▲ 客厅阳台打掉,业主平时一个人住,不需要这么大的阳台,纳入阳台扩大客厅空间,将阳台放在书房
▲ 书房采用与餐厨区一致的折叠门,打开就可以和客厅互通,让人感觉书房和客厅是一体的,通透敞亮
▲ 书房,设计师大胆的采用纯黑色柜门作背景,搭配些许木皮与金属元素,既时尚又化解大面积的黑色带来的沉闷感
▲ 餐厅整体色系是白色加上木色,这两种颜色打造了一个干净纯粹的空间
▲ 从业主餐厅的窗外可以看见绿植,餐厅挂的这幅油画和窗外、家中的绿植形成呼应
▲ 客卧是业主准备给父母住的,色彩选择则是运用简约的灰和白
▲ 客卧床头一角
▲ 主卧,采用一个酒店式设计,透明玻璃作为主卫隔断,整体空间通透
▲ 主卧,布质床结合木地板,再搭配色调鲜明的灯具软装,床头灯很有特色,可以随意调方向,既有趣又实用
▲ 在灰色+木色的空间中,搭配白色床品,在灯光与香薰蜡烛的映衬下更加温馨
▲ 一张懒人沙发,一张小巧的金属元素茶几,一盏现代的落地灯构成简约休闲一隅
▲ 主卫,地面选择小花砖铺就,给整个空间带来一丝活泼
文字编辑 | 深深
设计 | 鸿鹄常州站
微信:18015051411
后台回复「鸿鹄常州」可以看更多作品
媒体转载请注明装修33天并保留设计师联系方式
欢迎业主、设计师、装修公司免费投稿照片
装修33天商务合作微信:king194316
松爷店铺掌柜微信:yejia1703
鸿鹄常州站其他作品推荐
实用装修指南
装修33天 🏡 实用装修指南
喜欢我们的文章就随手转发到您朋友圈吧